Reviving Heritage: Mid-Century Modern Renovation at Lark House by SHED Architecture & Design
Explore the Lark House renovation, a masterful blend of mid-century modern design and contemporary updates by SHED Architecture & Design.
Nestled in West Seattle, Lark House stands as a celebrated example of mid-century modern architecture, originally crafted by the renowned Seattle architect Al Bumgardner in 1958. Recently, SHED Architecture & Design undertook the challenge of reimagining this iconic residence to meet the demands of contemporary living while preserving its architectural heritage.




Design Philosophy and Approach
Respecting the Original Vision
The renovation of Lark House was approached with deep reverence for Bumgardner's original design intentions. SHED Architecture & Design carefully assessed the existing structure to ensure that any modifications would enhance rather than obscure the mid-century aesthetic. The goal was to maintain the integrity of the original architecture while making thoughtful updates to accommodate modern lifestyles.



Functional and Aesthetic Enhancements
The renovation focused on increasing the functionality of the living spaces and enhancing their connection to the surrounding natural beauty of Vashon Island, the Olympic Mountains, and Puget Sound. The team at SHED Architecture & Design strategically reconfigured interior layouts to maximize natural light and improve flow, ensuring that each room took full advantage of the scenic vistas.


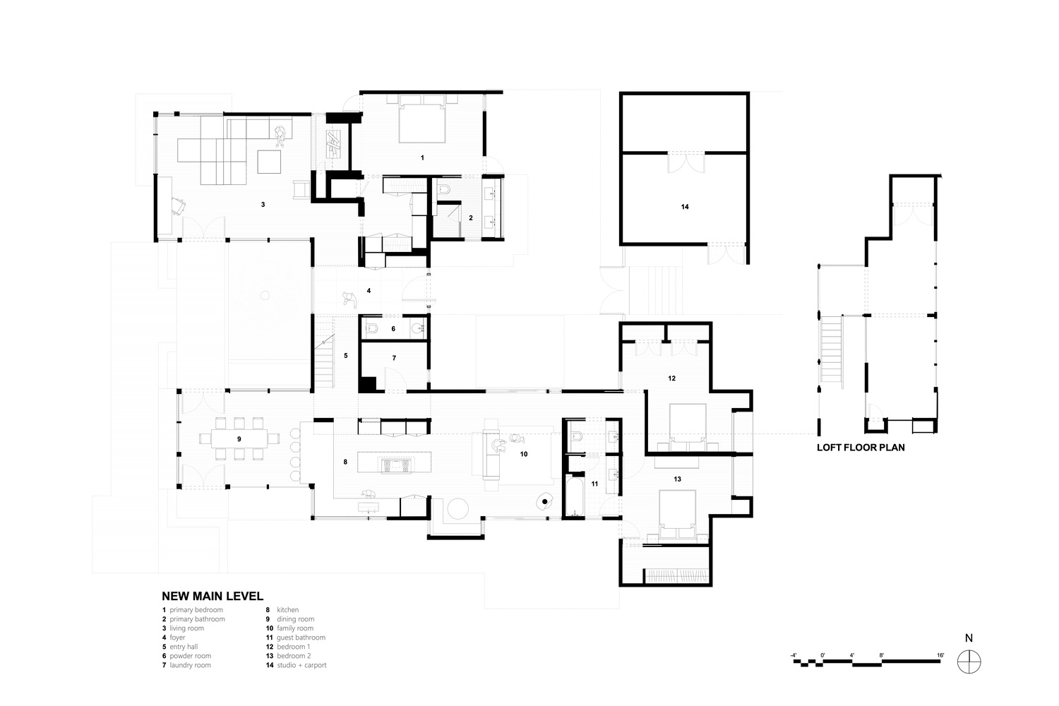
Key Features of the Renovation
Enhancing Spatial Dynamics
The central challenge was to transform the existing spaces without compromising the house’s architectural significance. For example, the kitchen was opened up by removing a wall to enhance the connection with Puget Sound, merging modern usability with the home’s mid-century roots. Custom cabinetry and thoughtful woodwork bridged the gap between old and new, featuring materials like white oak juxtaposed against Bumgardner’s palette of VG-stained fir and cedar.




Private and Social Spaces
Significant changes were made to the layout to boost both privacy and social interaction. The primary bedroom was reconfigured to include a larger walk-in closet and an updated two-way fireplace, enhancing privacy while maintaining the room’s openness. The social areas, like the living room, were redefined to support communal activities without losing the intimacy and warmth characteristic of mid-century designs.






Sustainability and Material Use
Eco-Friendly Materials
In line with contemporary sustainable practices, the renovation incorporated materials that were environmentally friendly and locally sourced where possible. The use of Nero Marquina Marble and bespoke elements like a coffee bar and breakfast nook not only elevated the home’s functionality but also its environmental footprint.




Integration with Nature
The design revisions respected the house’s integration with its natural surroundings, a hallmark of mid-century modern architecture. Large windows and open spaces were designed to create a seamless flow between the indoors and the lush landscape outside, promoting a healthy, light-filled environment.




A Model for Modern Renovation
The Lark House renovation by SHED Architecture & Design is a prime example of how mid-century modern homes can be sensitively and beautifully updated for contemporary use. It stands as a testament to the timeless appeal of mid-century architecture and the possibilities inherent in thoughtful renovation practices. This project not only preserves a piece of architectural history but also adapts it, creating a vibrant space ready to meet the challenges of the 21st century.


All photographs are work of Rafael Soldi
Popular Articles
Popular articles from the community
Solar Steam: A Climate-Responsive Architecture That Redefines the Monument
A climate-responsive memorial architecture that transforms heat, decay, and time into a living system reflecting humanity’s ecological impact.
On the Brooks House by Monsoon Collective – A Contemporary Kerala Home Rooted in Tradition
Kerala home blending tradition and modernity with water-inspired design, brick architecture, courtyard planning, and sustainable rainwater harvesting strategies.
Louis Malle Cinema: A Limestone Cultural Landmark Revitalizing Community Life in Prayssac
Limestone cinema extension with public forecourt, blending heritage and modern design to create flexible cultural spaces and strengthen community interaction.
The Ken Roberts Memorial Delineation Competition (Krob)
As the most senior architectural drawing competition currently in operation anywhere in the world, it draws hundreds of entries each year, awarding the very best submissions in a series of medium-based categories.
Similar Reads
You might also enjoy these articles
The Ken Roberts Memorial Delineation Competition (Krob)
As the most senior architectural drawing competition currently in operation anywhere in the world, it draws hundreds of entries each year, awarding the very best submissions in a series of medium-based categories.
Waterfront Redevelopment and Urban Revitalization in Mumbai: Forging a New Dawn for Darukhana
A transformative waterfront redevelopment project reimagining Darukhana’s shipbreaking heritage into an inclusive urban future.
OUT-OF-MAP: A Call for Postcards on Feminist Narratives of Public Space
Rhizoma Design and Research Lab invites artists, designers, architects, researchers, and students to reflect on how feminist perspectives can reshape public space. Selected works will be exhibited in Barcelona, October 2026. Submissions open until 15 April 2026.
Documentation Work on Buddhist Wooden Temple
Architectural syncretism and cultural hybridity: A comparative study of the Buddhist temples in Chattogram Hill tracks
Explore Architecture Competitions
Discover active competitions in this discipline
The International Standard for Design Portfolios
The Global Benchmark for Architecture Dissertation Awards
The Global Benchmark for Graduation Excellence
Challenge to reimagine the Iron Throne
Comments (0)
Please login or sign up to add comments
No comments yet. Be the first to comment!