Shakeer House: A Masterclass in Tropical Modern House Design by 3dor Concepts
A tropical modern house in Kannur that blends indoor-outdoor living with minimalist design and climate-responsive architecture.
Merging Context with Clarity in Kannur
Located in the lush landscape of Kannur, India, Shakeer House, designed by 3dor Concepts, is a remarkable example of tropical modern house design that harmonizes climate-conscious living with architectural clarity. This 3,656-square-foot residence, completed in 2024, demonstrates a sophisticated understanding of site, material, and spatial flow, resulting in a home that feels both grounded in its context and elevated in its design intentions.


The design team—Ahmad Thaneem, Muhammed Jiyad, and Muhammed Naseem—crafted a residence that feels like an extension of the landscape rather than an intervention upon it. With low, horizontal lines, a restrained material palette, and an abundance of passive design strategies, Shakeer House exemplifies the best qualities of tropical architecture with a distinctly modernist spirit.



Seamless Indoor-Outdoor Living Through Architecture
One of the defining characteristics of Shakeer House is its seamless integration with the outdoors. The house sits slightly elevated, with tiered stone pathways guiding visitors to a tranquil sit-out space that operates as both a threshold and a social zone. A cantilevered roof plane provides protection from the sun and rain, while large sliding glass doors dissolve the barriers between interior and exterior.



The deep overhangs, combined with exposed brick jali walls, promote cross ventilation and soft, dappled lighting throughout the house. These walls also serve as visual filters that offer privacy without disconnecting the home from its surroundings. In this way, the architecture blurs the line between nature and shelter—a hallmark of tropical modern house design.


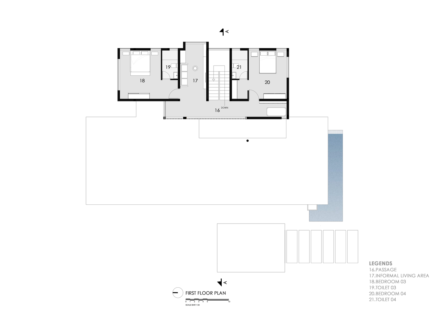
A Spatial Composition Rooted in Openness
The floor plan follows an open layout that links the living, dining, and kitchen areas under a continuous green-toned ceiling. This ceiling plane, echoed in the covered walkways, enhances the sense of continuity throughout the residence. Wood-paneled detailing, exposed brick, and polished concrete floors form the foundation of a warm and tactile material experience. Each zone flows into the next, connected by carefully choreographed sightlines and natural light.

Furniture crafted from timber and a minimal decor palette allow material texture and craftsmanship to take center stage. The house isn't cluttered with ornamentation—it breathes. Light filters through wooden jali screens, creating changing patterns throughout the day that animate the walls and floors.

The Courtyard: The Soul of the House
At the heart of the home lies a central courtyard, enclosed yet visually open, capped with a translucent pergola composed of parallel white louvers. This element filters daylight into the courtyard, casting dynamic shadows that shift with the sun's movement. A gravel bed and terracotta urns complete the scene, making the courtyard a meditative core that offers both thermal comfort and spatial orientation.

Surrounded by circulation spaces, this courtyard functions as a nexus—connecting all wings of the house while introducing nature into the center of daily life. It serves as an experiential pause in the architectural journey of the home, balancing the structured clarity of the design with the organic unpredictability of light, air, and shadow.
Textural Harmony in the Private Spaces
The master bedroom continues the language of balance and texture. A fluted wooden wall panel behind the bed provides vertical rhythm and subtle depth. Cane elements in the headboard and full-height drapes soften the space, while large windows with wooden louvers allow for controlled daylighting and views of the garden.
Lighting is kept to a minimum—just enough to highlight form without overwhelming the senses. This curated restraint results in a calm and contemplative atmosphere. The bedroom feels simultaneously intimate and expansive, with the landscape always within visual reach.


A Dialogue Between Modernism and Climate Responsiveness
Shakeer House is a celebration of tropical modern house design that prioritizes context, climate, and comfort. The use of local materials like exposed brick, timber, and terracotta ensures that the house not only looks rooted but performs accordingly in its humid tropical setting. These materials age gracefully, offering both aesthetic longevity and practical durability.


More than a residence, Shakeer House is an architectural meditation—one that embraces the rhythms of nature and daily life with equal elegance. It is a home designed not just to be lived in, but to be experienced through all senses, all seasons, and all stages of life.

All Photographs are works of Studio IKSHA
Popular Articles
Popular articles from the community
The Ken Roberts Memorial Delineation Competition (Krob)
As the most senior architectural drawing competition currently in operation anywhere in the world, it draws hundreds of entries each year, awarding the very best submissions in a series of medium-based categories.
Solar Steam: A Climate-Responsive Architecture That Redefines the Monument
A climate-responsive memorial architecture that transforms heat, decay, and time into a living system reflecting humanity’s ecological impact.
Free Architecture Competitions You Can Enter Right Now
No entry fees, real prizes. Here are the best free architecture competitions open for submissions in 2026.
Atelier Macri Concept Store Interior Design by CASE-REAL
Atelier Macri store features a "ko" counter, walnut wood details, cork displays, blending retail, gallery, and seamless customer experiences.
Similar Reads
You might also enjoy these articles
Bamboo Housing Challenge 2026: Design Affordable, Sustainable Homes Using Bamboo
An international design competition by Bamboo U and IBUKU inviting architects and designers to reimagine affordable housing using bamboo — with the winning design built full-scale in Bali.
Computational Design & Education: Beegraphy Design Awards Introduces 7th Category (Featuring Jiyun's Innovative Approach)
Dive into Beegraphy’s 7th Design Awards category, where computational design meets education to create immersive, interactive learning tools, inspired by Jiyun’s work.
From Parametric Lighting to Urban Furniture: Join the 2nd Workshop in Beegraphy’s Computational Design Series
Dive into Cutting-Edge Design Techniques and Practical Applications with Industry Experts
Explore Architecture Competitions
Discover active competitions in this discipline
The International Standard for Design Portfolios
The Global Benchmark for Architecture Dissertation Awards
The Global Benchmark for Graduation Excellence
Challenge to reimagine the Iron Throne
Comments (0)
Please login or sign up to add comments
No comments yet. Be the first to comment!