Souto de Moura Turns a Lisbon Power Plant into a Brewery
A Pritzker laureate converts a decommissioned military power station in Beato into a microbrewery and restaurant that honors every original scar.
Adaptive reuse projects risk two opposite failures: erasing the past entirely, or preserving it so reverently that the new program feels like an apology. At Browers Beato, Eduardo Souto de Moura and Nuno Graça Moura dodge both. They have taken the former Electric Central of Lisbon's Military Maintenance compound and inserted a fully operational microbrewery and restaurant into 851 square meters of industrial shell, treating the stainless steel fermentation tanks not as equipment to be hidden but as the architectural event of the room.
The project sits in the Beato district, an area that has been slowly reinventing itself through cultural and gastro-industrial programs lodged inside the neighborhood's stock of 19th- and early 20th-century military infrastructure. The power plant's thick masonry walls, arched windows, and robust floor plates were built to house generators and turbines. Swapping electrical machinery for brewing machinery is, in a certain poetic sense, barely a change of use at all. Energy still gets produced here; you just drink it now.
The Urban Setting: Beato's Industrial Threshold



Beato's streetscape reads like a catalogue of Lisbon's utilitarian architecture: white rendered facades with repetitive arched openings, arcaded sidewalks, overhead power lines, and the occasional cylindrical water tower punctuating the skyline. The Browers Beato building sits comfortably within this grain, its street-facing elevation of arched windows and stone lintels looking almost unchanged from the day it stopped generating electricity.
That continuity is the point. Rather than announcing its conversion with a dramatic new skin, the project lets the surrounding context do the talking. You discover the transformation only upon stepping through the grey-green steel and glass entrance doors. The district's gradual shift from military to civic use becomes legible precisely because individual buildings like this one refuse to shout about their new life.
Arriving at the Arcade



The covered arcade that wraps the building's perimeter serves as a decompression chamber between the street and the interior. White square columns, chunky and unapologetic, carry a flat roof that once sheltered military logistics. A circular metal duct wraps around one pillar, a blunt reminder that this is not a heritage museum but a working building with mechanical needs. The architects seem to relish these collisions: old stone, new ductwork, zero camouflage.
From the rooftop or the nearby plaza, the compound's white arcaded facades frame public space in a way that feels almost Mediterranean. The courtyard, with its single mature tree and flanking masonry volumes, gives the complex a monastic calm that the buzzing interior immediately contradicts.
Before and During: Reading the Scars



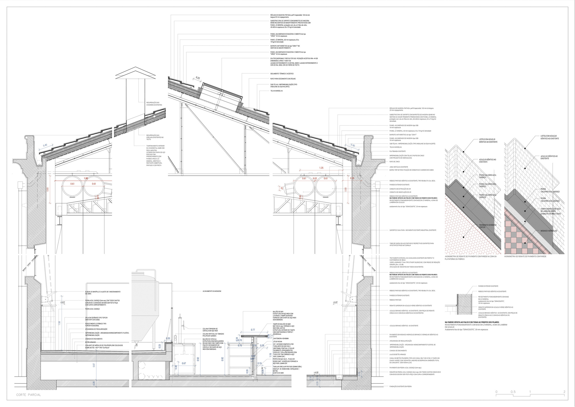
Pre-renovation photographs reveal a hollow shell: exposed concrete walls bearing the ghosts of removed equipment, remnant tile wainscoting, arched windows punched through massive masonry. The proportions were always generous. What the space lacked was a reason to exist. During construction, a new steel truss roof was threaded over the original arched stone facade, a move that simultaneously stabilized the structure and established the visual language of the finished interior.
Souto de Moura has built a career on what might be called strategic roughness, letting materials speak without cosmetic correction. Here, the weathered concrete walls and the patina of old tile were retained as a backdrop against which the gleaming stainless steel equipment would read as precisely what it is: an insertion, not a renovation. The before-and-after gap is narrow but decisive.
Brewing as Architecture



The most striking design decision is the refusal to segregate brewing from dining. Stainless steel tanks, fermentation vessels, and industrial piping occupy the same hall as the restaurant tables. Arranged along one wall, the equipment reads like a monumental installation, its reflective surfaces bouncing light from the arched windows across the terracotta floor. A long counter with circular stools faces the machinery head-on, positioning the brewing process as live theater.
Overhead, the exposed truss ceiling with red tile infill provides a warm counterpoint to the cool steel below. The architects clearly understood that a microbrewery's equipment possesses its own formal rigor: cylindrical vessels, precise pipe runs, polished welds. By placing these objects in dialogue with the heavy masonry arches and iron roof structure, Souto de Moura creates a double reading of industrial craft separated by a century.
The Dining Hall in Action



Timber tables and simple chairs populate the hall without pretension. The chequered tile floor, inherited from the original building, anchors the furniture in a material history that the architects wisely left intact. When the room fills with diners, the elevated tanks and dark blue pipework become a backdrop rather than a spectacle, which is the surest sign that the program integration works. You eat and drink surrounded by the means of production, and it feels natural rather than gimmicky.
Color choices are restrained but deliberate. Pink chairs at a round table sit beside deep blue industrial pipework, creating small moments of chromatic tension against the otherwise neutral palette of white, timber, steel, and terracotta. These touches prevent the space from tipping into the dour seriousness that sometimes plagues Pritzker laureate commissions.
Daylight and Night Character



During the day, the double-height hall is flooded with natural light through its generous arched windows. The exposed steel roof structure casts a lattice of shadows over the open kitchen area, animating the space as the sun moves. The original fenestration pattern, designed to illuminate machinery, turns out to be perfectly calibrated for a restaurant: even, abundant light without glare.
At night, the building reverses its relationship with the street. The arched windows glow warm yellow, turning the formerly utilitarian facade into a lantern along the Beato sidewalk. It is a small but effective piece of urban generosity, signaling activity and welcome in a neighborhood that historically turned its back on pedestrian life.
Courtyard and Context


The courtyard, flanked by white masonry buildings and centered on a single tree, provides the compound with an outdoor room that feels both generous and contained. The cylindrical water tower visible beyond the site acts as a vertical marker for the district, linking the Browers Beato project to the broader industrial landscape. These contextual moves, quiet as they are, demonstrate the architects' attentiveness to scale and memory.
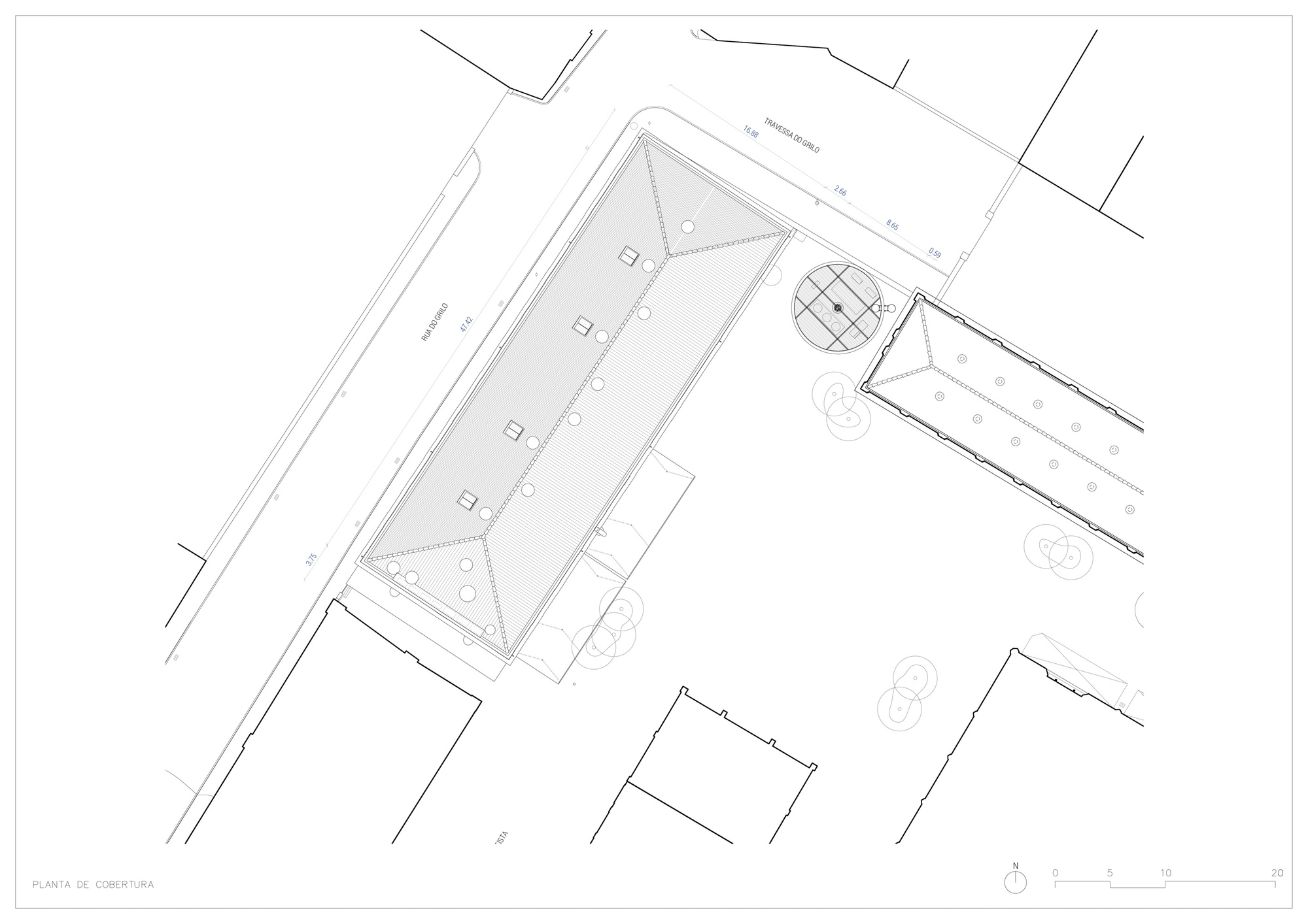
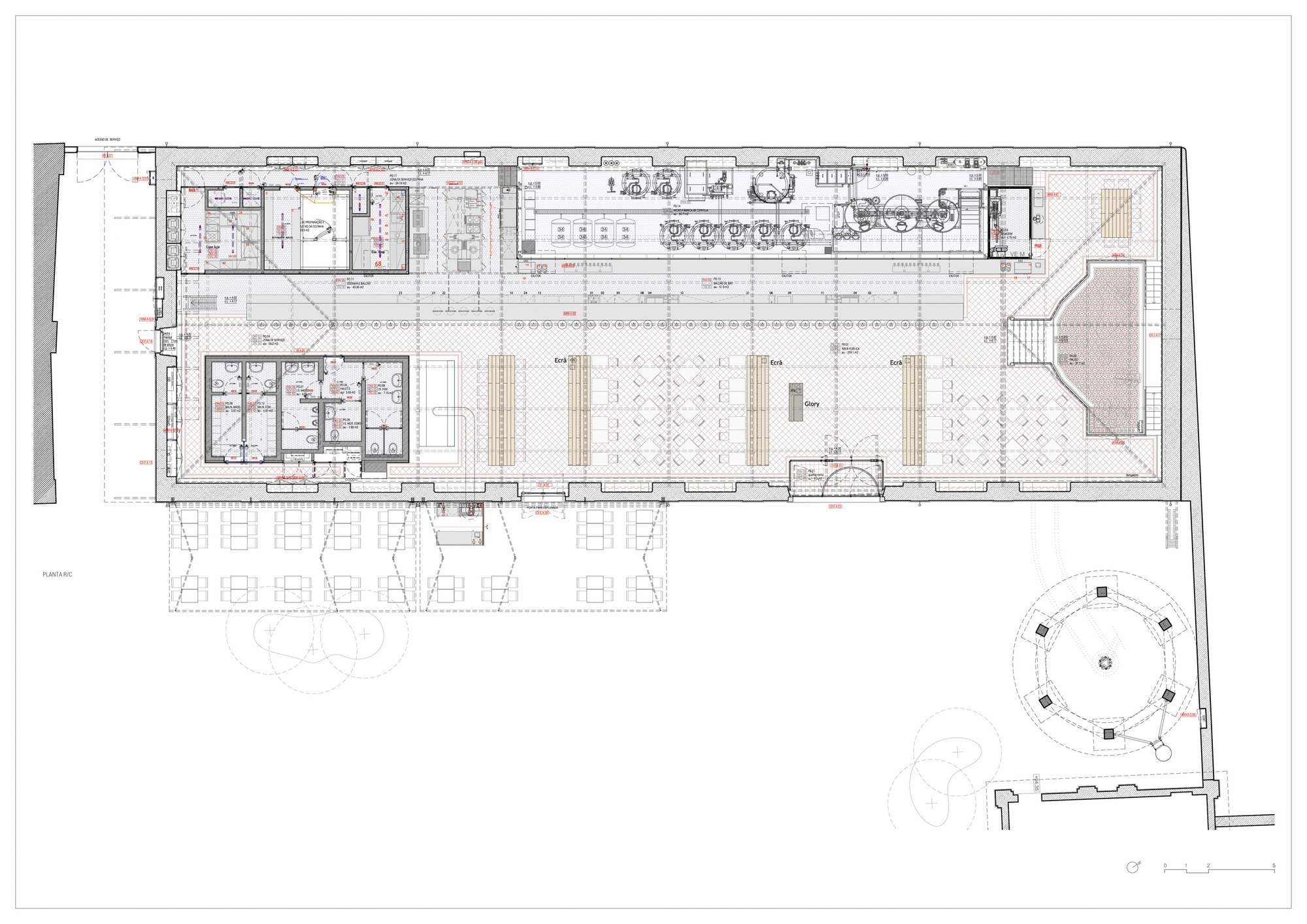
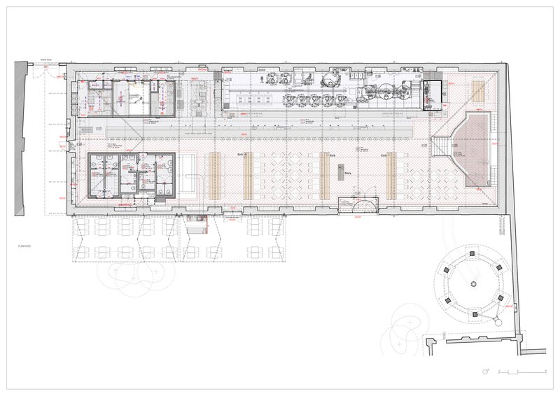
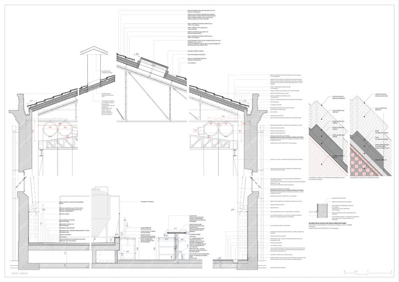
Plans and Drawings











The drawings reveal the project's organizational clarity. The site plan shows the pentagonal main hall coupled with a circular pavilion at one end, a formal pairing that is barely legible from inside but gives the plan its distinctive character. Sections through the main hall expose the relationship between the arched window wall and the steel truss roof, illustrating how the new structure rides above the old masonry like a parasol. The detailed section drawing annotates roof assembly and wall construction layers, confirming an approach that is surgical rather than wholesale.
Elevation drawings emphasize the repetitive rhythm of arched windows and chimney stacks along the long facade. The symmetrical composition of the low pavilion reads almost civic in character, while the industrial hall with its adjacent silo and service structures retains the compound's utilitarian silhouette. These drawings make a persuasive case that restraint in external expression can coexist with radical internal transformation.
Why This Project Matters
Browers Beato matters because it demonstrates that adaptive reuse need not be a compromise between conservation and program. By choosing a use whose equipment matches the scale and material language of the original machinery, Souto de Moura and Graça Moura sidestep the usual friction of old shells versus new contents. The result feels inevitable rather than imposed, a quality that separates great conversions from competent ones.
It also offers a model for Lisbon's ongoing reckoning with its post-industrial fabric. Beato's military infrastructure is vast, and much of it remains underused. This project proves that architectural restraint, paired with a willingness to let industrial equipment share the stage with diners, can produce a space that is simultaneously public amenity, working factory, and cultural statement. That is a lot of output for 851 square meters.
Browers Beato Microbrewery and Restaurant by Eduardo Souto de Moura + Nuno Graça Moura. Lisboa, Portugal. 851 m². Completed 2024.
About the Studio
Share Your Own Work on uni.xyz
If projects like this are the kind of work you want to make, uni.xyz is a place to publish your own, find collaborators, and enter design competitions.
Popular Articles
Popular articles from the community
TGK Nirasaki Plant: A Smart Factory Blending Technology, Landscape, and Wellness
Smart factory in Japan blending IoT manufacturing, scenic trail design, natural ventilation, and landscape integration to enhance user experience and sustainability.
Fifth NRE Jazz Club: De Bever Architecten: Eindhoven’s Revitalized Cultural Hub
Historic gas factory transformed into Fifth NRE Jazz Club blending modern sustainability, jazz culture, dining, and heritage architecture seamlessly.
Alton Cliff House: A Harmonious Retreat by f2a Architecture in Lake Country, Canada
Alton Cliff House blends corten steel, prefabrication, and sustainable design, creating a luxurious, energy-efficient retreat perched on Canadian cliffs.
Magic Box Office Barcelona Innovative Sustainable Workplace Design
Innovative sustainable office design featuring triangular form, ceramic façade, flexible interiors, natural light optimization, and creative workspace for modern work culture.
Similar Reads
You might also enjoy these articles
20 Most Popular Commercial Architecture Projects of 2025
From sustainable market concepts to heritage factories, the commercial buildings and proposals that drew the most attention on uni.xyz this year.
Magic Box Office Barcelona Innovative Sustainable Workplace Design
Innovative sustainable office design featuring triangular form, ceramic façade, flexible interiors, natural light optimization, and creative workspace for modern work culture.
Mantiqueira House by SysHaus and M Magalhães Estúdio
A linear modular house embedded in Serra da Mantiqueira, integrating panoramic views, sustainable prefabrication, minimal terrain impact, and contemporary interiors.
Guardia di Finanza Office Building by DEMOGO
Stepped institutional office in Bologna integrates terraces, red-toned facade, and linear staircase, reconnecting military complex with surrounding urban landscape.
Comments (0)
Please login or sign up to add comments
No comments yet. Be the first to comment!