Sustainable Eco Village Architecture: Chã de Igreja by Ramos Castellano Arquitectos
Chã de Igreja eco village by Ramos Castellano Arquitectos demonstrates sustainable architecture through water management, local materials, and community development.
Chã de Igreja, located on the volcanic island of Santo Antão in Cape Verde, is home to a remarkable example of sustainable eco village architecture designed by Ramos Castellano Arquitectos. The project, developed on a 5-hectare plot, exemplifies how architecture can harmonize with nature while fostering a sense of community and sustainability. It is an innovative approach that addresses both environmental and social challenges, turning a neglected, dry area into a thriving settlement. This eco village promotes sustainable agriculture, water management, and renewable energy, reflecting a holistic, contemporary vision of rural living.






The Project Vision and Concept
The idea for the eco village began when the owners of a German tourist agency contacted Ramos Castellano Arquitectos to design a real estate development in the region. However, the architects transformed the project from a typical real estate venture into a model of sustainable, organic development. The final design includes 14 double rooms, 4 villas, a restaurant with a lounge, a multifunctional panoramic building, a photovoltaic field, water storage deposits, and a well.




The site is designed to integrate seamlessly into the mountain landscape, respecting its natural features and preserving its ecological integrity. The project’s focus on sustainability is evident in the cultivation of 3 hectares of previously barren land, transforming it into irrigated, cultivable terrain that provides vegetables and fruits to the local market. This initiative has helped reduce the price of vegetables in the surrounding communities, providing economic benefits and increasing food security.





Architecture Integrated with Nature
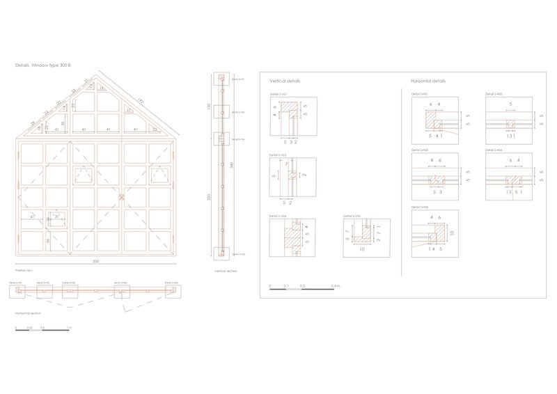
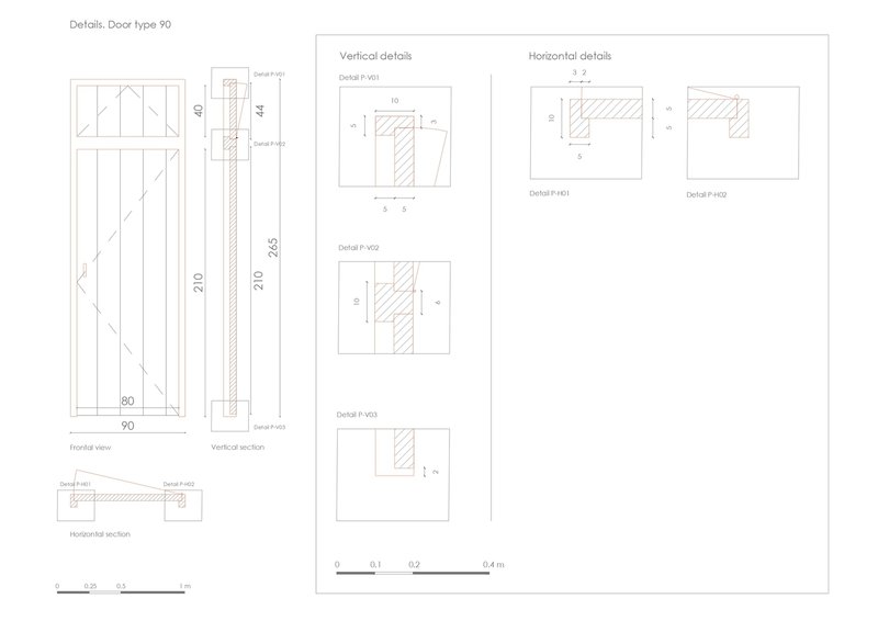
The architecture of Chã de Igreja is carefully integrated with its environment, with buildings positioned to avoid strong winds and rockfall while providing stunning views of the valley and the sea. The use of local materials such as basalt stone, sand, and gravel, sourced directly from the surrounding area, ensures that the buildings blend harmoniously with the natural landscape. These materials provide thermal comfort through thermal inertia and cross ventilation, reducing the need for air conditioning and minimizing the project's environmental impact.




The design philosophy emphasizes simplicity, with buildings constructed using local labor and traditional methods. This approach not only supports the local economy but also preserves the cultural heritage of the region. The project minimizes the use of heavy machinery, instead focusing on human energy and craftsmanship, thus fostering community involvement in the construction process.




Sustainable Systems and Water Management
Water scarcity is a significant issue in Cape Verde, with the region experiencing infrequent rainfall. To address this, the Chã de Igreja eco village incorporates a desalination plant powered by solar energy, ensuring a constant supply of water. The buildings are equipped with systems that filter and reuse gray water for irrigation, reducing waste and promoting responsible water use.



These water management strategies ensure the long-term sustainability of the eco village, supporting both the residents and the surrounding environment. The project's commitment to renewable energy is further reinforced by the use of photovoltaic panels, which provide clean, solar-powered electricity to the village.



Enhancing the Local Community and Ecosystem
Beyond its environmental achievements, the Chã de Igreja eco village has also had a significant social impact. The project has created employment opportunities for local residents, both during construction and through ongoing agricultural activities. This economic boost has helped revitalize the surrounding villages, which were previously facing depopulation due to a lack of opportunities.

The introduction of a cooperative, sustainable tourism model, as opposed to the traditional all-inclusive hotels commonly found in other parts of Cape Verde, has fostered a new relationship between visitors and locals. The eco village is seen as a space of cooperation and mutual benefit, where both parties contribute to the overall well-being of the community.





Landscaping and Sensory Design
The landscape design at Chã de Igreja has been carefully planned to engage visitors with the surrounding environment. The use of vegetation, which covers roofs, walls, and terraces, enhances the eco village’s natural beauty while promoting biodiversity. An agronomist was consulted to create multi-sensory paths throughout the site, ensuring that the arrangement of plants and the direction of the prevailing winds bring distinct fragrances to different parts of the settlement.





Particular attention was also given to the soundscape, with the positioning of buildings and terraces designed to amplify the sound of the ocean waves below. This creates a serene atmosphere, further enhancing the eco village's connection to nature and enriching the visitor experience.





A New Model for Sustainable Rural Living
Chã de Igreja is a prime example of how sustainable architecture can transform a remote and barren area into a thriving, self-sufficient community. The project not only addresses environmental challenges but also supports local economies and social structures, fostering a deep connection between nature and human life. With its focus on ecological harmony, renewable energy, and community development, the Chã de Igreja eco village sets a new standard for sustainable rural living and tourism.









All Photographs are work of Sergio Pirrone
Popular Articles
Popular articles from the community
Solar Steam: A Climate-Responsive Architecture That Redefines the Monument
A climate-responsive memorial architecture that transforms heat, decay, and time into a living system reflecting humanity’s ecological impact.
Fifth NRE Jazz Club – De Bever Architecten: Eindhoven’s Revitalized Cultural Hub
Historic gas factory transformed into Fifth NRE Jazz Club blending modern sustainability, jazz culture, dining, and heritage architecture seamlessly.
The Ken Roberts Memorial Delineation Competition (Krob)
As the most senior architectural drawing competition currently in operation anywhere in the world, it draws hundreds of entries each year, awarding the very best submissions in a series of medium-based categories.
Gads Hill Early Learning Center by JGMA: Adaptive Reuse Shaping Community-Focused Educational Architecture
Adaptive reuse transforms fragmented structure into vibrant early learning center with playful façade, natural light, and community-focused sustainable design.
Similar Reads
You might also enjoy these articles
The Ken Roberts Memorial Delineation Competition (Krob)
As the most senior architectural drawing competition currently in operation anywhere in the world, it draws hundreds of entries each year, awarding the very best submissions in a series of medium-based categories.
Waterfront Redevelopment and Urban Revitalization in Mumbai: Forging a New Dawn for Darukhana
A transformative waterfront redevelopment project reimagining Darukhana’s shipbreaking heritage into an inclusive urban future.
OUT-OF-MAP: A Call for Postcards on Feminist Narratives of Public Space
Rhizoma Design and Research Lab invites artists, designers, architects, researchers, and students to reflect on how feminist perspectives can reshape public space. Selected works will be exhibited in Barcelona, October 2026. Submissions open until 15 April 2026.
Documentation Work on Buddhist Wooden Temple
Architectural syncretism and cultural hybridity: A comparative study of the Buddhist temples in Chattogram Hill tracks
Explore Architecture Competitions
Discover active competitions in this discipline
The International Standard for Design Portfolios
The Global Benchmark for Architecture Dissertation Awards
The Global Benchmark for Graduation Excellence
Challenge to reimagine the Iron Throne
Comments (0)
Please login or sign up to add comments
No comments yet. Be the first to comment!