Sustainable Luxury Homes in Brazil: A Closer Look at Conquista House by David Guerra Arquitetura e Interiores
Explore Conquista House in Brazil, a masterpiece of sustainable luxury by David Guerra, blending eco-friendly design with modern elegance.
In the heart of Rolândia, Brazil, nestled amidst lush gardens and a breathtaking landscape, lies the Conquista House, a beacon of sustainable luxury designed by David Guerra Arquitetura e Interiores. Completed in 2023, this 700 square meter masterpiece redefines the concept of eco-friendly elegance in modern architecture. This article delves into the design philosophy, architectural nuances, and sustainable features that make Conquista House a paragon of luxury homes in Brazil.




The Genesis of Conquista House
The inception of Conquista House was driven by the vision of a soy farm owner with a passion for landscape architecture and a deep-rooted connection to her family's legacy. The new house was envisioned to pay homage to the wooden structure of her parents' home, blending tradition with contemporary design. David Guerra, the lead architect, was chosen for his alignment with the client's architectural and environmental sensibilities.




Design Philosophy and Sustainable Integration
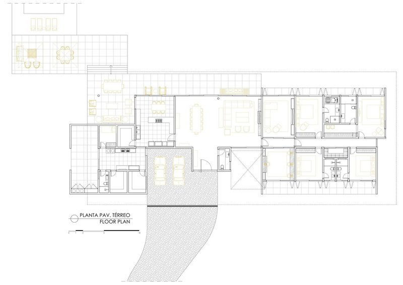
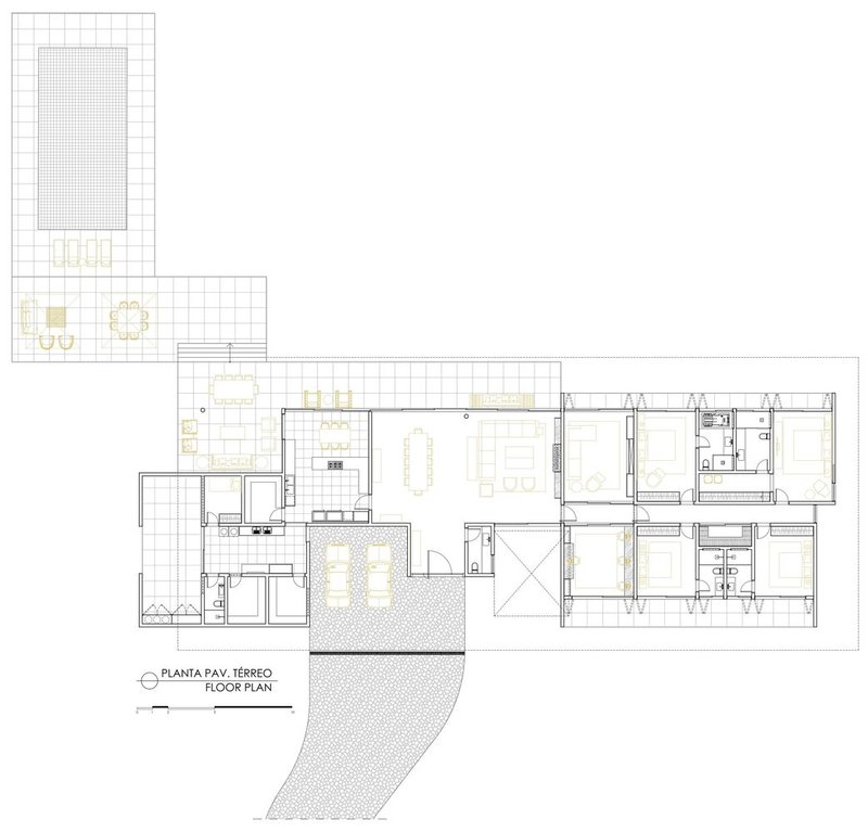
The design of Conquista House is a testament to the harmonious integration of architecture and nature. The project emphasizes the preservation of the existing garden, cultivated for over 30 years, and the inclusion of sustainable practices in its construction. With a single-level plan reminiscent of colonial farms, the house features abundant natural lighting and cross-ventilation, reducing the need for artificial lighting and air conditioning.




Embracing Nature and Sustainability
One of the key requests from the client was to design a residence that not only blends with the surrounding landscape but also enhances it. The house is strategically elevated to offer panoramic views of the river and to incorporate an existing lake and a centenary fig tree into its design. This elevation also serves a practical purpose, minimizing the impact on the garden and existing structures during construction.





Architectural Highlights of Conquista House
Conquista House boasts a large roof that provides shade and cooling, reducing the home's heat gain. The interior spaces, including the living room, dining room, kitchen, office, and bedrooms, are seamlessly connected through a large balcony that encourages outdoor living and interaction with the landscape.






The Role of Light and Space
The architecture of Conquista House is characterized by its tall ceilings and expansive windows, which enhance the sense of space and bring the outdoors in. This design approach not only maximizes natural light but also facilitates cross-ventilation, creating a comfortable and energy-efficient interior environment.










Conquista House by David Guerra Arquitetura e Interiores stands as a shining example of sustainable luxury homes in Brazil. Its thoughtful design, emphasis on environmental preservation, and integration with the landscape showcase the potential for modern architecture to create luxurious spaces that are in harmony with nature. As we move towards a more sustainable future, projects like Conquista House pave the way for innovative and eco-friendly design in luxury living.




All photographs are work of R, R Rufino
Popular Articles
Popular articles from the community
The Ken Roberts Memorial Delineation Competition (Krob)
As the most senior architectural drawing competition currently in operation anywhere in the world, it draws hundreds of entries each year, awarding the very best submissions in a series of medium-based categories.
Flamboyant House by Juliana Camargo + Prumo Projetos
Modern Brazilian house integrating existing tree, pool, and volumes with glass, wood, and transitional spaces blending interior, exterior, and landscape seamlessly.
Louis Malle Cinema: A Limestone Cultural Landmark Revitalizing Community Life in Prayssac
Limestone cinema extension with public forecourt, blending heritage and modern design to create flexible cultural spaces and strengthen community interaction.
A Contemporary Take on Iranian Residential Architecture
A modern interior design in Mashhad that reinterprets brick, light, and spatial flow to create a warm, contemporary residential architecture.
Similar Reads
You might also enjoy these articles
The Ken Roberts Memorial Delineation Competition (Krob)
As the most senior architectural drawing competition currently in operation anywhere in the world, it draws hundreds of entries each year, awarding the very best submissions in a series of medium-based categories.
Waterfront Redevelopment and Urban Revitalization in Mumbai: Forging a New Dawn for Darukhana
A transformative waterfront redevelopment project reimagining Darukhana’s shipbreaking heritage into an inclusive urban future.
OUT-OF-MAP: A Call for Postcards on Feminist Narratives of Public Space
Rhizoma Design and Research Lab invites artists, designers, architects, researchers, and students to reflect on how feminist perspectives can reshape public space. Selected works will be exhibited in Barcelona, October 2026. Submissions open until 15 April 2026.
Documentation Work on Buddhist Wooden Temple
Architectural syncretism and cultural hybridity: A comparative study of the Buddhist temples in Chattogram Hill tracks
Explore Architecture Competitions
Discover active competitions in this discipline
The International Standard for Design Portfolios
The Global Benchmark for Architecture Dissertation Awards
The Global Benchmark for Graduation Excellence
Challenge to design luxury tourism on rails
Comments (0)
Please login or sign up to add comments
No comments yet. Be the first to comment!