Sustainable Office Campus Design: Berliner Sparkasse by Tchoban Voss Architekten
The Berliner Sparkasse Office Campus by Tchoban Voss Architekten redefines workspace design with sustainability, flexibility, and nature integration.
A Landmark in Sustainable Architecture
The Berliner Sparkasse Office Campus, designed by Tchoban Voss Architekten, exemplifies innovative sustainable office campus design. Located in Berlin-Johannisthal near Germany's largest technology park, Adlershof, this 30,100 m² project redefines workspace architecture with its eco-conscious approach, flexible spaces, and seamless integration of nature. Awarded Gold Certification by the German Sustainable Building Council (DGNB), this campus sets a benchmark for modern, green office environments.





Site and Context: Berlin's Innovation Hub
Strategic Location
Situated in Berlin-Johannisthal, the campus is close to the historic Schöneweide railway depot and Adlershof, a hub for technology and media. This proximity ensures accessibility and places the campus at the intersection of tradition and innovation.





Integration with the Surroundings
The campus's design acknowledges its urban and historical context, harmonizing modern architectural aesthetics with the area's industrial heritage. The landscaped courtyards and green roofs provide a buffer between the built environment and nature.




Design Concept: Flexibility and Connectivity
1. Modular and Adaptive Layout
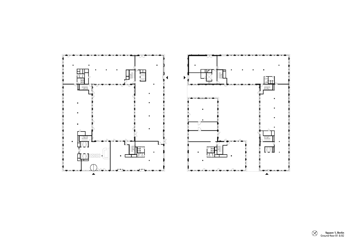
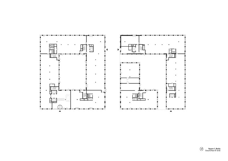
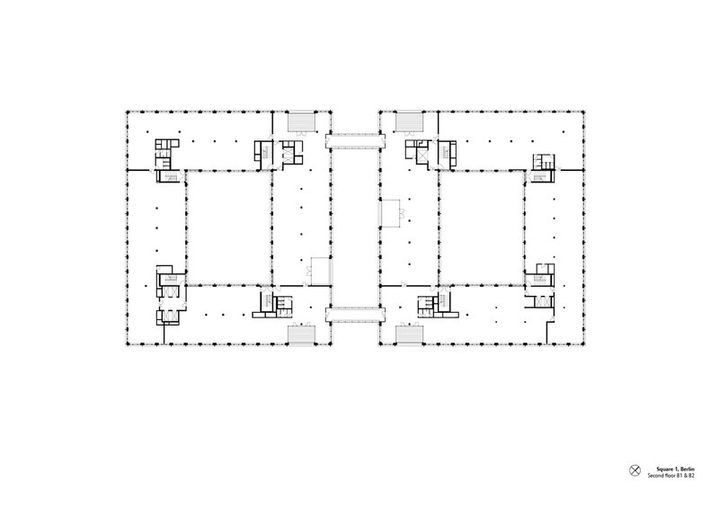
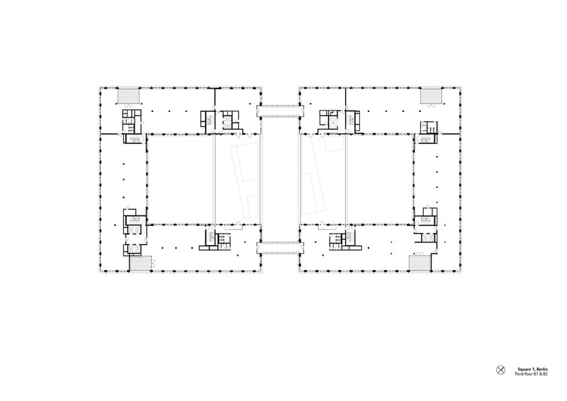
The campus features two interconnected buildings—B1 and B2—linked by glazed, two-story bridges on the second and third floors. These modular structures can function independently or as a unified space, accommodating varying tenant needs.

2. Green Courtyards and Roof Terraces
- Inner Courtyards: Landscaped spaces with seating areas foster relaxation and outdoor collaboration.
- Roof Terraces: Spanning 265 m² each, these terraces offer greenery and open-air workspaces, enhancing employee well-being.




3. Façade Design
The façade’s custom-made white aluminum panels and expansive panoramic windows ensure an abundance of natural light. A dynamic grid system and glass balustrades create a sleek, modern aesthetic, while the loggias and glass corners emphasize openness and transparency.




Sustainability: Beyond Green Design
1. Energy Efficiency
- Concrete Core Activation: Regulates indoor temperatures by leveraging the thermal mass of the building.
- Heating and Cooling Sails: Minimize energy consumption while maintaining comfort.
- District Heating: Reduces the environmental impact by tapping into Berlin’s efficient energy network.



2. Materials and Certification
Eco-friendly materials and cutting-edge technologies align with the highest ecological standards. These efforts earned the campus a DGNB Gold Certification, reflecting its commitment to sustainability.




Interior Spaces: Functional and Barrier-Free
1. Accessible Design
Every aspect of the campus ensures inclusivity, with barrier-free entrances, passageways, and internal circulation.
2. Dynamic Workspaces
The interiors balance functionality and aesthetics, with spacious conference rooms, training areas, and a central canteen. A two-story entrance in B1 welcomes visitors with an inviting and prestigious ambiance.
3. Natural Light Optimization
Large windows and glazed façades reduce the need for artificial lighting, promoting a healthier and more energy-efficient workspace.


Outdoor Facilities: Merging Architecture and Nature
1. Landscaping and Recreation
The green spaces between buildings are more than aesthetic elements—they serve as functional extensions of the workspace. Employees can relax, collaborate, or work outdoors in harmony with nature.
2. Connection to Nature
The blend of greenery and architectural elements reinforces a sense of tranquility, reducing workplace stress and enhancing productivity.




A Model for Sustainable Office Design
The Berliner Sparkasse Office Campus exemplifies sustainable office campus design, merging energy efficiency, adaptive layouts, and nature integration. With its eco-conscious strategies and flexible spaces, it sets a new standard for the future of workspace architecture, embodying the principles of functionality, sustainability, and modernity.






All photographs are work of HG Esch
Popular Articles
Popular articles from the community
Gads Hill Early Learning Center by JGMA: Adaptive Reuse Shaping Community-Focused Educational Architecture
Adaptive reuse transforms fragmented structure into vibrant early learning center with playful façade, natural light, and community-focused sustainable design.
Solar Steam: A Climate-Responsive Architecture That Redefines the Monument
A climate-responsive memorial architecture that transforms heat, decay, and time into a living system reflecting humanity’s ecological impact.
Fifth NRE Jazz Club – De Bever Architecten: Eindhoven’s Revitalized Cultural Hub
Historic gas factory transformed into Fifth NRE Jazz Club blending modern sustainability, jazz culture, dining, and heritage architecture seamlessly.
Similar Reads
You might also enjoy these articles
The Ken Roberts Memorial Delineation Competition (Krob)
As the most senior architectural drawing competition currently in operation anywhere in the world, it draws hundreds of entries each year, awarding the very best submissions in a series of medium-based categories.
Waterfront Redevelopment and Urban Revitalization in Mumbai: Forging a New Dawn for Darukhana
A transformative waterfront redevelopment project reimagining Darukhana’s shipbreaking heritage into an inclusive urban future.
OUT-OF-MAP: A Call for Postcards on Feminist Narratives of Public Space
Rhizoma Design and Research Lab invites artists, designers, architects, researchers, and students to reflect on how feminist perspectives can reshape public space. Selected works will be exhibited in Barcelona, October 2026. Submissions open until 15 April 2026.
Documentation Work on Buddhist Wooden Temple
Architectural syncretism and cultural hybridity: A comparative study of the Buddhist temples in Chattogram Hill tracks
Explore Architecture Competitions
Discover active competitions in this discipline
The International Standard for Design Portfolios
The Global Benchmark for Architecture Dissertation Awards
The Global Benchmark for Graduation Excellence
Challenge to reimagine the Iron Throne
Comments (0)
Please login or sign up to add comments
No comments yet. Be the first to comment!