Sustainable Residential Architecture: Verandah House by Studio PPBA
Verandah House by Studio PPBA blends traditional Wada architecture with sustainable design, creating a modern, climate-responsive, and harmonious home.
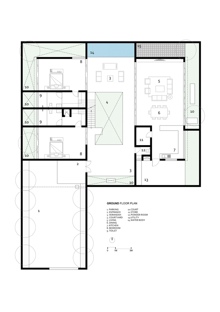
Verandah House, designed by Studio PPBA, is an exemplary model of sustainable residential architecture. Located in the riverside village of Nhavi Sandas, India, this 150 m² house reimagines traditional living spaces to meet modern needs while staying deeply rooted in the local cultural and environmental context. By drawing inspiration from the historic Wada houses, which once dotted the region, this design integrates sustainability, climate responsiveness, and the charm of time-tested architectural forms.



Reconnecting with Tradition through Sustainable Design
The village of Nhavi Sandas has historically been home to brick and stone courtyard houses, known as Wadas. These structures were well-suited to the local climate and built using sustainable materials. However, over time, modern buildings replaced these traditional homes, often lacking the energy efficiency and climate adaptation of their predecessors. Verandah House aims to reconnect with the timeless appeal of the Wada houses, adapting traditional forms and materials for modern living.


The design focuses on a central courtyard and verandah, which act as the heart of the home. This spatial arrangement helps divide the home into public and private areas while promoting natural light and ventilation throughout the house. The central verandah, serving as a semi-outdoor transition space, enhances the connection between the indoors and outdoors, maximizing the flow of air and light, while also maintaining privacy. This thoughtful integration of nature is key to the home’s energy efficiency and overall sustainability.


Climate-Responsive Architecture
Verandah House is a prime example of climate-responsive architecture. In addition to the central courtyard and verandah, which provide natural cooling, small courtyards along the boundary enhance cross-ventilation. These features help to optimize spatial flow and make the home more energy-efficient by reducing the need for mechanical cooling systems. The building’s materials—raw concrete for the foundation and brick for the upper structure—celebrate both the simplicity and functionality of the Wada aesthetic. These materials also offer durability and climate adaptation, ensuring that the house remains resilient against environmental factors.


The structure’s open-plan design maximizes the use of space while also allowing for ample natural light. The living, dining, and kitchen areas are arranged to facilitate social interactions, while the private quarters, including two bedrooms and a bathroom, offer tranquility and retreat. This balance of communal and private spaces is central to creating a harmonious and functional living environment.


Materiality and Design Innovation
Verandah House’s exterior showcases a bold, monolithic form that is both modern and reflective of its traditional roots. The solid stone base, which is a hallmark of Wada houses, has been reinterpreted with a raw concrete foundation, providing strength and stability to the structure. The brickwork above the foundation highlights the beauty of materiality, while its geometric simplicity adds to the visual appeal of the home. The house’s minimalistic approach to design results in a serene and introspective ambiance, with light-filled interiors, fresh white tones, and natural materials like wood and black basalt flooring.


The courtyards and planters not only enhance the aesthetic of the house but also contribute to its sustainability by promoting better air circulation and creating a calming green environment. These spaces provide privacy and a connection to nature, making Verandah House a peaceful, sustainable retreat.


Harmonizing Tradition and Modern Living
The design of Verandah House represents a sincere effort to create a living space that is in harmony with nature. By blending the traditional Wada form with modern design principles, Studio PPBA has created a home that respects cultural heritage while embracing contemporary needs. The result is a sustainable residential space that is not only functional but also environmentally responsible.


Verandah House proves that sustainable residential architecture is more than just a trend; it is a path toward a more harmonious, energy-efficient future. This home demonstrates that integrating nature, traditional wisdom, and modern design can create a living space that fosters well-being while minimizing environmental impact.

All Photographs are works of Hemant Patil
Popular Articles
Popular articles from the community
Free Architecture Competitions You Can Enter Right Now
No entry fees, real prizes. Here are the best free architecture competitions open for submissions in 2026.
Gads Hill Early Learning Center by JGMA: Adaptive Reuse Shaping Community-Focused Educational Architecture
Adaptive reuse transforms fragmented structure into vibrant early learning center with playful façade, natural light, and community-focused sustainable design.
Split House: A Compact Urban Home Blending Privacy, Light, and Flexible Living in Japan
Compact Japanese home featuring DOMA space, flexible café potential, passive lighting, privacy zoning, and sustainable urban living design.
Fifth NRE Jazz Club – De Bever Architecten: Eindhoven’s Revitalized Cultural Hub
Historic gas factory transformed into Fifth NRE Jazz Club blending modern sustainability, jazz culture, dining, and heritage architecture seamlessly.
Similar Reads
You might also enjoy these articles
The Ken Roberts Memorial Delineation Competition (Krob)
As the most senior architectural drawing competition currently in operation anywhere in the world, it draws hundreds of entries each year, awarding the very best submissions in a series of medium-based categories.
Waterfront Redevelopment and Urban Revitalization in Mumbai: Forging a New Dawn for Darukhana
A transformative waterfront redevelopment project reimagining Darukhana’s shipbreaking heritage into an inclusive urban future.
OUT-OF-MAP: A Call for Postcards on Feminist Narratives of Public Space
Rhizoma Design and Research Lab invites artists, designers, architects, researchers, and students to reflect on how feminist perspectives can reshape public space. Selected works will be exhibited in Barcelona, October 2026. Submissions open until 15 April 2026.
Documentation Work on Buddhist Wooden Temple
Architectural syncretism and cultural hybridity: A comparative study of the Buddhist temples in Chattogram Hill tracks
Explore Architecture Competitions
Discover active competitions in this discipline
The International Standard for Design Portfolios
The Global Benchmark for Architecture Dissertation Awards
The Global Benchmark for Graduation Excellence
Challenge to reimagine the Iron Throne
Comments (0)
Please login or sign up to add comments
No comments yet. Be the first to comment!