Sustainable Timber Architecture: The Saltviga House by Kolman Boye Architects
The Saltviga House exemplifies sustainable timber architecture, blending resource-efficient design with natural integration and timeless elegance.
Nestled within the serene boreal forests along the southeastern coast of Norway, the Saltviga House by Kolman Boye Architects exemplifies the union of innovative design, sustainability, and resource efficiency. Constructed using oak and Douglas fir off-cuts sourced from Dinesen’s floor production, this 140-square-meter home redefines how architectural practices can honor both material efficiency and environmental harmony. Completed in 2022, the Saltviga House is a remarkable testament to sustainable timber architecture.




Reinventing Waste Through Design
The Saltviga House emerged from a visionary concept: repurposing leftover timber from Dinesen's floor production to create a sustainable and visually striking home. By reassessing historical building practices and adapting them for modern applications, the architects sought to ennoble these timber scraps, transforming materials typically used as firewood into key structural and aesthetic components of the home.
This approach not only minimized waste but also reduced the embodied carbon of the materials, offering a sustainable alternative to more carbon-intensive options. Extensive research into material classification, stacking techniques, and experiential effects informed the design, resulting in a façade and cladding system that blends traditional craftsmanship with contemporary innovation.







A Collaborative Effort in Craftsmanship
The construction of the Saltviga House reflects the expertise and collaboration of skilled carpenters, joiners, and suppliers. Over 12,000 individual oak off-cuts were pre-cut, pre-drilled, and treated with tar before being transported to the site. Each piece was precisely handled during assembly, requiring over 20,000 stainless steel screws to achieve the robust layered effect of the exterior cladding.
The design process also included building multiple 1:1 mock-ups to refine technical details and ensure the façade’s durability. This meticulous approach resulted in a building that honors traditional material knowledge while embracing modern construction techniques.








Harmonizing Architecture with Nature
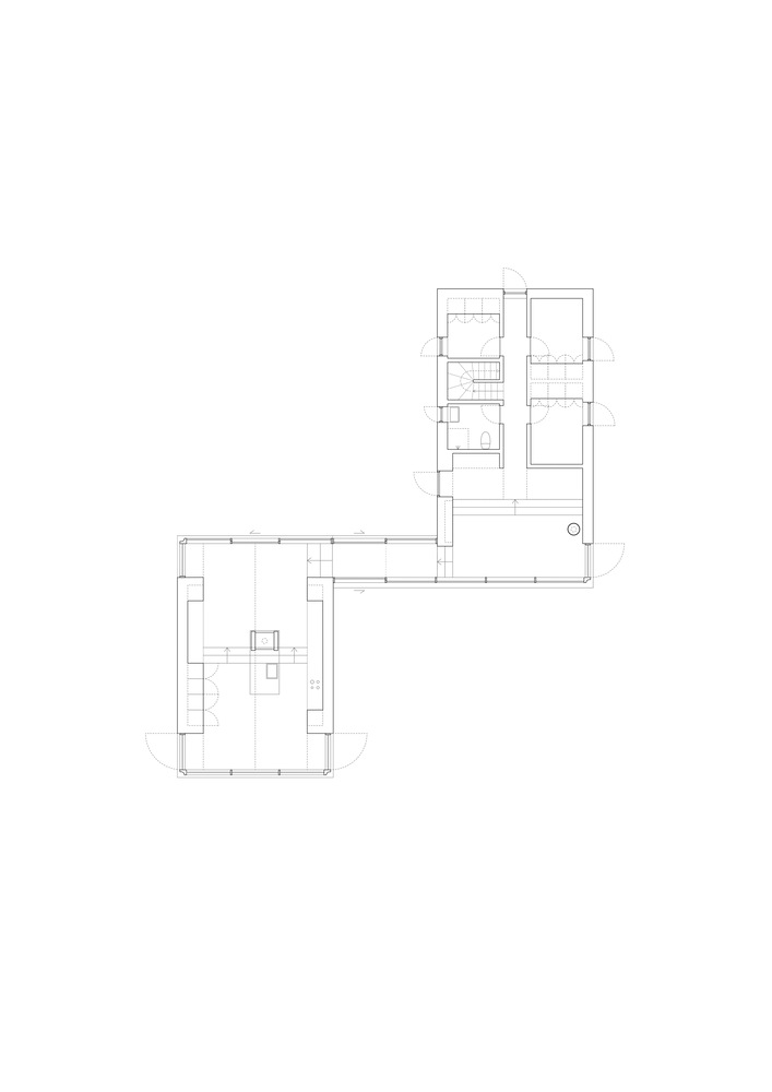
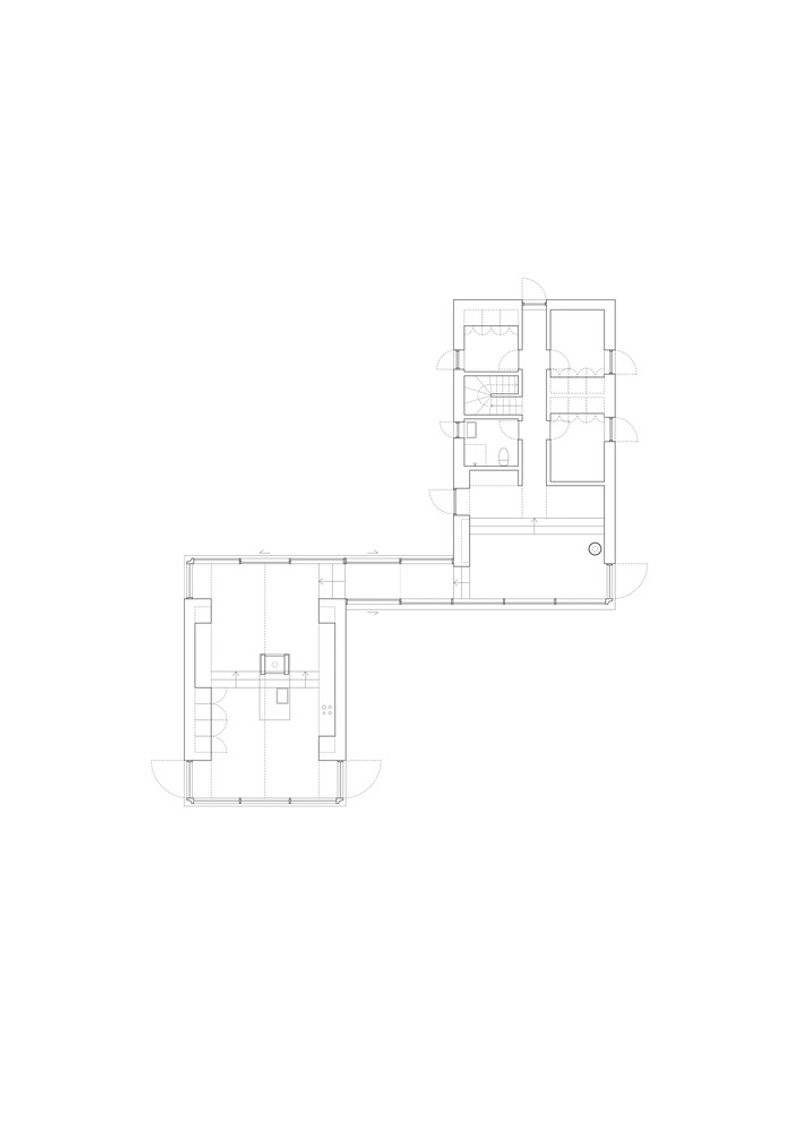
The Saltviga House is carefully integrated into its natural surroundings. Situated on a rocky bluff overlooking the Skagerrak sea, the house adapts to the northeast-sloping terrain without reshaping the land. Its three interconnected volumes are distributed across five distinct levels, creating a harmonious relationship between architecture and landscape.
The outdoor spaces further reflect this connection to nature. A courtyard facing the forest offers shelter from the wind, while an open deck provides breathtaking views of the sea through a carefully pruned "window-band" in the surrounding conifers. The exterior oak cladding is designed to weather gracefully, turning silvery-grey over time to blend seamlessly with the slate and granite landscape.






Interior Elegance and Cohesion
Inside, the Saltviga House offers a sense of unity and coherence through its thoughtful spatial design. The central hallway provides clear sightlines through the home, while expansive windows along the façade bring natural light and stunning sea views into every room. The interior features Douglas fir cladding in a warm, whitish hue, balanced by neutral screed floors, creating an inviting and tranquil atmosphere.
Each space within the house is uniquely defined by its volume and ceiling height, offering a variety of spatial experiences. The design seamlessly integrates functionality with aesthetic appeal, reflecting the architects' commitment to creating spaces that are both practical and beautiful.






A New Standard for Sustainable Architecture
The Saltviga House by Kolman Boye Architects sets a new standard for sustainable architecture. By reimagining waste materials and embracing a resource-efficient design philosophy, the project demonstrates how contemporary homes can harmonize with their natural surroundings while reducing environmental impact. This innovative approach serves as an inspiring example of how architecture can honor tradition, innovate with materials, and create spaces that are both timeless and forward-thinking.




All Photographs are work of Johan Dehlin
Popular Articles
Popular articles from the community
Fifth NRE Jazz Club – De Bever Architecten: Eindhoven’s Revitalized Cultural Hub
Historic gas factory transformed into Fifth NRE Jazz Club blending modern sustainability, jazz culture, dining, and heritage architecture seamlessly.
Split House: A Compact Urban Home Blending Privacy, Light, and Flexible Living in Japan
Compact Japanese home featuring DOMA space, flexible café potential, passive lighting, privacy zoning, and sustainable urban living design.
Gads Hill Early Learning Center by JGMA: Adaptive Reuse Shaping Community-Focused Educational Architecture
Adaptive reuse transforms fragmented structure into vibrant early learning center with playful façade, natural light, and community-focused sustainable design.
Similar Reads
You might also enjoy these articles
Bamboo Housing Challenge 2026: Design Affordable, Sustainable Homes Using Bamboo
An international design competition by Bamboo U and IBUKU inviting architects and designers to reimagine affordable housing using bamboo — with the winning design built full-scale in Bali.
Computational Design & Education: Beegraphy Design Awards Introduces 7th Category (Featuring Jiyun's Innovative Approach)
Dive into Beegraphy’s 7th Design Awards category, where computational design meets education to create immersive, interactive learning tools, inspired by Jiyun’s work.
From Parametric Lighting to Urban Furniture: Join the 2nd Workshop in Beegraphy’s Computational Design Series
Dive into Cutting-Edge Design Techniques and Practical Applications with Industry Experts
Explore Architecture Competitions
Discover active competitions in this discipline
The International Standard for Design Portfolios
The Global Benchmark for Architecture Dissertation Awards
The Global Benchmark for Graduation Excellence
Challenge to reimagine the Iron Throne
Comments (0)
Please login or sign up to add comments
No comments yet. Be the first to comment!