Sustainable Urban Architecture: The Vertikal Nydalen Project by Snøhetta
Explore Vertikal Nydalen by Snøhetta, a model of sustainable urban architecture blending innovative design with environmental consciousness in Oslo.
In the rapidly urbanizing world, sustainable urban architecture is critical for developing environmentally friendly and livable cities. The Vertikal Nydalen project in Oslo, Norway, designed by the renowned architecture firm Snøhetta, exemplifies innovative sustainable practices in a modern urban context.





Project Overview and Design Philosophy
Transformation of Nydalen
Located in the historic industrial area of Nydalen by the river Akerselva, the Vertikal Nydalen is part of Oslo’s broader initiative to transition from traditional industrial zones to vibrant residential and business districts. This mixed-use building not only adds to the urban tapestry but also aims to become a new social hub with its town square and car-free zones.





Architectural Design and Features
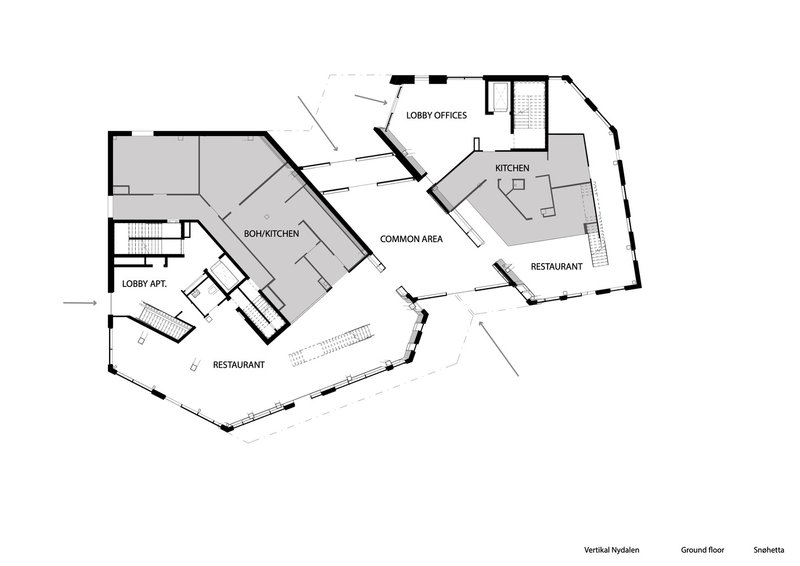
Vertikal Nydalen stands out with its dual-volume structure, comprising different heights to maintain sightlines and create a visually lighter impression. The building features restaurants, offices, and residential units, strategically designed to enhance sunlight access and reduce wind impact in the newly formed plaza.





Sustainable Features of Vertikal Nydalen
Triple-Zero Solution
A cornerstone of the project's sustainability is its 'triple zero solution'—no energy purchased for heating, cooling, or ventilation. This is achieved through advanced geothermal wells, photovoltaic (PV) panels, and a low-exergy system integrated within the building's structure.





Natural Ventilation System
Emphasizing the building's sustainable design, Vertikal Nydalen employs a natural ventilation system that eliminates the need for traditional ductwork, thus saving space and enhancing the spatial quality of indoor environments. The system utilizes strategically placed windows and valves to regulate air flow based on external pressure differences, promoting efficient air circulation without mechanical intervention.





Material Use and Structural Innovation
Sustainable Materials and Construction
The facade of Vertikal Nydalen is composed of heat-treated pine and features angled balconies with steel finishes, offering both durability and aesthetic appeal. Internally, exposed concrete helps maintain temperature stability, supplemented by minimalistic interior design to maximize the thermal properties of the materials used.




Energy and Resource Efficiency
The combination of energy-efficient materials and renewable energy sources significantly reduces the building's carbon footprint. Moreover, the integration of sensors and smart systems ensures ongoing optimization of energy use and indoor climate control, setting a benchmark in sustainable urban architecture.









Impact and Future Prospects
Vertikal Nydalen by Snøhetta is more than just a building; it's a blueprint for future sustainable urban architecture. With its innovative design and sustainability features, it demonstrates how architecture can contribute to the ecological and social fabric of urban environments. As cities continue to grow, projects like Vertikal Nydalen offer valuable insights into the integration of sustainability in urban development.




All photographs are work of Lars Petter Pettersen
Popular Articles
Popular articles from the community
Inverted Architecture Installation by Studio Link-Arc: Exploring the Intersection of Architecture and Living Organisms
Inverted Architecture Installation by Studio Link-Arc blends mycelium, sustainability, inverted design, ecological cycles, and urban adaptive architecture in Shenzhen.
Treehouse Apartment: A Warm Timber Interior Blending Craft, Play, and Contemporary Living
Warm timber apartment with integrated treehouse, combining natural materials, craftsmanship, and playful design to create a flexible, family-oriented living environment.
A Contemporary Take on Iranian Residential Architecture
A modern interior design in Mashhad that reinterprets brick, light, and spatial flow to create a warm, contemporary residential architecture.
Flamboyant House by Juliana Camargo + Prumo Projetos
Modern Brazilian house integrating existing tree, pool, and volumes with glass, wood, and transitional spaces blending interior, exterior, and landscape seamlessly.
Similar Reads
You might also enjoy these articles
The Ken Roberts Memorial Delineation Competition (Krob)
As the most senior architectural drawing competition currently in operation anywhere in the world, it draws hundreds of entries each year, awarding the very best submissions in a series of medium-based categories.
Waterfront Redevelopment and Urban Revitalization in Mumbai: Forging a New Dawn for Darukhana
A transformative waterfront redevelopment project reimagining Darukhana’s shipbreaking heritage into an inclusive urban future.
OUT-OF-MAP: A Call for Postcards on Feminist Narratives of Public Space
Rhizoma Design and Research Lab invites artists, designers, architects, researchers, and students to reflect on how feminist perspectives can reshape public space. Selected works will be exhibited in Barcelona, October 2026. Submissions open until 15 April 2026.
Documentation Work on Buddhist Wooden Temple
Architectural syncretism and cultural hybridity: A comparative study of the Buddhist temples in Chattogram Hill tracks
Explore Architecture Competitions
Discover active competitions in this discipline
The International Standard for Design Portfolios
The Global Benchmark for Architecture Dissertation Awards
The Global Benchmark for Graduation Excellence
Challenge to reimagine the Iron Throne
Comments (0)
Please login or sign up to add comments
No comments yet. Be the first to comment!