The Harmony of Tradition and Modernity: Molí House by Sagristà-Simó in La Puebla, Spain
This article explores Molí House, a sustainable residence in Sa Pobla, Spain, that harmoniously integrates traditional architecture with modern design.
Located in the scenic landscape of Sa Pobla, Spain, the Molí House, designed by architects Iván Moret Salvador and Magdalena Simó Serra of Sagristà-Simó, is a masterful integration of traditional architectural elements with contemporary design sensibilities. The house, completed in 2011, spans an area of 282 square meters and is a testament to the harmonious coexistence of built form and natural environment.

Architectural Context and Landscape
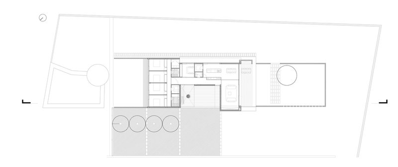
Molí House sits in a landscape characterized by its agricultural use, specifically in the "Marjals" of Sa Pobla, where the geometry and regularity of the plots dominate. This irrigated area is a flat, open landscape bordered by the majestic Serra de Tramuntana. The only vertical interruptions in this horizontal expanse are the historic mill towers used for drawing water and the ponds for storing it. This setting provides a unique backdrop that significantly influences the architectural design and orientation of the Molí House.


Design Philosophy
The design of Molí House is deeply rooted in the traditional architecture of the region, incorporating elements such as patios, walls, latticework, and vines. These features not only connect the house to its cultural context but also enhance its environmental performance. The house is oriented longitudinally at the bottom of the plot, perpendicular to the access road, maximizing the cultivation space and integrating the nearby mill and pond into the design.


Materiality and Construction
The use of sandstone, a material prevalent in the agricultural buildings of the area, textures the exterior volume of the house, creating a visual and tactile connection to its surroundings. The ground floor is built at ground level and structured around two large patios, each at one end of the house. These patios serve as transitional spaces that filter the relationship between the house and the nearest landscape, allowing for a seamless blend between indoor and outdoor environments.




Spatial Organization
The interior layout of Molí House is designed to maximize the natural light and views. The southwest orientation is reserved for the day areas, including the living room and kitchen, which benefit from ample sunlight and views of the landscape. The northeast part houses the bedrooms, providing a quieter, more private space. A longitudinal fluid space runs through the entire house, housing multifunctional areas such as a study and an access porch garage. This central space allows for a continuous cross-sectional view of the landscape, connecting the interior spaces with the surrounding orchard and distant mountains.



Interior Design and Materials
The interior of Molí House is characterized by its simplicity and warmth, achieved through the use of local materials. Natural stone paving from Binissalem is used throughout, complemented by wooden elements such as cupboards and sliding doors. These materials not only add warmth to the interior but also provide flexibility in the use of space. The minimalist approach to material selection ensures that the focus remains on the interaction between the interior spaces and the natural surroundings.


Sustainability and Environmental Considerations
In addition to its aesthetic and functional qualities, Molí House incorporates several sustainable design principles. The use of locally sourced materials reduces the environmental impact of transportation and supports the local economy. The design of the patios and the orientation of the house enhance natural ventilation and lighting, reducing the need for artificial cooling and lighting. These features contribute to the overall energy efficiency of the house, making it a sustainable model of residential architecture.


Molí House by Sagristà-Simó is a remarkable example of how traditional architectural elements can be seamlessly integrated into modern design to create a space that is both functional and aesthetically pleasing. The house’s thoughtful design, materiality, and orientation not only respect the cultural and environmental context but also enhance the living experience of its inhabitants. As a result, Molí House stands as a testament to the timeless appeal of architecture that harmonizes with its natural surroundings and cultural heritage.
All the photographs are work of Carlos Manuel González Baute
Popular Articles
Popular articles from the community
Atelier Macri Concept Store Interior Design by CASE-REAL
Atelier Macri store features a "ko" counter, walnut wood details, cork displays, blending retail, gallery, and seamless customer experiences.
The Ken Roberts Memorial Delineation Competition (Krob)
As the most senior architectural drawing competition currently in operation anywhere in the world, it draws hundreds of entries each year, awarding the very best submissions in a series of medium-based categories.
On the Brooks House by Monsoon Collective – A Contemporary Kerala Home Rooted in Tradition
Kerala home blending tradition and modernity with water-inspired design, brick architecture, courtyard planning, and sustainable rainwater harvesting strategies.
Inverted Architecture Installation by Studio Link-Arc: Exploring the Intersection of Architecture and Living Organisms
Inverted Architecture Installation by Studio Link-Arc blends mycelium, sustainability, inverted design, ecological cycles, and urban adaptive architecture in Shenzhen.
Similar Reads
You might also enjoy these articles
Inverted Architecture Installation by Studio Link-Arc: Exploring the Intersection of Architecture and Living Organisms
Inverted Architecture Installation by Studio Link-Arc blends mycelium, sustainability, inverted design, ecological cycles, and urban adaptive architecture in Shenzhen.
Walnut House in Ehden: A Contextual Architecture Extension Rooted in Landscape and Heritage
Walnut House integrates hillside architecture, terraces, and passive design, blending heritage, landscape, and contemporary living through contextual, sustainable design strategies.
On the Brooks House by Monsoon Collective – A Contemporary Kerala Home Rooted in Tradition
Kerala home blending tradition and modernity with water-inspired design, brick architecture, courtyard planning, and sustainable rainwater harvesting strategies.
Family House Polánka by CL3 Studio: A Bold Minimalist Residence Rooted in Context
Minimalist black house in Czechia reinterprets traditional form with sustainable design, passive systems, and strong indoor-outdoor connection through bold architecture.
Explore Residential Building Competitions
Discover active competitions in this discipline
The Global Benchmark for Architecture Dissertation Awards
Challenge to design mud housing for contemporary communities
Design challenge to reuse E-waste
Comments (0)
Please login or sign up to add comments
No comments yet. Be the first to comment!