...the little tea house on the hill
A little cafe in the small, cozy town of Bellingham, England, which specializes in offering the best tea party experience to its guests.
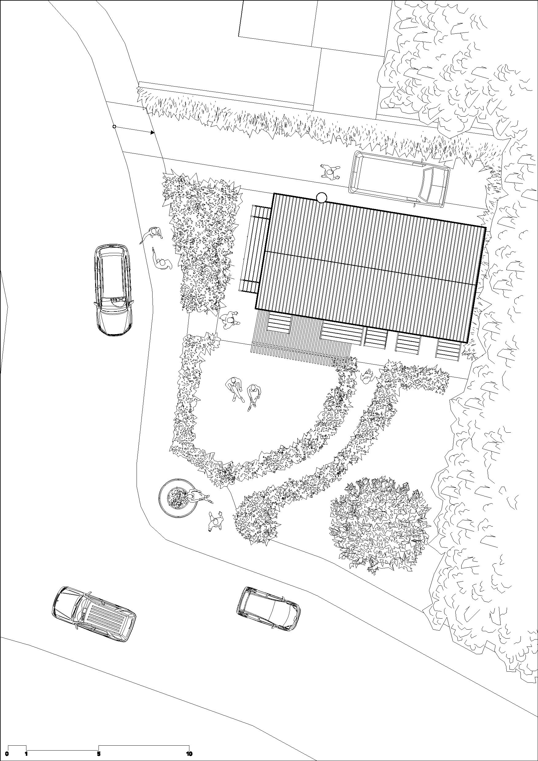
Bellingham is a small village near Newcastle. A quiet community on a small hill, close to nature. Pennine Way, one of the village’s larger roads, as well as the one our plot is located along, is said to be quite popular with hikers and cyclists.
Those characteristics of this area were what informed the majority of my design. I wished to stress the tight relationship with nature this village seems to have by incorporating a large amount of greenery in my design, as well as using natural materials for the building and construction.
The load bearing structure of the building is to be made by prefabricated CLT elements. This choice offers a number of advantages. As has been determined by numerous studies, CLT is friendlier for the environment that a number of other more common construction methods, such as concrete or steel, as its manufacturing results in fewer carbon dioxide emissions. It is also lightweight and easy to transport, resulting thus in lower logistics costs, as fewer trucks will be required to bring the elements to the site. The separate elements can be easily assembled on site. This material choice also offers a high degree of future flexibility, as the structure can easily be modified or even disassembled, making altering its use or even recycling it possible.
Structural diagram
The building was designed as a simple rectangular volume, reflecting the simplicity of the village’s other buildings. Taking into account the FAR and height limit, one ground floor and two floors were designed, each having an area of about 70 sqm. Given the limited amount of space, as well as the expected occupancy (30 people), each floor was designed to contain as much open area as possible, given the structural needs of the building. Storage space has been fitted mainly underneath the ground floor staircase, thus combining it with the kitchen. Additional storage spaces have been incorporated in large built-in cupboards on the other floors. One accessible WC has been planned on the ground floor.
Ground floor
First floor
Second floor
The southern part of the plot is occupied by a large garden. A single path leads from the crossroads to the tea house. Gravel is used on the path, as well as the area around the building, to enhance the feeling of being close to nature. The design for the garden incorporates large grassy areas to the south and west, where visitors are welcome to have a picnic and bask in the sun during the warmer months. On the northern part of the plot, behind the building, a small street has been incorporated, to be used by supply vehicles.
For the exterior facade, a cladding of wooden planks was chosen. This is expected to age into a pastel grey color, which makes it stand out from its surroundings just enough to make an impression, but not too much so that it looks over the top.
Site plan
Given the open, mostly flat nature of the garden, which lacks heavy structures, expanding the building to the south in the future should be fairly easy, if one desires to do so.
Much thought went into the choice of materials in the interior as well. It was driven by a desire to create a warm, inviting atmosphere, as well as a sense of luxury; much like as if one is visiting the house of a dear friend to have a cup of tea, instead of going to a cafe. Wood in warm tones, large couches, armchairs, and a fireplace on the first floor create an intimate, cozy atmosphere, which is accentuated by the glimpse of the sunset the building allows, as its larger openings are directed to the south and west. The largest window, on the second floor, frames the view of the setting sun like a painting.
Context section A-A
Section B-B
The openings were arranged on the facades in a somewhat rhythmic fashion, which is then broken playfully by the shading devices, as well as the placement, size and proportions of the openings on the south and north facades.
South facade
North facade
West facade
East facade
A grid of 60x60 cm was used to design the floor plans, as well as the facades to a certain extent. This made it easy to produce multiple iterations of the solution and finally choose the one that fit best my concept and the requirements of the brief. 3D modeling and rendering was used to explore the volumetric expression of the building, as well as simulate materials and lighting.
Popular Articles
Popular articles from the community
Atelier Macri Concept Store Interior Design by CASE-REAL
Atelier Macri store features a "ko" counter, walnut wood details, cork displays, blending retail, gallery, and seamless customer experiences.
On the Brooks House by Monsoon Collective – A Contemporary Kerala Home Rooted in Tradition
Kerala home blending tradition and modernity with water-inspired design, brick architecture, courtyard planning, and sustainable rainwater harvesting strategies.
The Ken Roberts Memorial Delineation Competition (Krob)
As the most senior architectural drawing competition currently in operation anywhere in the world, it draws hundreds of entries each year, awarding the very best submissions in a series of medium-based categories.
A Contemporary Take on Iranian Residential Architecture
A modern interior design in Mashhad that reinterprets brick, light, and spatial flow to create a warm, contemporary residential architecture.
Similar Reads
You might also enjoy these articles
The Ken Roberts Memorial Delineation Competition (Krob)
As the most senior architectural drawing competition currently in operation anywhere in the world, it draws hundreds of entries each year, awarding the very best submissions in a series of medium-based categories.
A Contemporary Take on Iranian Residential Architecture
A modern interior design in Mashhad that reinterprets brick, light, and spatial flow to create a warm, contemporary residential architecture.
Franche-Comté Advanced School of Engineering by Dominique Coulon & associés, Besançon
A flexible engineering school immersed in woodland, combining concrete minimalism, adaptable spaces, and natural light to support evolving educational environments.
Waterfront Redevelopment and Urban Revitalization in Mumbai: Forging a New Dawn for Darukhana
A transformative waterfront redevelopment project reimagining Darukhana’s shipbreaking heritage into an inclusive urban future.
Explore Architecture Competitions
Discover active competitions in this discipline
The International Standard for Design Portfolios
The Global Benchmark for Architecture Dissertation Awards
The Global Benchmark for Graduation Excellence
Challenge to design luxury tourism on rails















Comments (0)
Please login or sign up to add comments
No comments yet. Be the first to comment!