The Red House by MORFEUS arkitekter: A Compact Studio House Design Merging Creativity and Functionality
The Red House is a compact studio house design combining creative space, modern architecture, and rich personal history in Oslo.
A Thoughtful Garden Studio Rooted in Personal History
Located in the verdant residential neighborhood of Røa, on the outskirts of Oslo, The Red House by MORFEUS arkitekter is an exemplary case of compact studio house design that harmonizes architecture, landscape, and creative living. Designed for Norwegian author and artist Kari Fredrikke Brænne, this 77 m² structure stands as both a private studio and a multifunctional guesthouse nestled quietly within the garden of her childhood home.



The original property, with a main house dating back to 1936 by architect Jan Meyer, is rich in personal and architectural history. The client’s vision was to have a space of her own—a tranquil atelier to write and paint, yet functional enough to host family and guests. MORFEUS arkitekter translated this vision into a design that respects site constraints while introducing a distinct contemporary form.



A Compact Home That Balances Tradition and Modern Expression
The studio reads at first glance like a traditional Scandinavian red-painted house. Its modest scale and deep gabled roof blend seamlessly into the garden’s foliage and the neighborhood’s architectural character. However, upon closer inspection, its modernist geometry, large windows, and clever use of angles quietly assert its individuality.


The house is strategically positioned in the northwest corner of the plot, ensuring minimal disruption to the original 1936 and 1985 buildings on-site and preserving the mature garden and trees. This positioning also helps frame the garden, creating an inward-facing yard that feels protected, contemplative, and intimate.



Flexible Interior Program Within a Minimal Footprint
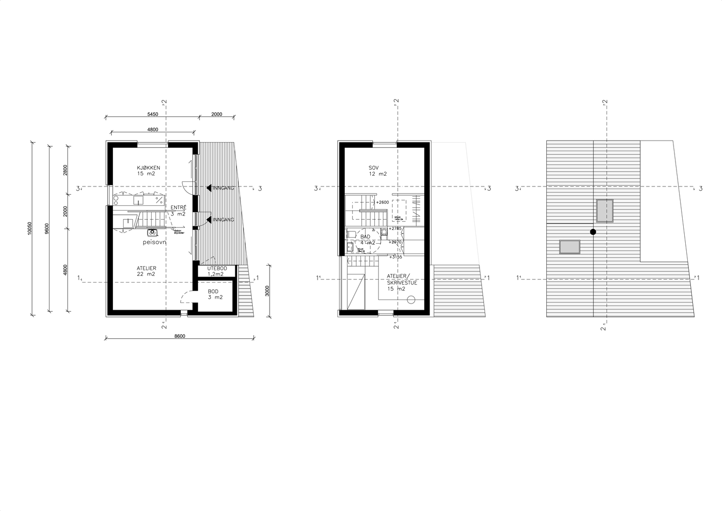
The architectural layout is a masterclass in compact studio house design. With a footprint of only 50 square meters on the ground floor and a total of 77 square meters including the attic, the design leverages verticality and multifunctionality. The steep gabled roof opens up towards the north, allowing soft daylight to flood into the ground floor studio—an ideal condition for painting.



Inside, the ground level hosts a creative atelier lit by northern light, a living space, and a compact yet fully functional kitchen discreetly tucked beneath the staircase. The second level features a writing studio, bathroom, and a guest bedroom with a daybed that doubles as a space for reflection or relaxation. Storage solutions are seamlessly integrated, maintaining clean lines and maximizing the use of volume.



Natural Light and Views Define the Atmosphere
One of the most impactful architectural moves is the roof’s elevation to the north, which not only enhances natural lighting in the painting studio but also enables expansive views from the upper writing room. From this vantage point, the landscape of Holmenkollen and the rolling hills beyond become part of the interior experience.



The skylit bathroom and stairwell infuse the central zone of the house with daylight, reducing the need for artificial lighting and creating a sense of warmth and airiness. Every window is thoughtfully placed to frame nature, reinforce privacy, and anchor the dwelling to its surroundings.



Material Expression and Artistic Warmth
The interior is clad in soft ash veneer, providing a quiet and neutral backdrop that allows both artworks and views to take precedence. The atmosphere is light and inviting, suited for both solitary creative practice and relaxed hosting. Lighting fixtures and furnishings are sourced from respected design brands, adding sophistication without overwhelming the space.


Throughout, MORFEUS arkitekter has prioritized clarity and calm, letting the materials speak for themselves and allowing spatial elements to remain intuitive and functional. It’s a design driven not by excess but by precision, intent, and emotional resonance.


A Studio House That Embodies Creative Living
The Red House goes beyond being a backyard studio—it’s a testament to how compact studio house design can serve diverse needs without compromise. It functions as an atelier, a guesthouse, a writing retreat, and an architectural dialogue with the past. It is intimate yet open, contemporary yet respectful, private yet deeply connected to the landscape.


This architectural approach proves that even within a tight urban residential context and limited square meterage, it is possible to create spaces that are inspiring, adaptable, and rooted in personal narrative.

All Photographs are works of Finn Ståle Felberg, Kari Fredrikke Brænne
Popular Articles
Popular articles from the community
Inverted Architecture Installation by Studio Link-Arc: Exploring the Intersection of Architecture and Living Organisms
Inverted Architecture Installation by Studio Link-Arc blends mycelium, sustainability, inverted design, ecological cycles, and urban adaptive architecture in Shenzhen.
The Ken Roberts Memorial Delineation Competition (Krob)
As the most senior architectural drawing competition currently in operation anywhere in the world, it draws hundreds of entries each year, awarding the very best submissions in a series of medium-based categories.
Flamboyant House by Juliana Camargo + Prumo Projetos
Modern Brazilian house integrating existing tree, pool, and volumes with glass, wood, and transitional spaces blending interior, exterior, and landscape seamlessly.
A Contemporary Take on Iranian Residential Architecture
A modern interior design in Mashhad that reinterprets brick, light, and spatial flow to create a warm, contemporary residential architecture.
Similar Reads
You might also enjoy these articles
Bamboo Housing Challenge 2026: Design Affordable, Sustainable Homes Using Bamboo
An international design competition by Bamboo U and IBUKU inviting architects and designers to reimagine affordable housing using bamboo — with the winning design built full-scale in Bali.
Computational Design & Education: Beegraphy Design Awards Introduces 7th Category (Featuring Jiyun's Innovative Approach)
Dive into Beegraphy’s 7th Design Awards category, where computational design meets education to create immersive, interactive learning tools, inspired by Jiyun’s work.
From Parametric Lighting to Urban Furniture: Join the 2nd Workshop in Beegraphy’s Computational Design Series
Dive into Cutting-Edge Design Techniques and Practical Applications with Industry Experts
Introducing Sphere by UNI: Pioneering a New Era in AEC Industry
Unlocking Global Potential with BIM and Agile Management
Explore Architecture Competitions
Discover active competitions in this discipline
The International Standard for Design Portfolios
The Global Benchmark for Architecture Dissertation Awards
The Global Benchmark for Graduation Excellence
Challenge to reimagine the Iron Throne
Comments (0)
Please login or sign up to add comments
No comments yet. Be the first to comment!