Tneib House By Abdel Qader Tarabieh Architecture – A Contemporary Jordanian Sanctuary
Tneib House in Amman is a serene, inward-facing sanctuary blending stone, wood, and courtyards for privacy, light, nature, and modern comfort.
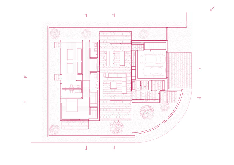
Nestled in Amman, Jordan, Tneib House by Abdel Qader Tarabieh Architecture (2025) is a 250 m² residential masterpiece that embodies the essence of modern introspection, privacy, and cultural continuity. Designed as a quiet, inward-facing sanctuary, the house deliberately shields its interiors from the street, creating a contemplative environment where life unfolds in stillness and serenity. The architectural approach draws inspiration from local Jordanian heritage, Islamic architecture, and historical courtyards, emphasizing inward-facing spaces that foster reflection, family life, and connection to nature.



From the exterior, Tneib House presents a composition of low, monolithic stone walls beneath a concrete canopy. These walls act not only as structural elements but also as thresholds, defining a rhythm of movement and experience. The house’s orientation and materiality maintain privacy and shelter while allowing light, air, and greenery to penetrate the interior courtyard. At the core of the home lies a generous living area, flanked by two solid volumes: one housing private bedrooms, the other accommodating service spaces. Large retractable sliding glass doors dissolve boundaries between indoor and outdoor, connecting the living spaces to a serene courtyard. Ancient salvaged olive trees stand as living anchors, weaving history, landscape, and memory into daily life.



Material choices further enhance the home's tranquil atmosphere. White local chiseled stone defines the exterior walls, laid in a measured horizontal rhythm that grounds the design. Interiors feature soft natural wood, muted tones, and minimalistic finishes, cultivating a sense of warmth, calm, and timeless elegance. The house balances protection and openness, offering shaded, sheltered areas while celebrating outdoor light, greenery, and the surrounding landscape. Its spatial composition creates a dialogue between modern living and historical architectural language, positioning Tneib House as both contemporary and rooted in tradition.



The design philosophy behind Tneib House reflects sustainable and context-sensitive architecture. By integrating local stone, natural wood, and passive strategies for shading and ventilation, the residence harmonizes with its environment, achieving both aesthetic and environmental quality. It is a home where life slows down, spaces encourage contemplation, and architecture celebrates materiality, nature, and heritage in unison.


All the photographs are works of Muhammad Almasri
Popular Articles
Popular articles from the community
Inverted Architecture Installation by Studio Link-Arc: Exploring the Intersection of Architecture and Living Organisms
Inverted Architecture Installation by Studio Link-Arc blends mycelium, sustainability, inverted design, ecological cycles, and urban adaptive architecture in Shenzhen.
Gads Hill Early Learning Center by JGMA: Adaptive Reuse Shaping Community-Focused Educational Architecture
Adaptive reuse transforms fragmented structure into vibrant early learning center with playful façade, natural light, and community-focused sustainable design.
Solar Steam: A Climate-Responsive Architecture That Redefines the Monument
A climate-responsive memorial architecture that transforms heat, decay, and time into a living system reflecting humanity’s ecological impact.
Atelier Macri Concept Store Interior Design by CASE-REAL
Atelier Macri store features a "ko" counter, walnut wood details, cork displays, blending retail, gallery, and seamless customer experiences.
Similar Reads
You might also enjoy these articles
The Ken Roberts Memorial Delineation Competition (Krob)
As the most senior architectural drawing competition currently in operation anywhere in the world, it draws hundreds of entries each year, awarding the very best submissions in a series of medium-based categories.
Waterfront Redevelopment and Urban Revitalization in Mumbai: Forging a New Dawn for Darukhana
A transformative waterfront redevelopment project reimagining Darukhana’s shipbreaking heritage into an inclusive urban future.
OUT-OF-MAP: A Call for Postcards on Feminist Narratives of Public Space
Rhizoma Design and Research Lab invites artists, designers, architects, researchers, and students to reflect on how feminist perspectives can reshape public space. Selected works will be exhibited in Barcelona, October 2026. Submissions open until 15 April 2026.
Documentation Work on Buddhist Wooden Temple
Architectural syncretism and cultural hybridity: A comparative study of the Buddhist temples in Chattogram Hill tracks
Explore Architecture Competitions
Discover active competitions in this discipline
The International Standard for Design Portfolios
The Global Benchmark for Architecture Dissertation Awards
The Global Benchmark for Graduation Excellence
Challenge to reimagine the Iron Throne
Comments (0)
Please login or sign up to add comments
No comments yet. Be the first to comment!