Transforming Urban Manufacturing Architecture: The Case of Seongsu Silo in Seoul
This article explores Seongsu Silo in Seoul, showcasing its innovative approach to urban manufacturing architecture that revitalizes local industry and culture.
Seongsu Silo, an innovative development in Seongdong-gu, Seoul, South Korea, represents a breakthrough in urban manufacturing architecture. Designed by Society of Architecture, this project blends industrial functionality with modern urban aesthetics to create a dynamic community hub.





Design Philosophy and Strategic Location
Bridging Past and Future
Located in an area with a rich industrial heritage, Seongsu Silo serves as a nexus between the old manufacturing landscapes and contemporary urban design. The project is strategically situated to connect with the local community and integrate seamlessly with the surrounding urban fabric.






Sustainable Design Approach
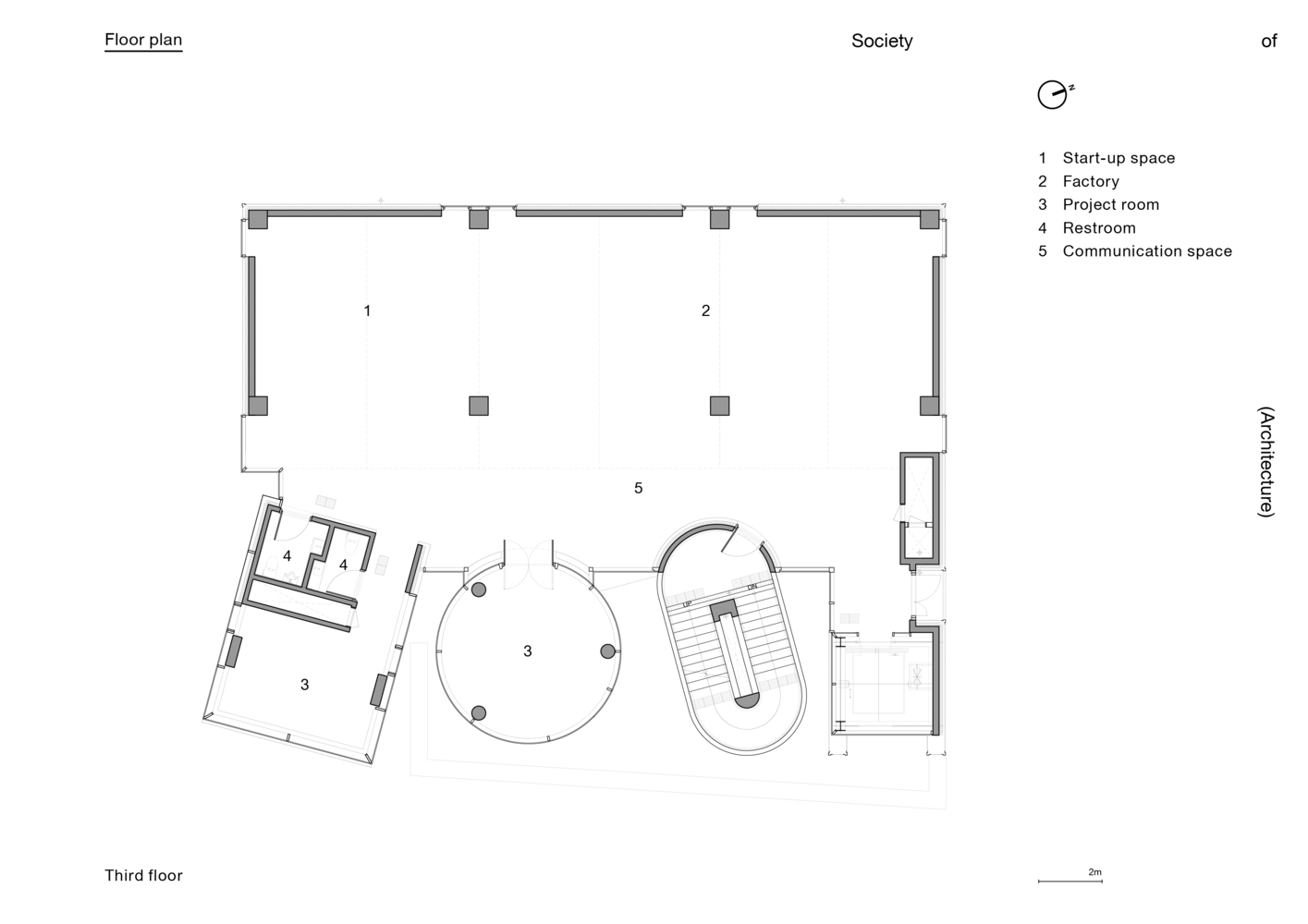
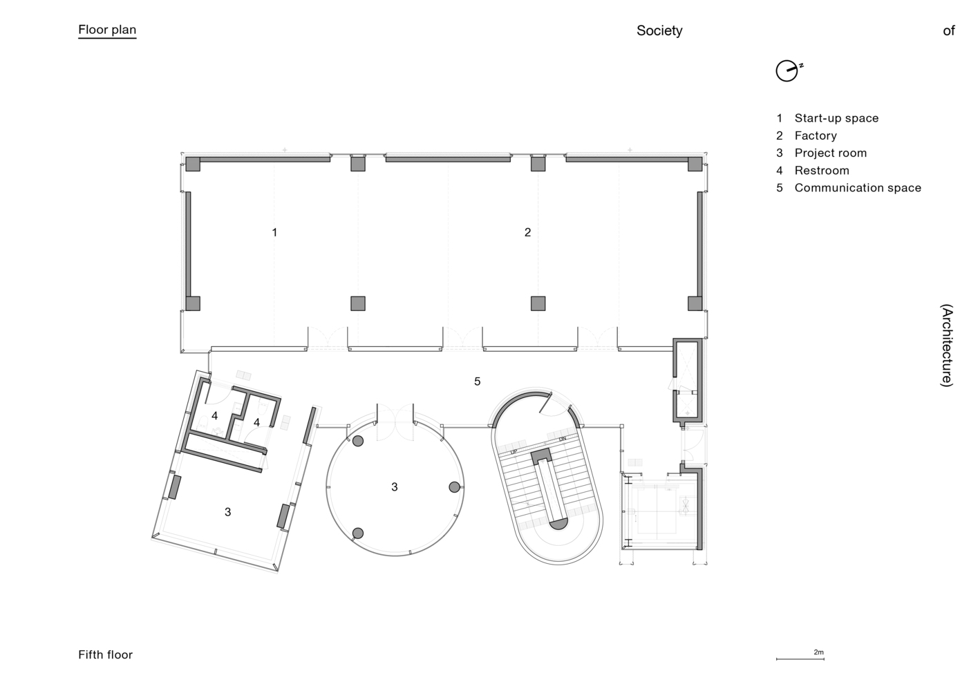
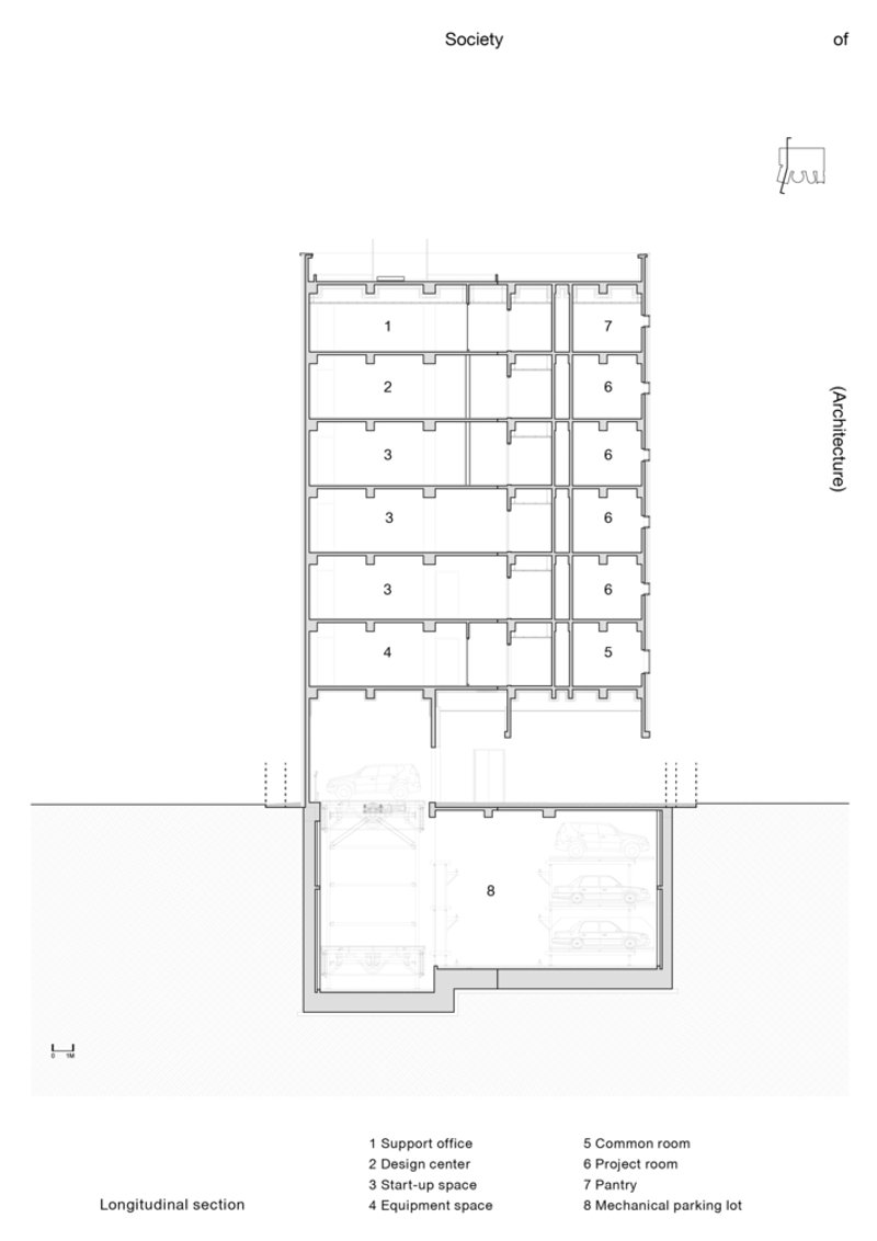
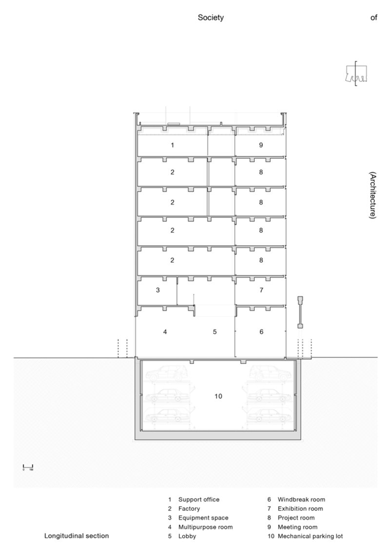
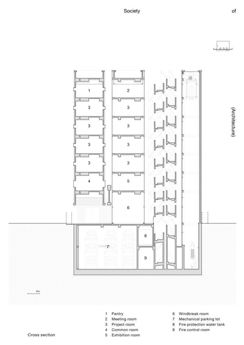
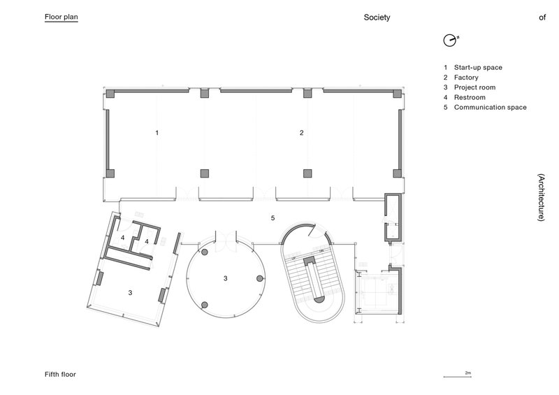
The architecture of Seongsu Silo emphasizes sustainability and innovation. It incorporates smart anchors—spaces equipped with high-tech facilities like 3D printers—which support small manufacturing businesses and foster collaboration and creativity.




Architectural Features and Community Impact
Dual Structure Integration
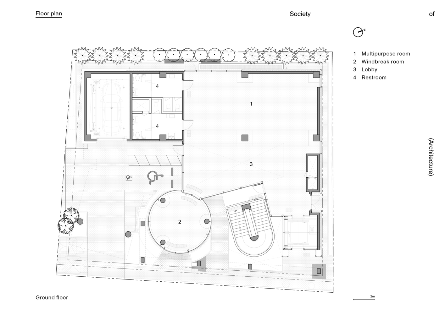
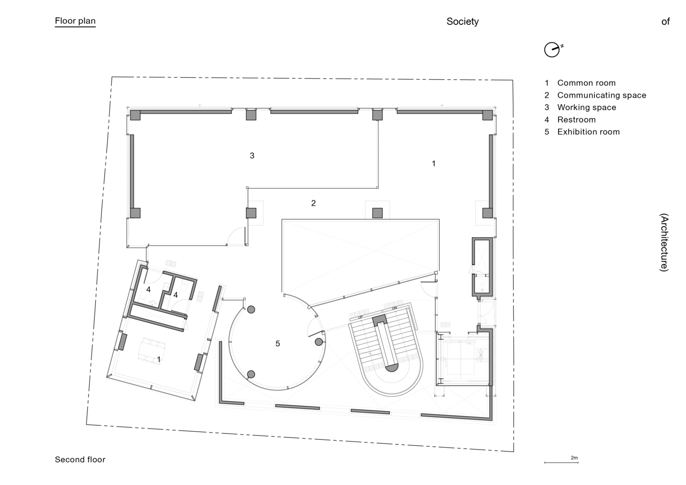
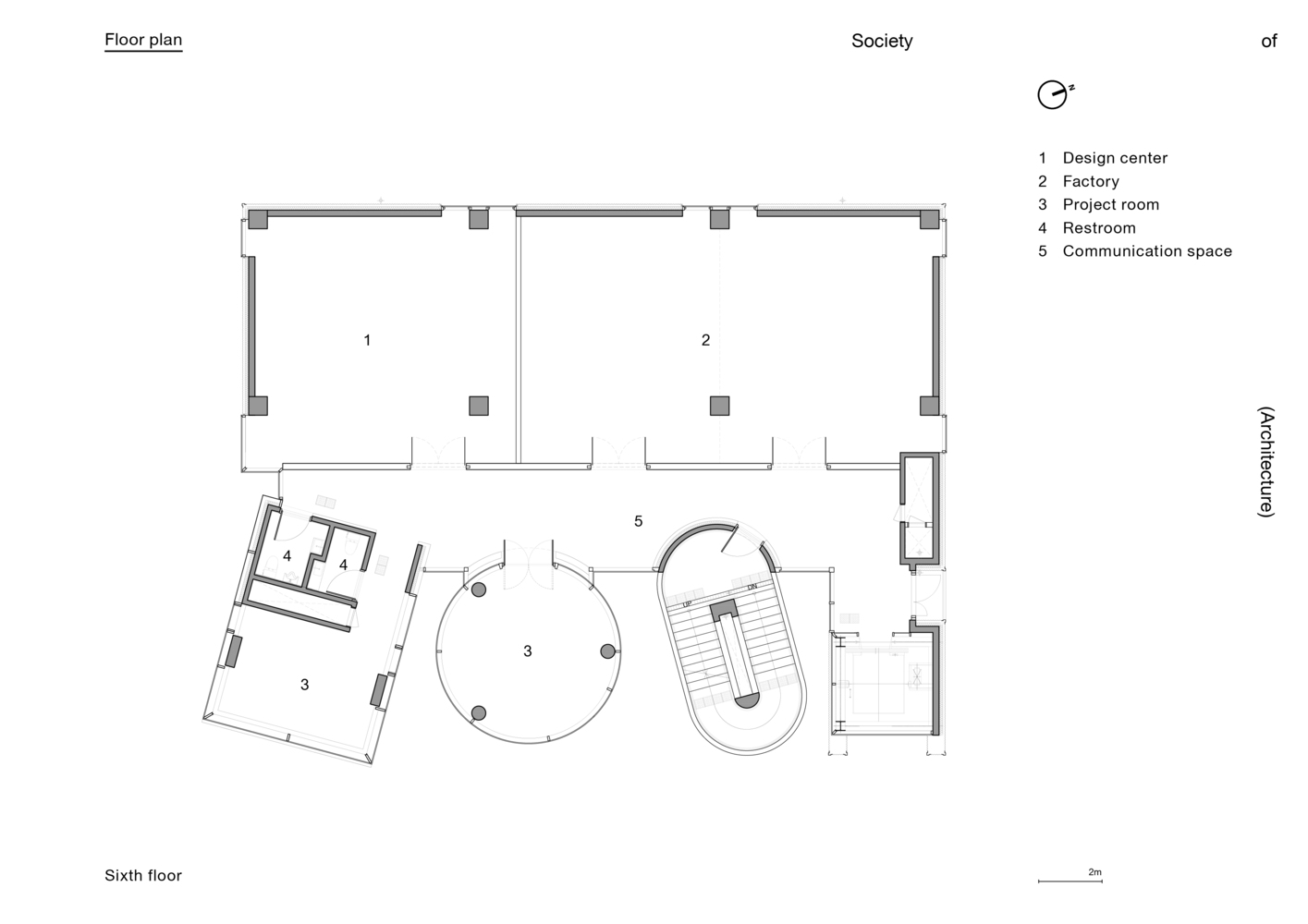
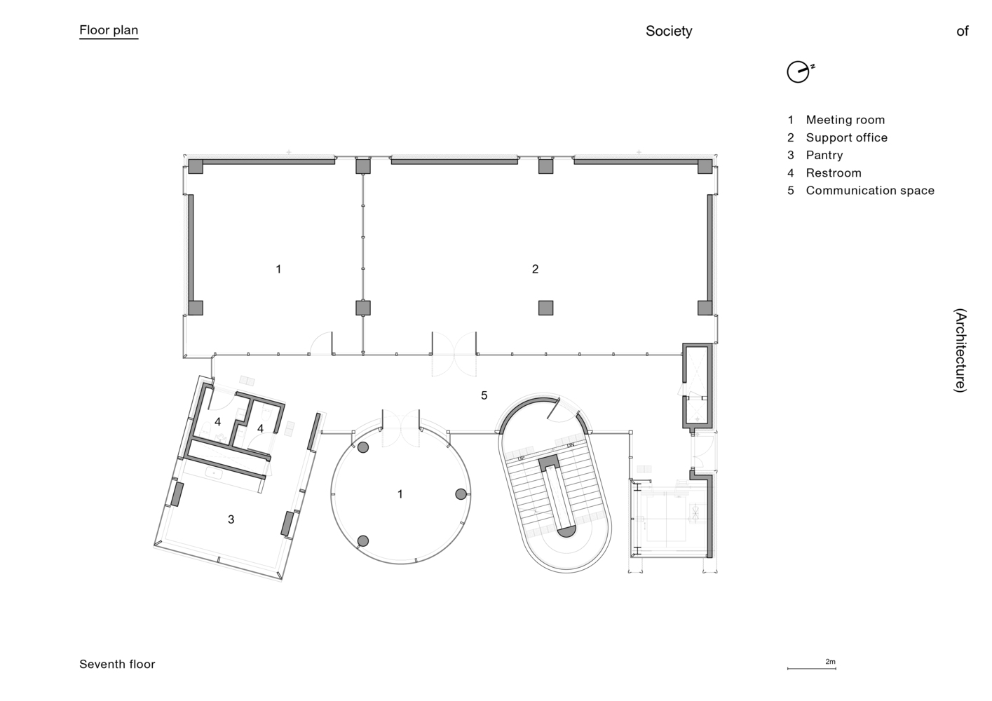
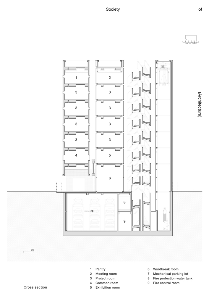
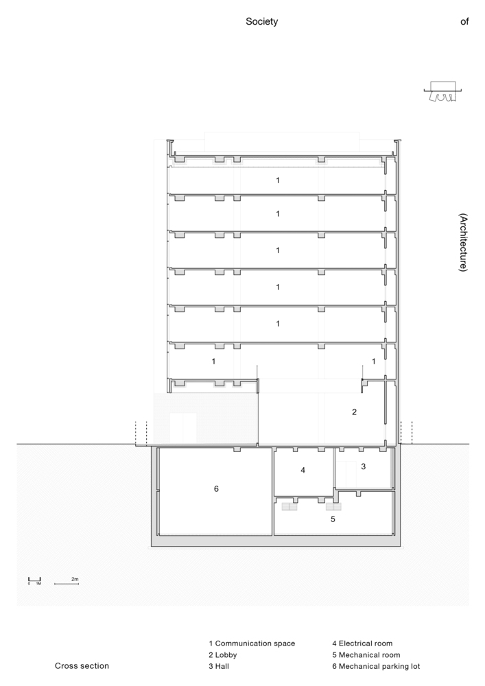
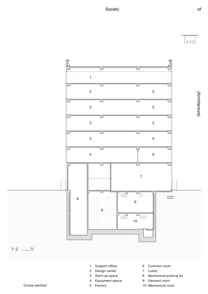
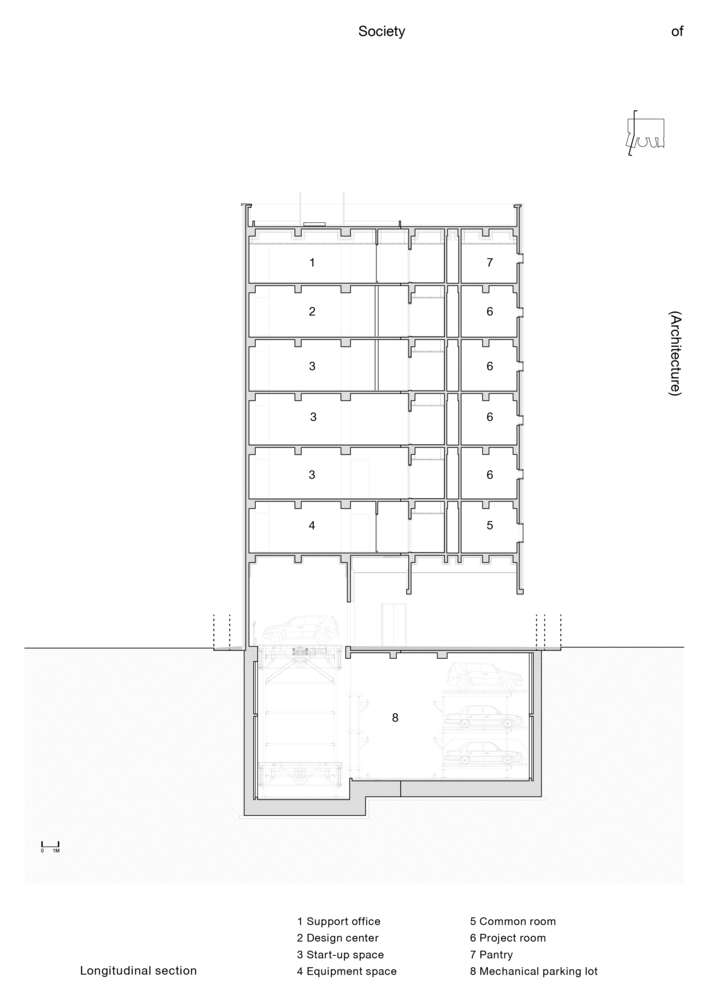
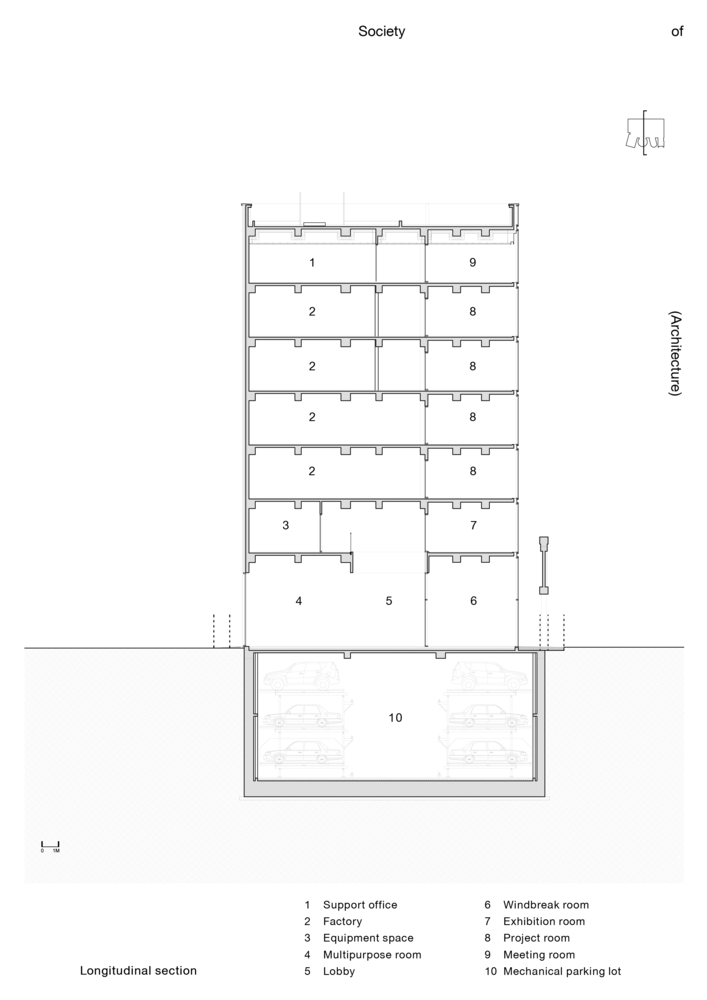
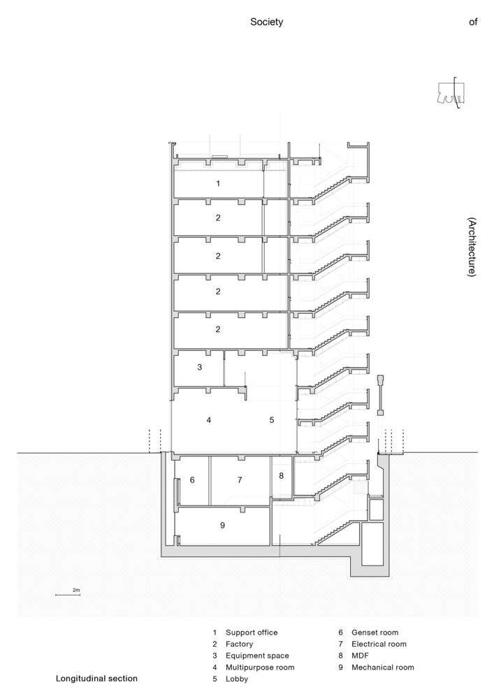
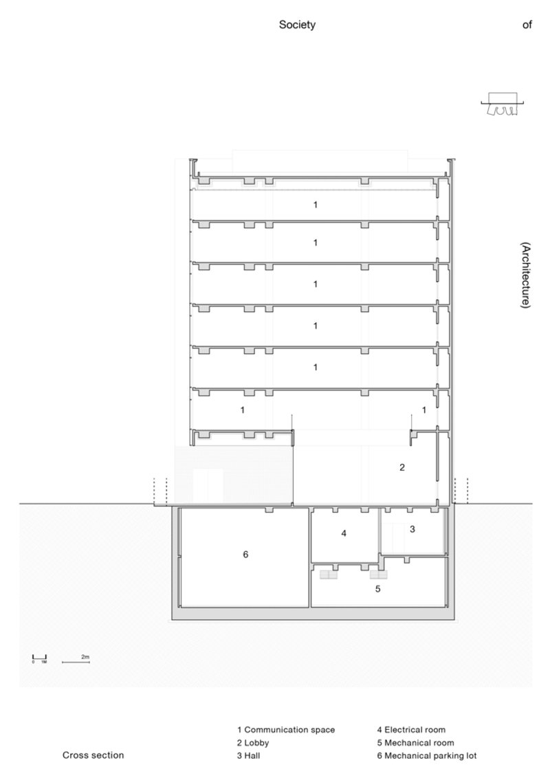
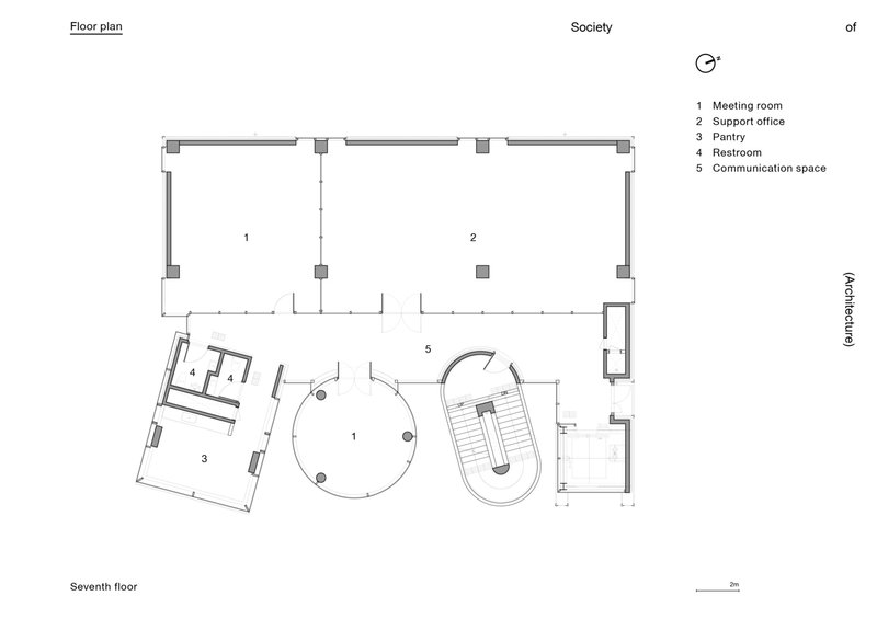
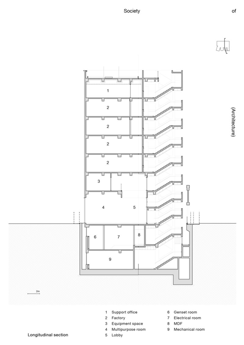
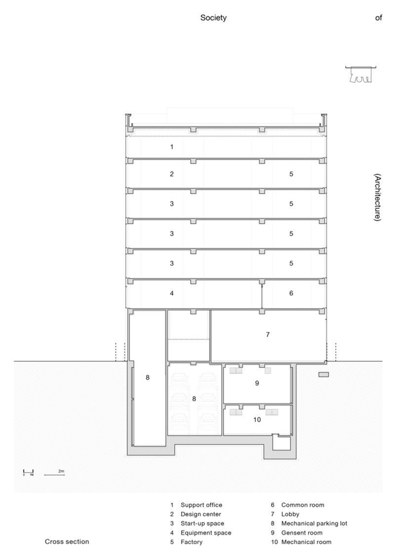
Seongsu Silo features a unique architectural design comprising two main structures: a ground-level that maintains the traditional factory aesthetics, and a new upper structure that introduces modern elements and smart manufacturing facilities. This blend of old and new encapsulates the essence of urban manufacturing architecture.



Public and Private Spaces
The design cleverly divides the space into public and private areas. Public spaces include exhibition areas and open stairways that invite community interaction, while private areas house manufacturing operations that maintain necessary seclusion for productivity.






Economic and Cultural Revitalization
Supporting Local Industries
By providing space for small manufacturers and craftspeople, particularly in the handmade shoe industry, Seongsu Silo plays a crucial role in sustaining local businesses. It offers these entrepreneurs a platform to showcase and market their products directly to consumers.






Community Engagement and Growth
The project not only revitalizes the local economy but also enhances the cultural landscape. It transforms traditional perceptions of manufacturing areas into vibrant, attractive destinations for both locals and tourists, fostering a new identity for Seongdong-gu.





A New Paradigm in Urban Architecture
Seongsu Silo by Society of Architecture stands as a model of how urban manufacturing architecture can play a pivotal role in the transformation of cityscapes. It successfully merges industrial heritage with innovative design to support economic development and community engagement, paving the way for future projects worldwide.





All photographs are work of Kyungsub Shin
Popular Articles
Popular articles from the community
TGK Nirasaki Plant: A Smart Factory Blending Technology, Landscape, and Wellness
Smart factory in Japan blending IoT manufacturing, scenic trail design, natural ventilation, and landscape integration to enhance user experience and sustainability.
Alton Cliff House: A Harmonious Retreat by f2a Architecture in Lake Country, Canada
Alton Cliff House blends corten steel, prefabrication, and sustainable design, creating a luxurious, energy-efficient retreat perched on Canadian cliffs.
Filtering Space: A Gradual Spatial Experience
From urban intensity to spatial calm.
20 Most Popular Commercial Architecture Projects of 2025
From sustainable market concepts to heritage factories, the commercial buildings and proposals that drew the most attention on uni.xyz this year.
Similar Reads
You might also enjoy these articles
Filtering Space: A Gradual Spatial Experience
From urban intensity to spatial calm.
The Ken Roberts Memorial Delineation Competition (Krob)
As the most senior architectural drawing competition currently in operation anywhere in the world, it draws hundreds of entries each year, awarding the very best submissions in a series of medium-based categories.
Waterfront Redevelopment and Urban Revitalization in Mumbai: Forging a New Dawn for Darukhana
A transformative waterfront redevelopment project reimagining Darukhana’s shipbreaking heritage into an inclusive urban future.
OUT-OF-MAP: A Call for Postcards on Feminist Narratives of Public Space
Rhizoma Design and Research Lab invites artists, designers, architects, researchers, and students to reflect on how feminist perspectives can reshape public space. Selected works will be exhibited in Barcelona, October 2026. Submissions open until 15 April 2026.
Explore Architecture Competitions
Discover active competitions in this discipline
The International Standard for Design Portfolios
The Global Benchmark for Architecture Dissertation Awards
The Global Benchmark for Graduation Excellence
Challenge to reimagine the Iron Throne
Comments (0)
Please login or sign up to add comments
No comments yet. Be the first to comment!