Urban Gallery Design in Manhattan: Unveiling the Leica Gallery by Format Architecture Office
This article explores the Leica Gallery by Format Architecture Office, a beacon of urban gallery design innovation in Manhattan's Meatpacking District.
The transformation of urban spaces into cultural hubs is an essential aspect of modern city life. Manhattan, with its rich history and dynamic changes, has seen numerous developments that blend art, culture, and architecture. A prime example of this blend is the Leica Gallery designed by Format Architecture Office, which exemplifies the latest trends in urban gallery design.


The Leica Gallery Project Overview
Location and Historical Context
Located in the historically rich Meatpacking District, the Leica Gallery stands out as a modern architectural feat within a neighborhood characterized by its industrial past and luxurious present. This district has undergone significant transformations from manufacturing and warehousing to becoming a high-end retail and hospitality hotspot.


Design Philosophy and Objectives
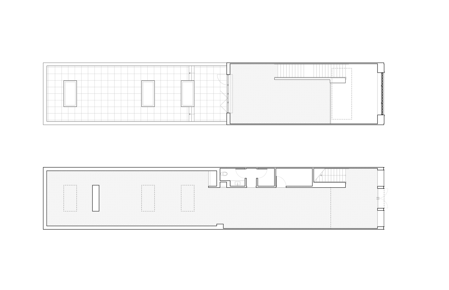
The Leica Gallery, one of the smaller structures in the district, maintains a modest two-story height with a narrow street frontage. Despite its size, the gallery is designed to make a significant impact, embodying a rare exception to the trend of upscaling in the area.


Key Architectural Features of Leica Gallery
Innovative Use of Materials and Design
Steel and Glass Storefront
The gallery’s new front facade includes a steel and glass storefront that not only nods to the area’s industrial heritage but also enhances retail visibility and access to natural light. This design choice is both a functional and aesthetic statement, reinforcing the gallery's connection to its urban surroundings.



Brick Screen Volume
Above the glass storefront, a distinctive brick screen framed by banded elements adds a modern twist to traditional masonry. This feature not only enriches the facade but also plays a crucial role in the light dynamics within the gallery, creating an interplay of light and shadows that animate both the interior and exterior spaces.



Interior Design and Functional Layout
Mezzanine and Skylights
The interior of the Leica Gallery is notably marked by a double-height mezzanine at the front, offering expansive vertical space that enhances the display of large-format prints. New skylights ensure that natural light dramatically illuminates artworks, optimizing the visual experience for visitors.



Second-Level Features
On the second level, a new steel and glass storefront opens onto a terrace, extending the gallery space outdoors. This external gallery not only provides additional exhibition space but also offers unique views of the district, blending indoor and outdoor elements seamlessly.



Impact on the Meatpacking District and Broader Architectural Trends
Cultural and Community Contributions
The Leica Gallery contributes to the cultural richness of Manhattan by providing a space that not only showcases art but also integrates seamlessly into the urban fabric. It serves as a model for how small-scale projects can have a large impact on community engagement and aesthetic enrichment.


Trends in Urban Gallery Design
This project reflects broader trends in urban gallery design, where the focus is on maximizing small spaces, integrating historical elements with modern design, and enhancing visitor interactions with both art and architecture.


Future of Urban Gallery Design in Manhattan
The Leica Gallery by Format Architecture Office is a testament to the innovative spirit of urban gallery design in Manhattan. It showcases how architecture can respect historical context while pushing the boundaries of design to create spaces that are both functional and inspirational.


All photographs are work of Nick Glimenakis
Popular Articles
Popular articles from the community
Treehouse Apartment: A Warm Timber Interior Blending Craft, Play, and Contemporary Living
Warm timber apartment with integrated treehouse, combining natural materials, craftsmanship, and playful design to create a flexible, family-oriented living environment.
Louis Malle Cinema: A Limestone Cultural Landmark Revitalizing Community Life in Prayssac
Limestone cinema extension with public forecourt, blending heritage and modern design to create flexible cultural spaces and strengthen community interaction.
The Ken Roberts Memorial Delineation Competition (Krob)
As the most senior architectural drawing competition currently in operation anywhere in the world, it draws hundreds of entries each year, awarding the very best submissions in a series of medium-based categories.
Flamboyant House by Juliana Camargo + Prumo Projetos
Modern Brazilian house integrating existing tree, pool, and volumes with glass, wood, and transitional spaces blending interior, exterior, and landscape seamlessly.
Similar Reads
You might also enjoy these articles
The Ken Roberts Memorial Delineation Competition (Krob)
As the most senior architectural drawing competition currently in operation anywhere in the world, it draws hundreds of entries each year, awarding the very best submissions in a series of medium-based categories.
Waterfront Redevelopment and Urban Revitalization in Mumbai: Forging a New Dawn for Darukhana
A transformative waterfront redevelopment project reimagining Darukhana’s shipbreaking heritage into an inclusive urban future.
OUT-OF-MAP: A Call for Postcards on Feminist Narratives of Public Space
Rhizoma Design and Research Lab invites artists, designers, architects, researchers, and students to reflect on how feminist perspectives can reshape public space. Selected works will be exhibited in Barcelona, October 2026. Submissions open until 15 April 2026.
Documentation Work on Buddhist Wooden Temple
Architectural syncretism and cultural hybridity: A comparative study of the Buddhist temples in Chattogram Hill tracks
Explore Architecture Competitions
Discover active competitions in this discipline
The International Standard for Design Portfolios
The Global Benchmark for Architecture Dissertation Awards
The Global Benchmark for Graduation Excellence
Challenge to reimagine the Iron Throne
Comments (0)
Please login or sign up to add comments
No comments yet. Be the first to comment!