Urban Infill Housing Design: Integrating Modernity with Tradition at Na Rade House by NOIZ architekti
Explore Na Rade House by NOIZ architekti, a model of urban infill housing design blending modern living with historical context.
Urban infill housing is a critical aspect of contemporary urban development, offering new opportunities for residential construction within established city sectors. Na Rade House in Bratislava, designed by NOIZ architekti, exemplifies innovative urban infill housing design by integrating a modern family home into the historic fabric of the Old Town.





Understanding Urban Infill Housing Design
What is Urban Infill Housing?
Urban infill housing refers to the practice of developing vacant or underused parcels within existing urban areas that are already largely developed. This approach is sustainable as it utilizes existing infrastructure and helps to revitalize neighborhoods without expanding city boundaries.





Benefits of Urban Infill Housing
Infill development can increase urban density, reduce urban sprawl, and contribute to a more vibrant community by adding more homes and businesses to existing neighborhoods. It also typically involves a smaller environmental footprint than developing on previously undeveloped land.





Architectural Strategy at Na Rade House
Site History and Development
Preservation of Urban Texture
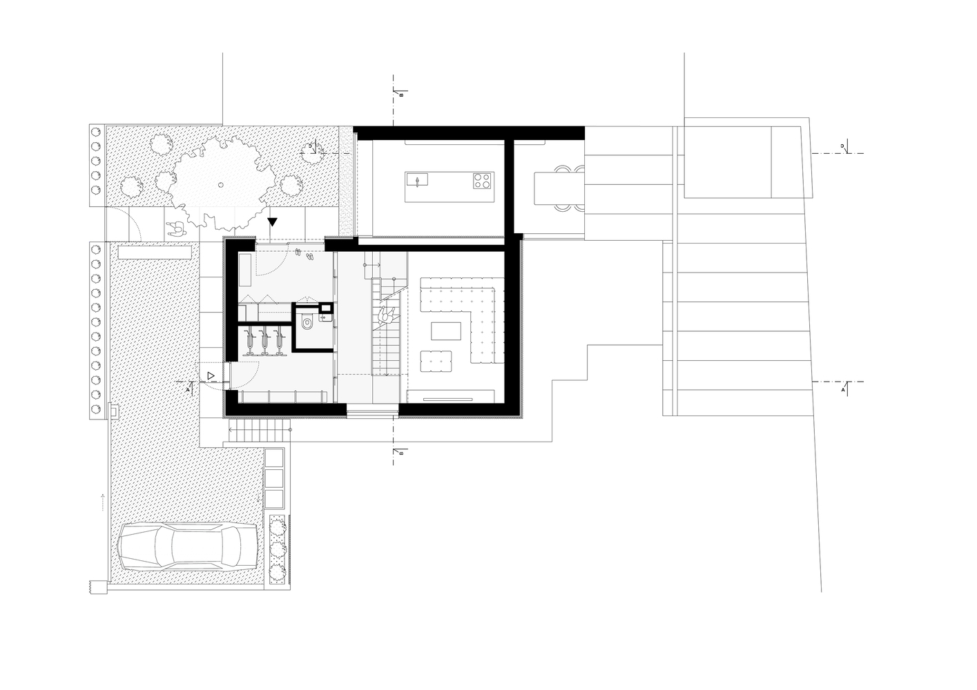
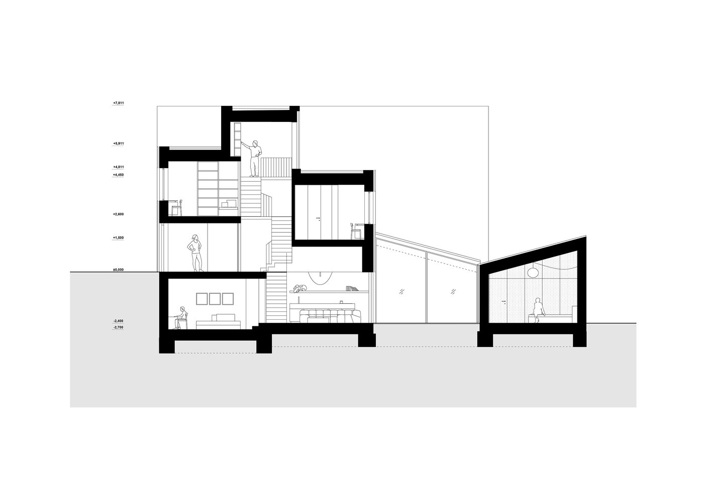
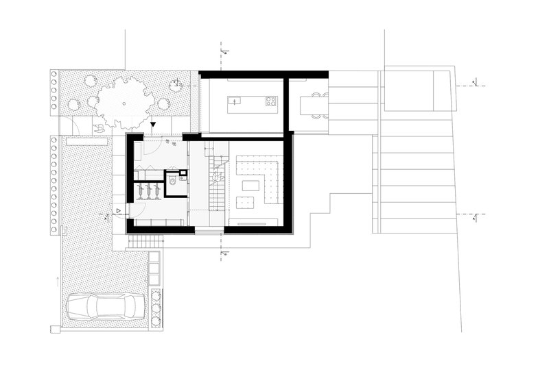
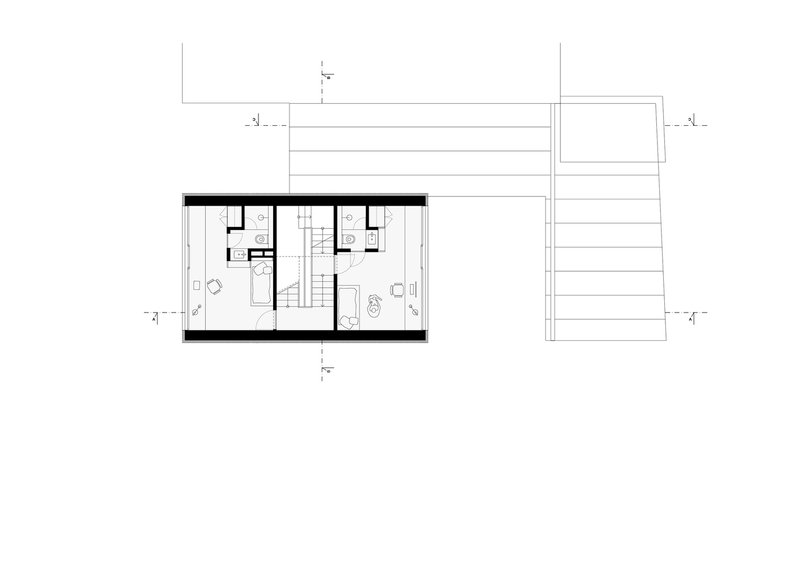
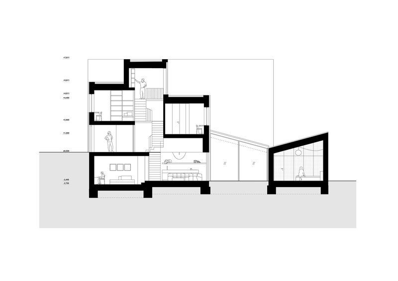
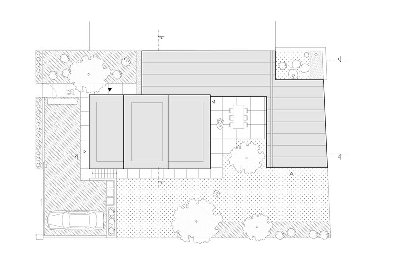
Na Rade House is built on the site of an old single-story family home and a garden house, both of which shared boundaries with neighboring buildings. The project initially considered preserving these structures but eventually opted for new construction to provide better residential quality while respecting the historical site layout.





Integration with the Historical Context
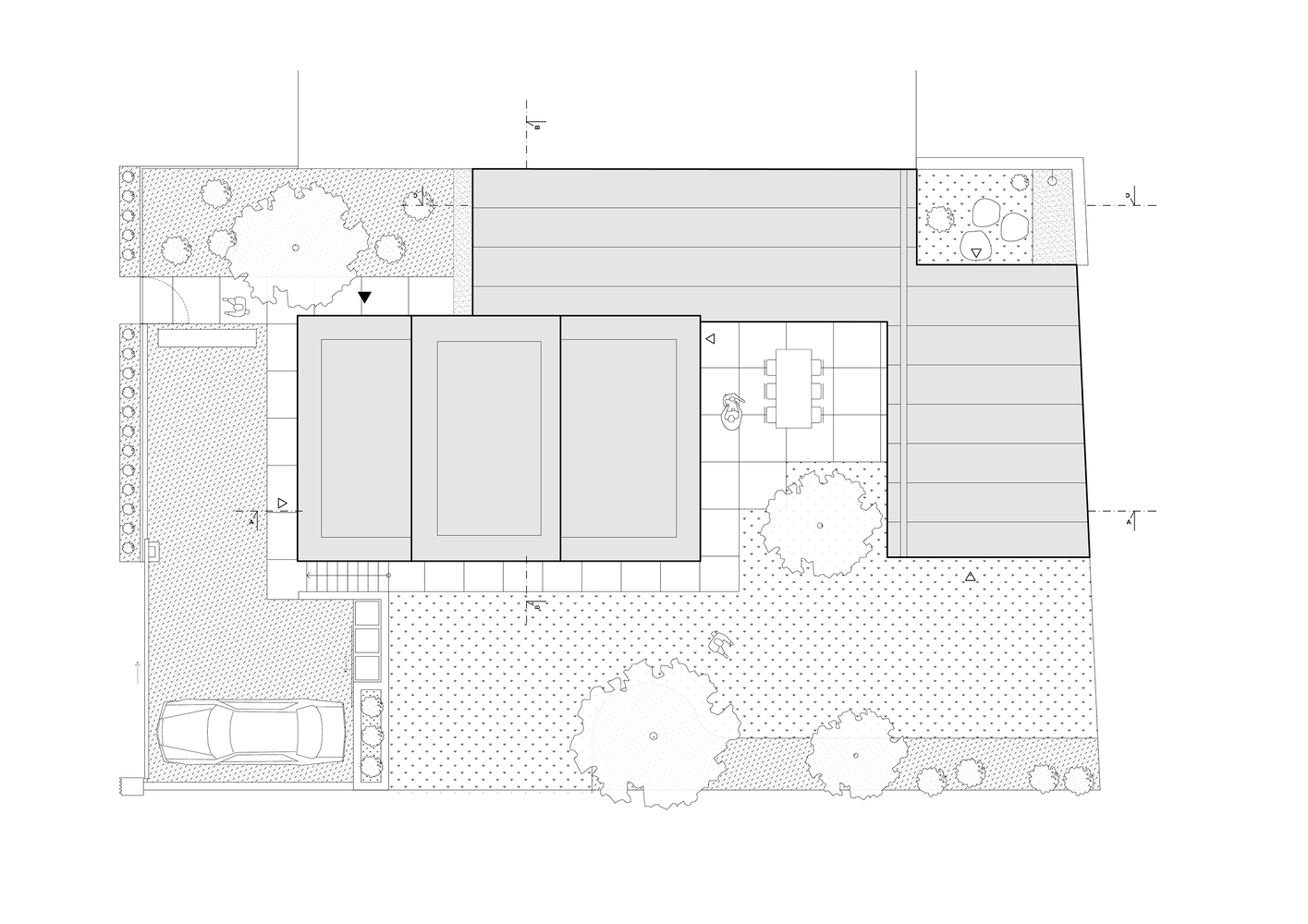
The design retained the original buildings' footprint, ensuring that the new structure harmonized with the established urban grain. This sensitive approach preserved the character and scale of the Old Town neighborhood, maintaining continuity in the urban landscape.





Design Features
Modern Architectural Elements
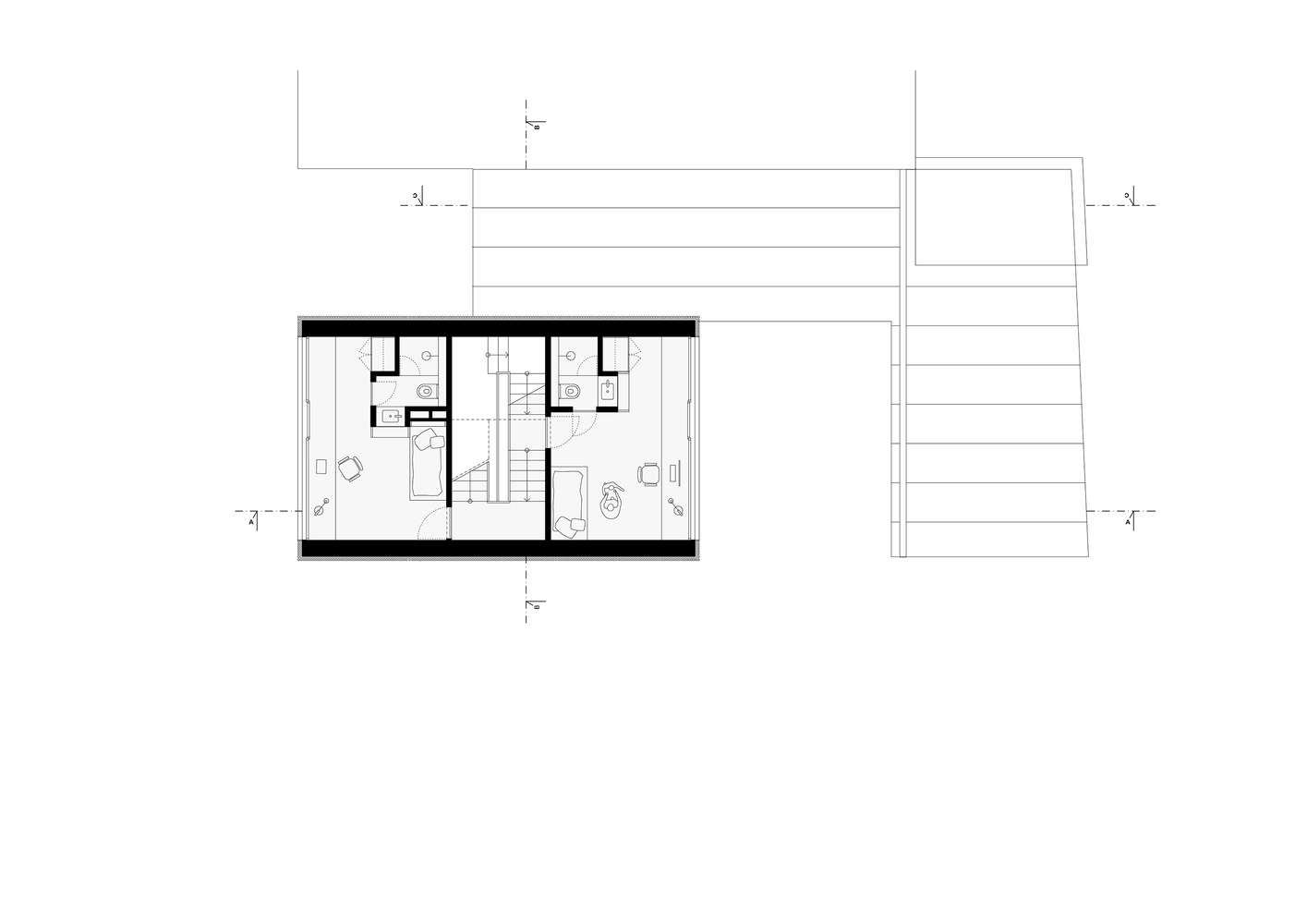
The new house incorporates modern architectural elements such as large windows and a minimalist façade, bringing a contemporary aesthetic that contrasts yet complements the historic surroundings. These features provide ample natural light and a sense of openness, essential in the dense urban setting.




Sustainable Design Practices
Sustainable practices were integral to the design, with the house utilizing energy-efficient materials and systems to reduce its environmental impact. The layout and orientation of the building also optimize natural ventilation and lighting, further enhancing its sustainability.



Material Use and Aesthetic Integration
Contemporary and Traditional Materials
The choice of materials reflects a blend of modern and traditional aesthetics, using elements like wood and brick that echo the neighborhood’s historical context while incorporating modern finishes and fixtures.



Interior Design
The interior spaces are designed to be functional and flexible, suitable for a young family's needs. The use of natural materials continues inside, providing warmth and continuity from the exterior through to the interior.




Community and Cultural Impact
Enhancing Neighborhood Identity
By integrating a modern structure into an historic area, Na Rade House contributes to the neighborhood's identity, offering a model for how new developments can enhance old communities.



Stimulating Local Engagement
The project encourages local engagement by providing attractive, contemporary living spaces that attract residents and invigorate the community, helping to stabilize and rejuvenate the urban area.



Na Rade House by NOIZ architekti is a prime example of urban infill housing design done right. It showcases how architects can innovate within restrictive historical contexts to produce modern, functional homes that respect and enhance their settings. This project not only provides a comfortable living environment for its occupants but also contributes positively to the urban fabric, demonstrating the potential of thoughtful infill development.



All photographs are work of Tomáš Manina
Popular Articles
Popular articles from the community
Inverted Architecture Installation by Studio Link-Arc: Exploring the Intersection of Architecture and Living Organisms
Inverted Architecture Installation by Studio Link-Arc blends mycelium, sustainability, inverted design, ecological cycles, and urban adaptive architecture in Shenzhen.
On the Brooks House by Monsoon Collective – A Contemporary Kerala Home Rooted in Tradition
Kerala home blending tradition and modernity with water-inspired design, brick architecture, courtyard planning, and sustainable rainwater harvesting strategies.
A Contemporary Take on Iranian Residential Architecture
A modern interior design in Mashhad that reinterprets brick, light, and spatial flow to create a warm, contemporary residential architecture.
Flamboyant House by Juliana Camargo + Prumo Projetos
Modern Brazilian house integrating existing tree, pool, and volumes with glass, wood, and transitional spaces blending interior, exterior, and landscape seamlessly.
Similar Reads
You might also enjoy these articles
The Ken Roberts Memorial Delineation Competition (Krob)
As the most senior architectural drawing competition currently in operation anywhere in the world, it draws hundreds of entries each year, awarding the very best submissions in a series of medium-based categories.
Waterfront Redevelopment and Urban Revitalization in Mumbai: Forging a New Dawn for Darukhana
A transformative waterfront redevelopment project reimagining Darukhana’s shipbreaking heritage into an inclusive urban future.
OUT-OF-MAP: A Call for Postcards on Feminist Narratives of Public Space
Rhizoma Design and Research Lab invites artists, designers, architects, researchers, and students to reflect on how feminist perspectives can reshape public space. Selected works will be exhibited in Barcelona, October 2026. Submissions open until 15 April 2026.
Documentation Work on Buddhist Wooden Temple
Architectural syncretism and cultural hybridity: A comparative study of the Buddhist temples in Chattogram Hill tracks
Explore Architecture Competitions
Discover active competitions in this discipline
The International Standard for Design Portfolios
The Global Benchmark for Architecture Dissertation Awards
The Global Benchmark for Graduation Excellence
Challenge to reimagine the Iron Throne
Comments (0)
Please login or sign up to add comments
No comments yet. Be the first to comment!