Urban Living Room: Reimagining the Town Hall for Civic Engagement
Reimagining the town hall as a dynamic, flexible space for civic engagement.
This innovative design concept, a shortlisted entry in the Urban Living Room competition, proposes a radical transformation of the traditional town hall, converting it into a flexible and dynamic space that fosters community engagement and encourages both political and social participation.
Carla Hu and Gillian Wu's "Urban Living Room" project challenges the rigid, often inaccessible nature of conventional government buildings. Their vision goes beyond a mere structure, reimagining the town hall as a dynamic platform for community engagement and a hub for social and political dialogue.

From Formal to Flexible
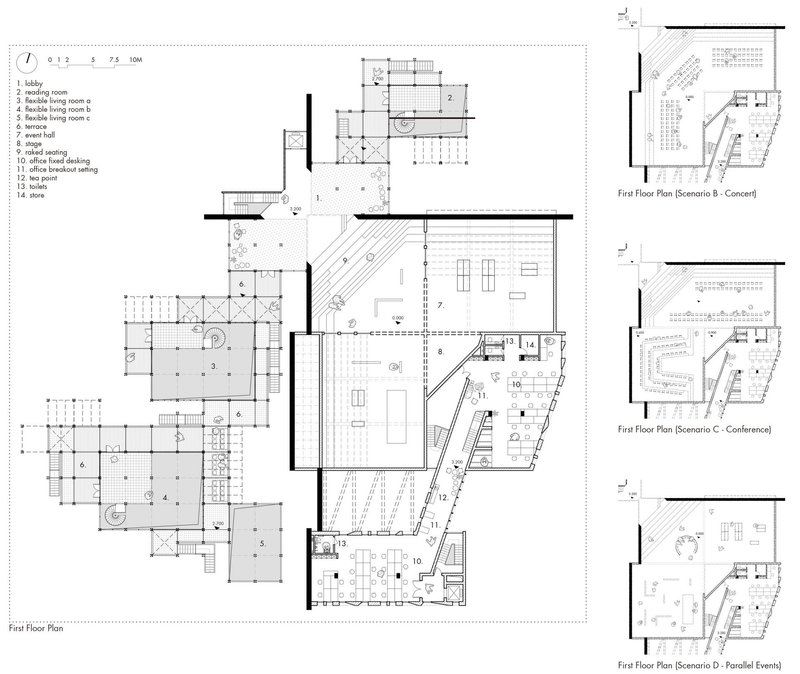
The core of the project lies in its radical departure from the typical, formal event-driven approach to town hall design. Instead of a single, grand hall, "Urban Living Room" envisions a network of interconnected spaces, each adaptable to a variety of uses and user needs. This flexibility allows for a broader range of activities, fostering a more dynamic and inclusive atmosphere. Gone are the days of rigid layouts and pre-determined uses. The "Urban Living Room" embraces a fluid and adaptable approach, allowing spaces to transform seamlessly according to the needs of the moment.

Four Quadrants, Two Themes
The project is conceptually divided into four quadrants, each with a distinct character:
Formal Spaces: These include two office blocks, a courtyard, and a central event hall. The event hall, designed to accommodate various configurations, features a unique u-shape layout. This departs from conventional theatre arrangements, drawing visitors towards a central stage and fostering greater interaction between performers and audience. The formal spaces provide a foundation for structured events and official gatherings, but they are designed to be flexible enough to accommodate a variety of needs.

Informal Spaces: Envisioned as "cabins" within a larger "living room," these smaller, flexible spaces encourage breakout sessions, impromptu gatherings, and ad-hoc events. The canopied corridors connecting these spaces provide opportunities for spontaneous interaction and collaboration, fostering a sense of community and shared purpose. The informal spaces are where the magic truly happens. They offer a sense of intimacy and flexibility, allowing users to create their own experiences and engage in meaningful dialogue.

The Power of Improvisation
The project champions improvisation as a key element of its design philosophy. The "cabins" are designed to be highly adaptable, allowing users to define their own activities and create spaces that suit their individual needs. This emphasis on flexibility fosters a sense of ownership and encourages a more democratic approach to using public spaces. The "Urban Living Room" understands that the most meaningful moments often arise spontaneously. By embracing improvisation, the project empowers users to shape their own experiences and create spaces that resonate with their needs.

A Model for the Future
"Urban Living Room" explores a new typological model for government buildings, one that embraces flexibility and encourages a participatory approach to civic engagement. The project goes beyond the physical structure, envisioning a dynamic space that invites dialogue, collaboration, and a deeper sense of community. It is a blueprint for a new kind of government architecture, one that is welcoming, inclusive, and adaptable to the evolving needs of the community.

Future Implications
"Urban Living Room" offers valuable insights for future government building designs. It underscores the need for:
Adaptable and flexible spaces to accommodate evolving needs and encourage a diverse range of activities. Buildings should not be static structures, but rather dynamic entities that can evolve and adapt to the changing needs of their users.
Integration of public spaces to foster a sense of community, encourage interaction, and facilitate social connection. Government buildings should not be isolated islands, but rather integral parts of the surrounding community, fostering a sense of belonging and shared purpose.
Interactive design features that promote dialogue, collaboration, and participation, fostering a more inclusive and equitable public experience. Buildings should be designed to invite interaction and engagement, creating spaces that are welcoming and accessible to all.
A more inclusive approach to architecture that embraces diversity, promotes accessibility, and encourages a broader range of user needs. Architects must consider the needs of all members of the community when designing public spaces, ensuring that they are inclusive, accessible, and welcoming to everyone.

Popular Articles
Popular articles from the community
On the Brooks House by Monsoon Collective – A Contemporary Kerala Home Rooted in Tradition
Kerala home blending tradition and modernity with water-inspired design, brick architecture, courtyard planning, and sustainable rainwater harvesting strategies.
Atelier Macri Concept Store Interior Design by CASE-REAL
Atelier Macri store features a "ko" counter, walnut wood details, cork displays, blending retail, gallery, and seamless customer experiences.
A Contemporary Take on Iranian Residential Architecture
A modern interior design in Mashhad that reinterprets brick, light, and spatial flow to create a warm, contemporary residential architecture.
Louis Malle Cinema: A Limestone Cultural Landmark Revitalizing Community Life in Prayssac
Limestone cinema extension with public forecourt, blending heritage and modern design to create flexible cultural spaces and strengthen community interaction.
Similar Reads
You might also enjoy these articles
The Ken Roberts Memorial Delineation Competition (Krob)
As the most senior architectural drawing competition currently in operation anywhere in the world, it draws hundreds of entries each year, awarding the very best submissions in a series of medium-based categories.
A Contemporary Take on Iranian Residential Architecture
A modern interior design in Mashhad that reinterprets brick, light, and spatial flow to create a warm, contemporary residential architecture.
Franche-Comté Advanced School of Engineering by Dominique Coulon & associés, Besançon
A flexible engineering school immersed in woodland, combining concrete minimalism, adaptable spaces, and natural light to support evolving educational environments.
Documentation Work on Buddhist Wooden Temple
Architectural syncretism and cultural hybridity: A comparative study of the Buddhist temples in Chattogram Hill tracks
Explore Office Building Competitions
Discover active competitions in this discipline
The International Standard for Design Portfolios
The Global Benchmark for Architecture Dissertation Awards
The Global Benchmark for Graduation Excellence
Challenge to reimagine the Iron Throne
Comments (0)
Please login or sign up to add comments
No comments yet. Be the first to comment!