Wacker House: A Sustainable Office Building in Munich
Wacker House is a sustainable office building in Munich, blending innovative design, urban connectivity, and environmental responsibility for modern workplaces.
Introduction: A Modern Landmark in Werksviertel-Mitte
In the heart of Werksviertel-Mitte, Munich, the Wacker House stands as a benchmark for sustainable office architecture. Designed by C.F. Møller, this innovative commercial building integrates workspaces, retail, and cultural experiences within a dynamic and flexible structure. The architectural approach blends transparency, permeability, and environmental responsibility, redefining urban workplaces for the future.




Architectural Concept: A Unified and Permeable Design
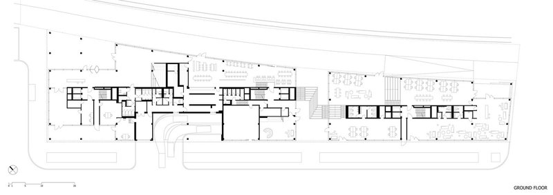
Wacker House is conceived as a large-scale, transparent grid structure that fosters a seamless connection between the indoors and outdoors. Inspired by the historic rail tracks of the Werksviertel district, the building features a signature curvilinear design that embraces the surrounding urban landscape. The open arcade at the ground level enhances accessibility, allowing pedestrians to engage with the building’s retail spaces, co-working zones, and cultural hubs.




Urban Integration: A Dynamic City Hub
This office building is more than just a workplace—it is an energetic city space designed to strengthen the relationship between work, leisure, and community. The double-height ground level hosts retail outlets, entertainment venues, and collaborative spaces, encouraging an active urban lifestyle. The strategic placement of entrances ensures connectivity from all sides, transforming Wacker House into a lively urban destination.




Interior Design: Flexible and Open Workspaces
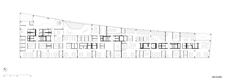
The upper levels of Wacker House are structured around a zig-zag configuration, allowing for flexible office layouts that adapt to evolving workstyles. Large, open-plan office landscapes form interconnected loops around external green courtyards, enhancing the spatial experience. Three internal cores improve vertical circulation, ensuring efficient movement between office floors and communal areas.




Sustainability: A Green and Climate-Responsive Building
Sustainability is at the core of Wacker House’s design. The incorporation of elevated courtyards optimizes natural daylight penetration, improving indoor environmental quality while reducing energy consumption. These green spaces play a crucial role in mitigating the urban heat island effect, contributing to a healthier microclimate.



The structure employs prefabricated elements, minimizing construction time and costs while maximizing efficiency. The façade integrates passive shading techniques through its relief-like structure, reducing solar heat gain. Sustainable materials, including recycled concrete and aluminum, further reinforce the building’s environmental commitment.


A Future-Ready Office Building in Munich
Wacker House sets a new standard for sustainable office buildings in Munich. Its thoughtful integration of workspaces, urban interaction, and environmental responsibility makes it a model for future commercial developments. As cities evolve, projects like Wacker House exemplify how modern architecture can seamlessly balance functionality, sustainability, and vibrant community engagement.








All Photographs are works of Mark Hadden
Popular Articles
Popular articles from the community
Louis Malle Cinema: A Limestone Cultural Landmark Revitalizing Community Life in Prayssac
Limestone cinema extension with public forecourt, blending heritage and modern design to create flexible cultural spaces and strengthen community interaction.
A Contemporary Take on Iranian Residential Architecture
A modern interior design in Mashhad that reinterprets brick, light, and spatial flow to create a warm, contemporary residential architecture.
The Ken Roberts Memorial Delineation Competition (Krob)
As the most senior architectural drawing competition currently in operation anywhere in the world, it draws hundreds of entries each year, awarding the very best submissions in a series of medium-based categories.
Solar Steam: A Climate-Responsive Architecture That Redefines the Monument
A climate-responsive memorial architecture that transforms heat, decay, and time into a living system reflecting humanity’s ecological impact.
Similar Reads
You might also enjoy these articles
The Ken Roberts Memorial Delineation Competition (Krob)
As the most senior architectural drawing competition currently in operation anywhere in the world, it draws hundreds of entries each year, awarding the very best submissions in a series of medium-based categories.
Waterfront Redevelopment and Urban Revitalization in Mumbai: Forging a New Dawn for Darukhana
A transformative waterfront redevelopment project reimagining Darukhana’s shipbreaking heritage into an inclusive urban future.
OUT-OF-MAP: A Call for Postcards on Feminist Narratives of Public Space
Rhizoma Design and Research Lab invites artists, designers, architects, researchers, and students to reflect on how feminist perspectives can reshape public space. Selected works will be exhibited in Barcelona, October 2026. Submissions open until 15 April 2026.
Documentation Work on Buddhist Wooden Temple
Architectural syncretism and cultural hybridity: A comparative study of the Buddhist temples in Chattogram Hill tracks
Explore Architecture Competitions
Discover active competitions in this discipline
The International Standard for Design Portfolios
The Global Benchmark for Architecture Dissertation Awards
The Global Benchmark for Graduation Excellence
Challenge to reimagine the Iron Throne
Comments (0)
Please login or sign up to add comments
No comments yet. Be the first to comment!