Wulingshan Eye Stone Spring by Vector Architects: A Harmonious Retreat in Nature
A serene hot spring retreat in Wuling Mountain by Vector Architects, harmonizing architecture with nature through elevated design and natural materials.
A Natural Sanctuary in Wuling Mountain
Nestled in the scenic Wuling Mountain range, the Wulingshan Eye Stone Spring, designed by Vector Architects, is an architectural masterpiece that blends seamlessly with its natural surroundings. Situated within a river valley in Chengde, China, the site boasts a dramatic landscape framed by steep rock cliffs to the west, vast alluvial plains to the east, and a dense forest of poplar trees. The design captures the tranquil essence of its environment while providing a sophisticated hot spring experience.




Elevated Structure to Preserve the Landscape
The building is designed to minimize its footprint on the natural slope, ensuring that the site's ecological beauty remains untouched. Vector Architects achieved this by raising the main structure on ten slender columns, allowing the ground below to remain undisturbed. This design choice also gives the building a light, elevated presence that touches the earth with sensitivity and grace.





A Vertical Spatial Experience
The hot spring's design is vertically organized, with functional spaces layered across three main levels. This vertical stacking not only reduces the building's footprint but also creates unique and immersive spatial experiences. A series of bridges and corridors connect the functional areas, offering dynamic views of the surrounding forest, the rock cliff, and the distant Yanshan Mountain range.


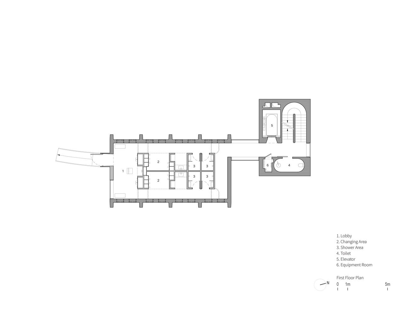
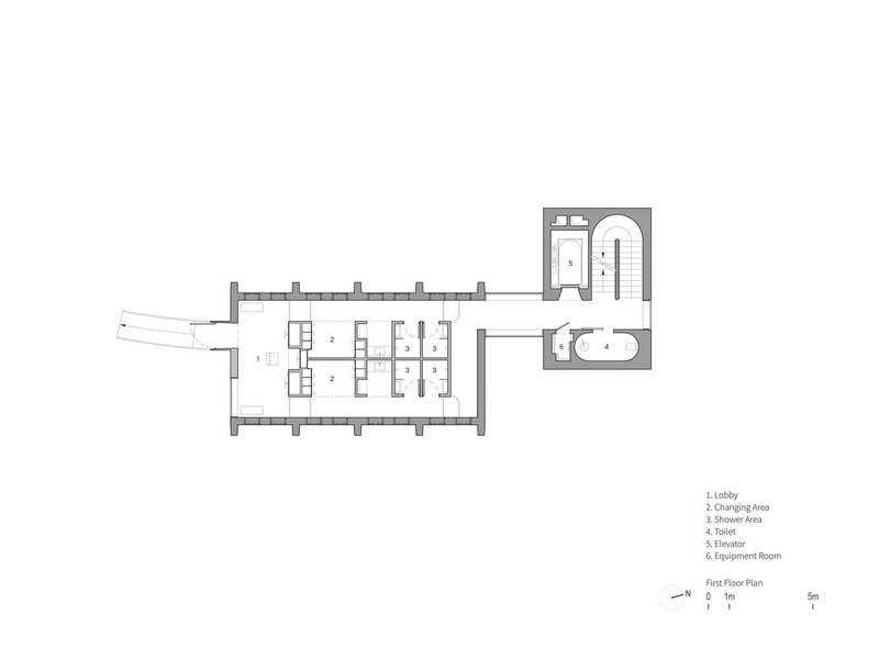
Three Levels of Function and Serenity
The building’s program is carefully distributed across three levels, each offering a distinct atmosphere:
First Floor: Entrance and Preparation
The first floor houses a teak-clad central core that integrates the reception area, locker rooms, storage, and shower facilities. This space serves as a transition for visitors before they enter the thermal baths. The use of natural materials such as teak and concrete adds warmth to the space, creating a welcoming and serene ambiance.



Second Floor: A Transparent Lounge Among Trees
The second floor features a glass-enclosed relaxation lounge positioned amidst the lush canopy of poplar trees. Floor-to-ceiling windows on all sides invite abundant natural light and offer panoramic views of the surrounding landscape. On favorable days, the upper windows can be opened to allow fresh air to circulate, heightening the connection to nature. The lounge becomes a meditative space, where visitors can unwind while immersed in the beauty of the forest.





Third Floor: Immersive Bathing Experience
The third floor is dedicated to the bath pools, offering thermal waters at varying temperatures and treatments. These pools are carefully arranged under eight 8-meter-high light wells that diffuse natural light, creating a soft and tranquil atmosphere. Bush-hammered concrete surfaces reflect and enhance the light, adding texture and depth to the space. Strip windows along the west facade frame intimate views of the rock cliff and surrounding forest, inviting visitors to immerse themselves in both the water and the landscape.




Seamless Integration of Architecture and Landscape
The Wulingshan Eye Stone Spring demonstrates Vector Architects' dedication to harmonizing built form with nature. By raising the building, they preserve the site's natural slope, stream, and vegetation. The vertical design enhances the spatial relationship with the forest, rock cliff, and distant mountains, creating ever-changing visual experiences as visitors move through the space.



The use of raw materials such as bush-hammered concrete, teak wood, and steel complements the natural surroundings, while expansive glass panels blur the boundary between interior and exterior spaces. This thoughtful materiality ensures that the architecture feels like an organic extension of the landscape.




A Tranquil Hot Spring Experience
The Wulingshan Eye Stone Spring is not just a building; it is an immersive retreat that connects people to the serenity of nature. From the preparation spaces on the ground floor to the tranquil lounge and luminous bath pools above, the design fosters a holistic sense of relaxation and contemplation. Each level provides a unique perspective on the surrounding environment, allowing visitors to experience the forest, sky, and mountains in new and unexpected ways.


Vector Architects' Wulingshan Eye Stone Spring exemplifies how architecture can coexist harmoniously with its natural setting. Through elevated design, thoughtful materiality, and vertical spatial organization, the hot spring becomes a sanctuary of relaxation and reflection. The project is a masterclass in sustainable and sensitive architecture, offering visitors an unparalleled experience of tranquility and connection with nature.











All Photographs are work of Guowei Liu, Fangfang Tian
Popular Articles
Popular articles from the community
Alton Cliff House: A Harmonious Retreat by f2a Architecture in Lake Country, Canada
Alton Cliff House blends corten steel, prefabrication, and sustainable design, creating a luxurious, energy-efficient retreat perched on Canadian cliffs.
Inverted Architecture Installation by Studio Link-Arc: Exploring the Intersection of Architecture and Living Organisms
Inverted Architecture Installation by Studio Link-Arc blends mycelium, sustainability, inverted design, ecological cycles, and urban adaptive architecture in Shenzhen.
Solar Steam: A Climate-Responsive Architecture That Redefines the Monument
A climate-responsive memorial architecture that transforms heat, decay, and time into a living system reflecting humanity’s ecological impact.
Split House: A Compact Urban Home Blending Privacy, Light, and Flexible Living in Japan
Compact Japanese home featuring DOMA space, flexible café potential, passive lighting, privacy zoning, and sustainable urban living design.
Similar Reads
You might also enjoy these articles
The Ken Roberts Memorial Delineation Competition (Krob)
As the most senior architectural drawing competition currently in operation anywhere in the world, it draws hundreds of entries each year, awarding the very best submissions in a series of medium-based categories.
Waterfront Redevelopment and Urban Revitalization in Mumbai: Forging a New Dawn for Darukhana
A transformative waterfront redevelopment project reimagining Darukhana’s shipbreaking heritage into an inclusive urban future.
OUT-OF-MAP: A Call for Postcards on Feminist Narratives of Public Space
Rhizoma Design and Research Lab invites artists, designers, architects, researchers, and students to reflect on how feminist perspectives can reshape public space. Selected works will be exhibited in Barcelona, October 2026. Submissions open until 15 April 2026.
Documentation Work on Buddhist Wooden Temple
Architectural syncretism and cultural hybridity: A comparative study of the Buddhist temples in Chattogram Hill tracks
Explore Architecture Competitions
Discover active competitions in this discipline
The International Standard for Design Portfolios
The Global Benchmark for Architecture Dissertation Awards
The Global Benchmark for Graduation Excellence
Challenge to reimagine the Iron Throne
Comments (0)
Please login or sign up to add comments
No comments yet. Be the first to comment!