Zero-Carbon Architecture: CATL Teahouse Xiadang by HATCH Architects
The CATL Zero-Carbon Teahouse showcases the future of zero-carbon architecture, integrating renewable energy, intelligent design, and sustainability in a seamless mountain retreat.
The CATL Zero-Carbon Teahouse in Xiadang, designed by HATCH Architects, stands as a revolutionary model of zero-carbon architecture. Nestled in the mountainous landscapes of Ningde, China, the teahouse embodies sustainability, intelligent energy solutions, and a seamless blend of technology with nature. Inspired by the Möbius strip, a symbol of perpetual motion and continuity, the design integrates cutting-edge photovoltaic technology, energy-efficient materials, and a harmonious spatial experience.



A Vision for Sustainable Architecture
The teahouse is a tangible response to the global climate crisis and China's ambitious "dual-carbon" goals. CATL, a leader in new energy battery technology, has extended its expertise beyond energy storage into the realm of green and intelligent architecture. The design prioritizes sustainability, not merely through passive energy-saving techniques but through an active approach that embeds renewable energy within its core infrastructure.



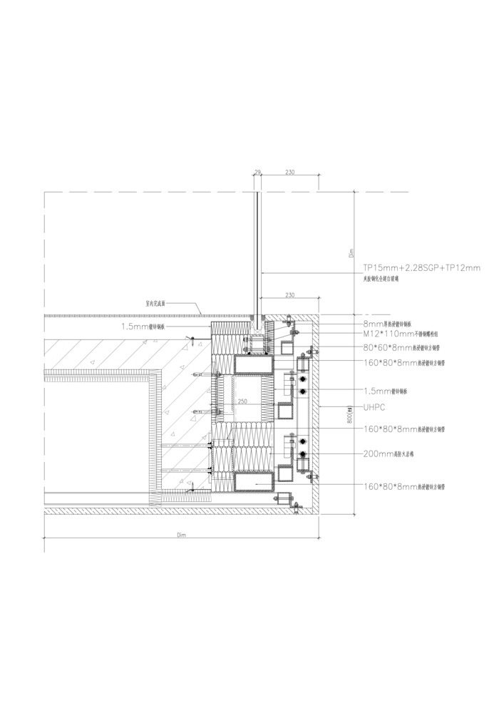
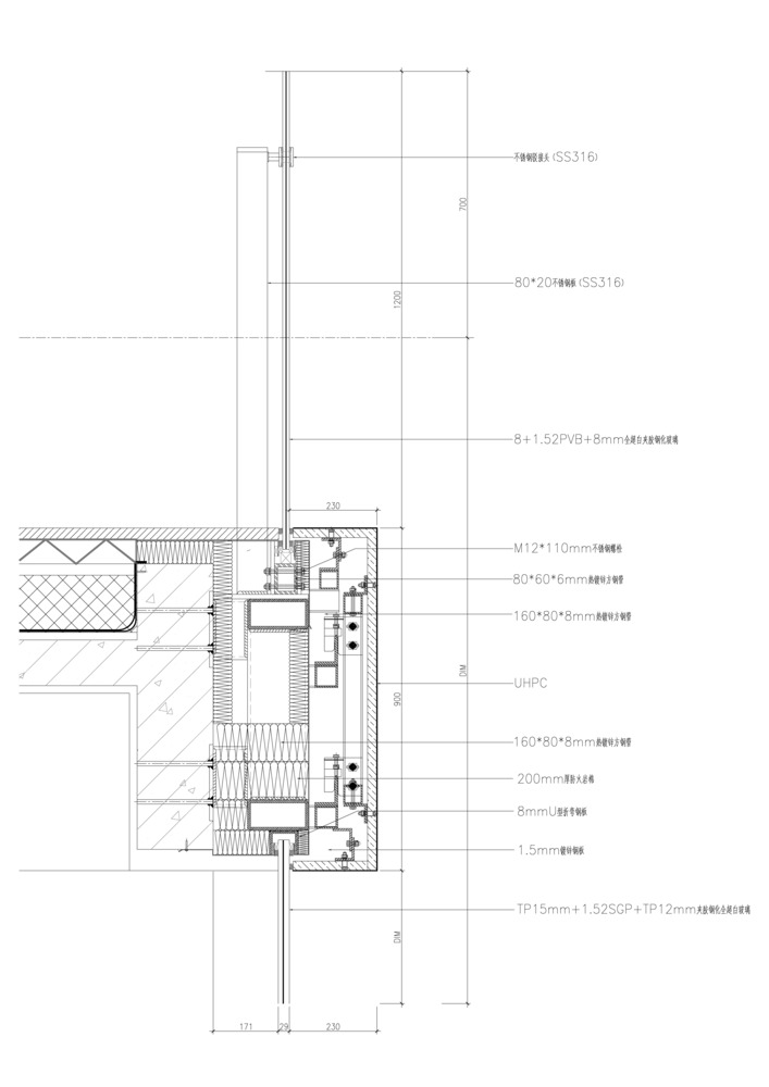
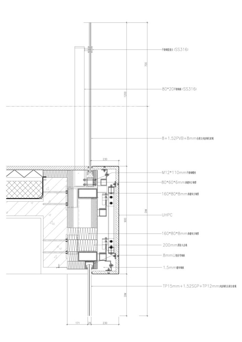
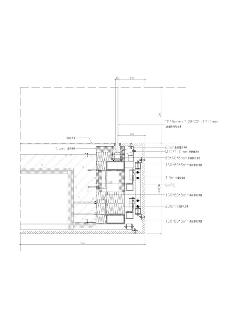
The entire building utilizes Building Integrated Photovoltaics (BIPV), ensuring a full-cycle green power supply despite spatial limitations. The seamless alignment of photovoltaic panels along the curving roof enhances both energy efficiency and aesthetic appeal. Using ultra-clear glass and Ultra-High-Performance Concrete (UHPC), the architecture achieves an ideal balance between transparency, durability, and environmental consciousness.



Energy Innovation and Environmental Impact
One of the most groundbreaking features of the CATL Zero-Carbon Teahouse is its integration with an intelligent charging station at the foot of the mountain. This bi-directional car-to-grid system enables electric vehicles to discharge excess power back into the teahouse, optimizing energy usage and reducing waste. With an annual power output of approximately 55,000 kWh, the structure significantly minimizes its carbon footprint, reducing CO₂ emissions by about 54.8 tons—equivalent to planting 3,000 trees per year.



The teahouse's energy efficiency does not stop at its technological integrations. Its design maximizes passive cooling and heating techniques, further reducing its dependency on external power sources. The curved layout promotes natural ventilation, ensuring a comfortable indoor climate while lowering energy consumption.



Architectural Harmony with Nature
Although the teahouse presents a striking contrast to the surrounding rural architecture with its contemporary materials and sleek form, it ultimately achieves a deep sense of harmony with its environment. Visitors are invited to ascend a spiraling pathway leading to the rooftop, where they experience an immersive connection with the landscape. The building acts as both an observation platform and a communal space, offering panoramic views of the mountains and valleys.


The two-story structure houses a tea bar, a cultural exchange area, and a scenic leisure space, all of which are seamlessly integrated. The continuous curves of the architecture flow through every element, unifying the structure with its interior spaces. Expansive glass walls erase the boundary between inside and outside, fostering an interactive relationship between visitors and the surrounding village.



The Future of Zero-Carbon Architecture
Beyond its function as a teahouse, this architectural masterpiece serves as a prototype for future zero-carbon architecture. It demonstrates how intelligent design, renewable energy, and thoughtful material choices can create spaces that are both aesthetically inspiring and environmentally responsible.



HATCH Architects co-founder David Wei describes the project as more than a building—it is a connector that bridges the past, present, and future of sustainable living. By linking renewable energy, local culture, and contemporary tourism, the CATL Zero-Carbon Teahouse presents a compelling vision for the future of green architecture.


As cities and communities around the world seek innovative solutions for sustainable urban development, projects like the CATL Zero-Carbon Teahouse stand as a beacon of possibility, redefining how architecture can actively contribute to a more sustainable planet.Modern Eco-Friendly


All Photographs are works of Fangfang Tian
Popular Articles
Popular articles from the community
Gads Hill Early Learning Center by JGMA: Adaptive Reuse Shaping Community-Focused Educational Architecture
Adaptive reuse transforms fragmented structure into vibrant early learning center with playful façade, natural light, and community-focused sustainable design.
Fifth NRE Jazz Club – De Bever Architecten: Eindhoven’s Revitalized Cultural Hub
Historic gas factory transformed into Fifth NRE Jazz Club blending modern sustainability, jazz culture, dining, and heritage architecture seamlessly.
Alton Cliff House: A Harmonious Retreat by f2a Architecture in Lake Country, Canada
Alton Cliff House blends corten steel, prefabrication, and sustainable design, creating a luxurious, energy-efficient retreat perched on Canadian cliffs.
Split House: A Compact Urban Home Blending Privacy, Light, and Flexible Living in Japan
Compact Japanese home featuring DOMA space, flexible café potential, passive lighting, privacy zoning, and sustainable urban living design.
Similar Reads
You might also enjoy these articles
Free Architecture Competitions You Can Enter Right Now
No entry fees, real prizes. Here are the best free architecture competitions open for submissions in 2026.
Top 15 Architecture Competitions to Enter in 2026
From student-friendly idea competitions to prestigious international awards, here are the best architecture competitions open for entries in 2026. Updated regularly.
DIY & Engineering in Computational Design : Enter the BeeGraphy Design Awards
Showcase Your Creativity with Computational Design and Open Source Projects

Innovative Design Solutions: Award-Winning Projects from Recent Architecture Competitions
Exploring award-winning architectural projects shaping the future of design, sustainability, and community.
Explore Architecture Competitions
Discover active competitions in this discipline
The International Standard for Design Portfolios
The Global Benchmark for Architecture Dissertation Awards
The Global Benchmark for Graduation Excellence
Challenge to reimagine the Iron Throne
Comments (0)
Please login or sign up to add comments
No comments yet. Be the first to comment!