Abhikram House by Khosla Associates: A Climate-Responsive Home in Ahmedabad
Climate-responsive home in Ahmedabad blending traditional materials, passive cooling, and contemporary Indian design with sculptural circulation and serene interiors.
A Home That Responds to Ahmedabad’s Harsh Summers
In designing Abhikram House, Khosla Associates took a distinctly climate-sensitive approach tailored to the dry, arid conditions of Ahmedabad. With summer temperatures soaring above 42°C, the architecture had to embody comfort, sustainability, and visual serenity.

The house’s form is shaped by climate orientation and passive cooling strategies. Deep verandahs, horizontal pergolas, vertical louvers, and carefully designed overhangs filter the intense sunlight, keeping indoor spaces cool without excessive reliance on mechanical systems.
Architectural Strategy and Material Palette
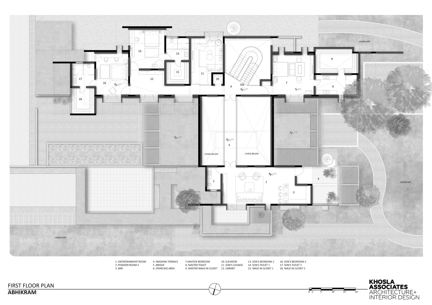
Entry into the house is from the northeast, through a dramatic portico clad in ribbed timber with geometric perforations. These openings invite natural light and highlight a linear Dholpur stone wall, directing the gaze toward the main door.

A double-height foyer leads into a voluminous living room, flanked on both sides by shaded verandahs. The east verandah faces a tranquil pool courtyard, while the west verandah opens to a lush garden shaded by two preserved neem trees—an intentional nod to Ahmedabad’s vernacular approach to landscape integration.


The north-facing Dholpur stone walls create an ever-shifting display of light and shadow (sciography), adding rhythm and warmth to the shaded exterior zones. The materiality of the house is rooted in texture—terrazzo flooring, wood veneers, corten steel, and river-finished Kota stone seamlessly blend traditional and contemporary aesthetics.

Sculptural Circulation and Spatial Drama
A standout feature is the sculptural corten steel staircase, which becomes the spatial centerpiece. Rising through a double-height void, it connects both floors and leads to a 30-ft bridge suspended over the living room. This bridge links private zones with a vibrant entertainment lounge, turning circulation into a bold spatial experience.


The staircase is visually integrated with the dining area, where sliding fluted glass doors offer both openness and privacy.

Roof Design and Natural Light
Three trapezoidal pitched roofs hover over the double-height spaces and bedrooms. These roofs admit gentle north light through clerestory openings while providing thermal protection from the harsh western sun. The underside of the roofs is finished with warm wood veneer, creating a dramatic yet comforting contrast with the cool beige terrazzo floors.

Interiors Rooted in Indian Craft and Modern Comfort
The interiors reflect a muted, earthy palette of aquas, blushes, and beiges, bringing a sense of calm to every space. Furniture pieces are largely custom-designed in collaboration with Mangrove Collective, echoing a contemporary Indian design language.


The house is decorated with tribal sculptures, Jain Pichwais, handcrafted rugs, and Indian contemporary art, reinforcing a strong cultural narrative. A traditional Gujarati swing (jhula) holds pride of place in the west verandah, bridging heritage with everyday living.
Regional Modernism with a Sustainable Ethos
Abhikram House is more than a residence—it’s a deeply contextual response to place, climate, and lifestyle. Through passive design, sustainable materials, and artistic detailing, Khosla Associates have created a modern Indian home that is both timeless and regionally grounded.


All the photographs are works of The Fishy Project
Popular Articles
Popular articles from the community
The Ken Roberts Memorial Delineation Competition (Krob)
As the most senior architectural drawing competition currently in operation anywhere in the world, it draws hundreds of entries each year, awarding the very best submissions in a series of medium-based categories.
Solar Steam: A Climate-Responsive Architecture That Redefines the Monument
A climate-responsive memorial architecture that transforms heat, decay, and time into a living system reflecting humanity’s ecological impact.
A Contemporary Take on Iranian Residential Architecture
A modern interior design in Mashhad that reinterprets brick, light, and spatial flow to create a warm, contemporary residential architecture.
Atelier Macri Concept Store Interior Design by CASE-REAL
Atelier Macri store features a "ko" counter, walnut wood details, cork displays, blending retail, gallery, and seamless customer experiences.
Similar Reads
You might also enjoy these articles
The Ken Roberts Memorial Delineation Competition (Krob)
As the most senior architectural drawing competition currently in operation anywhere in the world, it draws hundreds of entries each year, awarding the very best submissions in a series of medium-based categories.
Waterfront Redevelopment and Urban Revitalization in Mumbai: Forging a New Dawn for Darukhana
A transformative waterfront redevelopment project reimagining Darukhana’s shipbreaking heritage into an inclusive urban future.
OUT-OF-MAP: A Call for Postcards on Feminist Narratives of Public Space
Rhizoma Design and Research Lab invites artists, designers, architects, researchers, and students to reflect on how feminist perspectives can reshape public space. Selected works will be exhibited in Barcelona, October 2026. Submissions open until 15 April 2026.
Documentation Work on Buddhist Wooden Temple
Architectural syncretism and cultural hybridity: A comparative study of the Buddhist temples in Chattogram Hill tracks
Explore Architecture Competitions
Discover active competitions in this discipline
The International Standard for Design Portfolios
The Global Benchmark for Architecture Dissertation Awards
The Global Benchmark for Graduation Excellence
Challenge to reimagine the Iron Throne
Comments (0)
Please login or sign up to add comments
No comments yet. Be the first to comment!