Cave Office: A Pioneering Organic Architecture Office Design by Javier Senosiain in Mexico CityCave Office: A Pioneering Organic Architecture Office Design by Javier Senosiain in Mexico City

Cave Office: A Pioneering Organic Architecture Office Design by Javier Senosiain in Mexico City

UNI Editorial
UNI Editorial published News under Architecture, Interior Design on

Nestled in the heart of Mexico City, the Cave Office by Javier Senosiain presents an avant-garde approach to office interiors, embodying the principles of organic architecture. Spanning 202 m², this project, captured by photographers Julieta Badillo, Francisco Llubert, and Tanya Picazo Navarro, transcends conventional design paradigms to create a workspace that prioritizes human comfort, creativity, and connection with nature.

Article image
Article image
Article image

Embracing the Human-Centric Approach

Senosiain's design philosophy centers around crafting spaces that adapt to human needs—cozy, continuous environments where both space and emotions flow freely. The Cave Office is designed as a welcoming site, promoting freedom, spontaneity, and creativity. By integrating furniture and facilitating seamless circulation, the office encourages a natural rhythm of human movement, mirroring the comfort found in nature's shelters like animal dens and igloos.

Article image
Article image
Article image
Article image
Article image
Article image

Breaking with the Glass Box

The Cave Office aims to reconcile modern workspace needs with the organic forms found in nature. Senosiain describes the project as a departure from the traditional "glass box," seeking instead to create spaces that echo the human body's natural inclinations towards enveloping, cave-like environments. This approach not only fosters a sense of safety and belonging but also inspires a deeper connection with the architectural space.

Article image
Article image
Article image
Article image

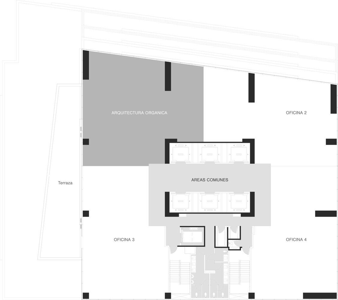
A Workspace Divided

The office layout is thoughtfully divided into two main areas: the private space and the workshop, connected by a winding tunnel that guides movement between them. The workshop area boasts spacious work tables designed for both individual and collaborative tasks, fostering an environment where creative minds can flourish together. This space extends to a multi-purpose terrace, offering a rare urban oasis where employees can enjoy greenery against the city backdrop.

Article image
Article image
Article image
Article image
Article image

The Private and Collaborative Spaces

Private spaces within the Cave Office are designed as cubicles perceived as caves, offering secluded areas for focused work. Additionally, a circular volume serves as a versatile meeting room, suitable for team discussions or client presentations, emphasizing the office's adaptable nature.

Article image
Article image
Article image
Article image

Materiality and Sensory Experience

The use of pine wood skeletons, maple root veneer, and leather-covered work surfaces exemplifies Senosiain's commitment to organic materials, enhancing the office's cave-like ambiance. These material choices not only contribute to the aesthetic appeal but also to the tactile experience, making the workspace a comfortable and inviting place to spend the day.

Article image
Article image
Article image

A Warm, Illuminated Cave for Creativity

Cave Office stands as a beacon of organic architecture office design, offering a unique work environment that stimulates creativity and well-being. Javier Senosiain has successfully created a space that balances the dynamic of changing lights throughout the day with a warm, illuminated cave atmosphere, providing sensory stimuli that inspire and comfort its inhabitants. This project redefines the concept of the office, making it a place where nature and architecture converge to support the human spirit.

Article image
Article image
Article image
Article image
Article image

All photographs are work of Julieta Badillo, Francisco Llubert, Tanya Picazo Navarro

UNI Editorial

UNI Editorial

Where architecture meets innovation, through curated news, insights, and reviews from around the globe.

Share your ideas with the world

Share your ideas with the world

Write about your design process, research, or opinions. Your voice matters in the architecture community.

Comments (0)

No comments yet. Be the first to comment!

Similar Reads

You might also enjoy these articles

publishedNews3 weeks ago
Bamboo Housing Challenge 2026: Design Affordable, Sustainable Homes Using Bamboo
publishedNews1 year ago
Computational Design & Education: Beegraphy Design Awards Introduces 7th Category (Featuring Jiyun's Innovative Approach)
publishedNews1 year ago
From Parametric Lighting to Urban Furniture: Join the 2nd Workshop in Beegraphy’s Computational Design Series
publishedNews2 years ago
Introducing Sphere by UNI: Pioneering a New Era in AEC Industry

Explore Architecture Competitions

Discover active competitions in this discipline

UNI Editorial
Search in