Chinar Textile Studio: A Model of Sustainable Architecture for Creative Workspaces
Chinar Textile Studio showcases sustainable architecture in Jaipur, combining traditional aesthetics with modern design and energy-efficient solutions.
Chinar Textile Studio, designed by Juhi Mehta Architects, is a remarkable example of sustainable architecture in Jaipur, India. The project, completed in 2021, is a textile manufacturing unit that combines functional design with climate-responsive architecture. It emphasizes creating a comfortable and efficient workspace while celebrating the artistic craftsmanship of textiles. Set in an industrial area on the outskirts of Jaipur, this 2200 m² facility blends traditional aesthetics with modern architectural techniques to create a conducive environment for over 100 workers, including tailors and weavers.



Architectural Concept and Design Inspiration
The design of Chinar Textile Studio draws inspiration from the historic havelis of Jaipur, particularly their internal courtyards and solid brick facades. The studio reinterprets these traditional elements to address the extreme climatic conditions of Rajasthan. The architects envisioned a space that would not only accommodate the operational needs of the textile manufacturing process but also provide a stimulating and comfortable atmosphere for creativity and craftsmanship. Natural light plays a crucial role in the design, with internal courtyards strategically positioned to flood the space with daylight, enhancing productivity and worker well-being.



Sustainable and Climate-Responsive Features
The use of locally sourced Class A clay bricks is a key feature in the studio’s construction. These bricks form the building’s primary envelope, with cavity walls on the south and west sides to help regulate internal temperatures and provide thermal comfort. The solid brick facade, with its unique pattern, serves both aesthetic and functional purposes. It creates a rhythm of light and shadow while blocking harsh sunlight, reducing the need for artificial cooling. The design also incorporates rainwater harvesting and solar panels, making the building energy-efficient and reducing its carbon footprint.


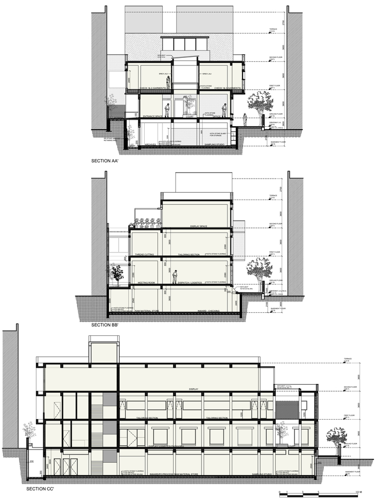
Interior Layout and Functional Zoning
Chinar Textile Studio is designed with a focus on functionality and flow. The internal layout is organized around central courtyards, allowing for abundant natural light to reach all areas of the building. The ground floor houses the weavers, craftsmen, and the head designer’s team, while the basement is dedicated to raw material storage and a sampling studio. The first floor is home to the tailors and production units, ensuring that the various stages of textile production are seamlessly integrated. The second floor serves as a small display space, opening up to terraces on two sides, offering a glimpse into the final products.


Architectural Materials and Finishes
Inside the building, the choice of materials reflects a commitment to simplicity and durability. The exposed brick walls, concrete-finished slabs, and Kota stone floors create a neutral palette that highlights the creative work of the craftsmen. These materials not only provide a timeless aesthetic but also contribute to the building’s thermal performance. The courtyards bring light deep into the interior, making the space more inviting and energizing. The open, airy spaces ensure a comfortable working environment that encourages focus and creativity.


Energy Efficiency and Sustainability
Energy efficiency is a central theme in the design of Chinar Textile Studio. With abundant natural light, the building reduces the need for artificial lighting, thus lowering energy consumption. The brick facade’s ability to keep the building cool during the hot summer months means that air conditioning is not required, even during the hottest times of the year. This is particularly important in Rajasthan’s extreme climate. The installation of solar panels and a rainwater harvesting system further enhances the building’s sustainability by generating renewable energy and reusing water for daily operations.


A Model for Sustainable Industrial Architecture
Chinar Textile Studio is a stunning example of how architecture can respond to the environmental and functional needs of a project. By blending traditional design elements with modern sustainability practices, Juhi Mehta Architects have created a space that is both aesthetically pleasing and climatically comfortable. This textile studio serves as a model for sustainable architecture, demonstrating how industrial buildings can be designed with respect for local culture, climate, and the well-being of its occupants.



All Photographs are work of Studio BluOra
Popular Articles
Popular articles from the community
Louis Malle Cinema: A Limestone Cultural Landmark Revitalizing Community Life in Prayssac
Limestone cinema extension with public forecourt, blending heritage and modern design to create flexible cultural spaces and strengthen community interaction.
Inverted Architecture Installation by Studio Link-Arc: Exploring the Intersection of Architecture and Living Organisms
Inverted Architecture Installation by Studio Link-Arc blends mycelium, sustainability, inverted design, ecological cycles, and urban adaptive architecture in Shenzhen.
Flamboyant House by Juliana Camargo + Prumo Projetos
Modern Brazilian house integrating existing tree, pool, and volumes with glass, wood, and transitional spaces blending interior, exterior, and landscape seamlessly.
Solar Steam: A Climate-Responsive Architecture That Redefines the Monument
A climate-responsive memorial architecture that transforms heat, decay, and time into a living system reflecting humanity’s ecological impact.
Similar Reads
You might also enjoy these articles
The Ken Roberts Memorial Delineation Competition (Krob)
As the most senior architectural drawing competition currently in operation anywhere in the world, it draws hundreds of entries each year, awarding the very best submissions in a series of medium-based categories.
Waterfront Redevelopment and Urban Revitalization in Mumbai: Forging a New Dawn for Darukhana
A transformative waterfront redevelopment project reimagining Darukhana’s shipbreaking heritage into an inclusive urban future.
OUT-OF-MAP: A Call for Postcards on Feminist Narratives of Public Space
Rhizoma Design and Research Lab invites artists, designers, architects, researchers, and students to reflect on how feminist perspectives can reshape public space. Selected works will be exhibited in Barcelona, October 2026. Submissions open until 15 April 2026.
Documentation Work on Buddhist Wooden Temple
Architectural syncretism and cultural hybridity: A comparative study of the Buddhist temples in Chattogram Hill tracks
Explore Architecture Competitions
Discover active competitions in this discipline
The International Standard for Design Portfolios
The Global Benchmark for Architecture Dissertation Awards
The Global Benchmark for Graduation Excellence
Challenge to reimagine the Iron Throne
Comments (0)
Please login or sign up to add comments
No comments yet. Be the first to comment!