City Fresh Store and Restaurant by Spacy Architecture
City Fresh Store and Restaurant by Spacy Architecture transforms a Bangkok row house into a vibrant community hub blending dining, retail, and healthy living.
Located in the heart of Khet Watthana, Bangkok, the City Fresh Store and Restaurant by Spacy Architecture redefines how food, community, and design intersect. Originally a modest row house, the 602 m² project—completed in 2022—was transformed into a multi-functional destination that blends retail, dining, and social engagement. With its transparent architectural language, open circulation, and focus on natural light, the project celebrates both sustainable design and healthy living.


Adaptive Reuse and Urban Integration
The architects reimagined the site as a House of Fruits, a space that welcomes both locals and visitors. Instead of functioning as a traditional grocery store or restaurant, it offers a hybrid community hub where food lovers gather to exchange ideas, share experiences, and connect. The design responds to the dense urban fabric of Bangkok by creating visual permeability through glass panels and open facades, encouraging interaction between the interior and its surrounding neighborhood.


First Floor: Retail and Social Gathering
The ground level serves as both a retail store and an informal meeting space. Visitors can explore curated selections of fruits and fresh homegrown salads while enjoying temporary seating areas for quick interactions or small gatherings. Transparency, layered materials, and natural light soften the structure, allowing greenery and fresh produce to take center stage. The open layout seamlessly connects circulation from the first to upper levels, ensuring spatial fluidity.


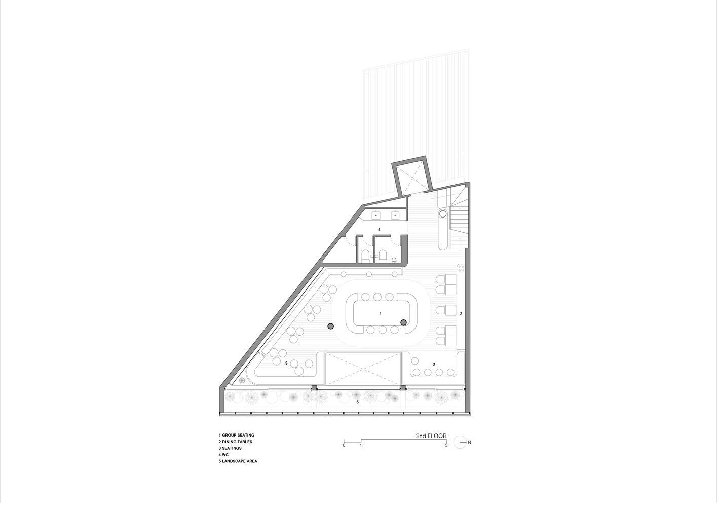
Second Floor: Dining and Community Interaction
The second level is designed as a versatile dining space with a mix of communal tables and smaller seating arrangements. Neutral finishes create a calm backdrop that highlights the vibrant colors of fresh produce. The spatial layout encourages social interaction, whether among large groups of friends sharing a communal table or individuals working independently in a casual setting. This adaptability ensures the restaurant functions as both a dining venue and a community coworking space.


Third Floor: Cooking Studio and Flexible Dining
The third level houses a cooking studio with a movable kitchenette, where renowned chefs lead interactive classes on healthy cooking with fruits and vegetables. This space promotes a farm-to-table lifestyle, as participants can pick fresh ingredients from the store below to prepare their dishes. A private dining area adjacent to the studio offers flexibility for workshops, events, or group meals. At the heart of this level, a “lucky tree” anchors the space, offering shade, comfort, and symbolic connection between nature and architecture.

Architectural Language and Materiality
Spacy Architecture employed a secondary skin façade with randomized voids that create framed views and playful shadow patterns. This treatment balances privacy and openness, while also filtering natural light throughout the interiors. The material palette—neutral tones, glass, and subtle textures—highlights the architecture’s restraint, ensuring that the vivid colors of fresh produce remain the focal point.
The City Fresh Store and Restaurant is more than just a food destination—it’s a social and architectural experiment that integrates healthy living, adaptive reuse, and community engagement within Bangkok’s urban context. Through transparency, flexibility, and biophilic design elements, the project becomes a model for sustainable urban hospitality in Southeast Asia.

All Photographs are works of Rungkit Charoenwat
Popular Articles
Popular articles from the community
Flamboyant House by Juliana Camargo + Prumo Projetos
Modern Brazilian house integrating existing tree, pool, and volumes with glass, wood, and transitional spaces blending interior, exterior, and landscape seamlessly.
Louis Malle Cinema: A Limestone Cultural Landmark Revitalizing Community Life in Prayssac
Limestone cinema extension with public forecourt, blending heritage and modern design to create flexible cultural spaces and strengthen community interaction.
The Ken Roberts Memorial Delineation Competition (Krob)
As the most senior architectural drawing competition currently in operation anywhere in the world, it draws hundreds of entries each year, awarding the very best submissions in a series of medium-based categories.
A Contemporary Take on Iranian Residential Architecture
A modern interior design in Mashhad that reinterprets brick, light, and spatial flow to create a warm, contemporary residential architecture.
Similar Reads
You might also enjoy these articles
The Ken Roberts Memorial Delineation Competition (Krob)
As the most senior architectural drawing competition currently in operation anywhere in the world, it draws hundreds of entries each year, awarding the very best submissions in a series of medium-based categories.
Waterfront Redevelopment and Urban Revitalization in Mumbai: Forging a New Dawn for Darukhana
A transformative waterfront redevelopment project reimagining Darukhana’s shipbreaking heritage into an inclusive urban future.
OUT-OF-MAP: A Call for Postcards on Feminist Narratives of Public Space
Rhizoma Design and Research Lab invites artists, designers, architects, researchers, and students to reflect on how feminist perspectives can reshape public space. Selected works will be exhibited in Barcelona, October 2026. Submissions open until 15 April 2026.
Documentation Work on Buddhist Wooden Temple
Architectural syncretism and cultural hybridity: A comparative study of the Buddhist temples in Chattogram Hill tracks
Explore Architecture Competitions
Discover active competitions in this discipline
The International Standard for Design Portfolios
The Global Benchmark for Architecture Dissertation Awards
The Global Benchmark for Graduation Excellence
Challenge to reimagine the Iron Throne
Comments (0)
Please login or sign up to add comments
No comments yet. Be the first to comment!