Collaborative Genius: EVR-ARCHITECTEN and CALLEBAUT ARCHITECTEN Design a Dream School for BUBAO St. Lievenspoort
What Innovative Features Set BUBAO School St. Lievenspoort Apart from Traditional Educational Institutions?

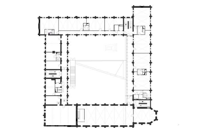
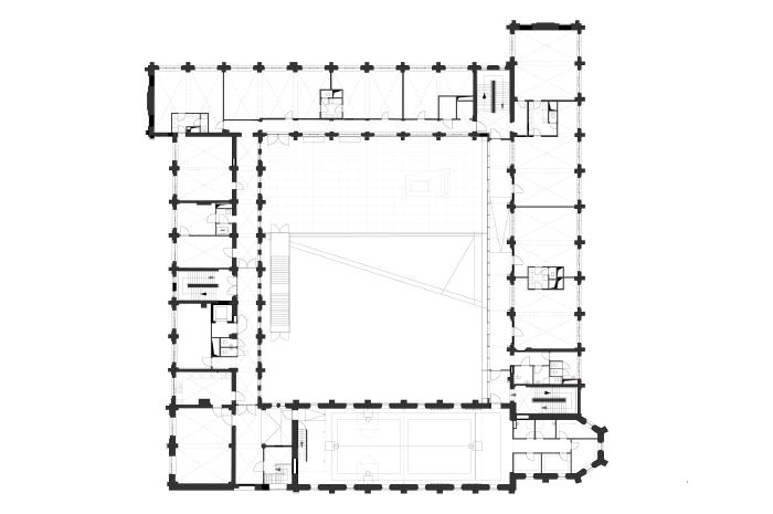
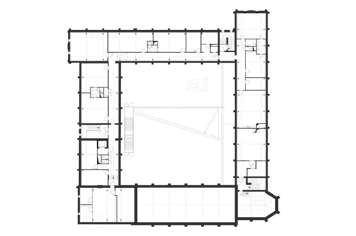
The EVR-ARCHITECTEN and CALLEBAUT ARCHITECTEN have successfully transformed a former convent into a state-of-the-art school for children with auditory and/or speech or autism spectrum disorders. Located in the Sint-Lievenspoort care site in Ghent, the school's renovation and restoration have breathed new life into the imposing neo-Gothic complex.
The former gloomy building has been refreshed, and an abundance of light and air now permeates the space, creating an environment that is conducive to learning. The former courtyard has been cleared, and a new multipurpose hall has been implanted, with the roof serving as a relaxation area.
The architects' interventions have provided the right scale, orientation, and identity for both the nursery and primary schools. The surroundings have been brightly greened and differentiated, with the historic cloisters renovated and optimized.
Functional, flexible, and clear classrooms have been designed to meet the needs of children with auditory and/or speech or autism spectrum disorders. One corridor has been placed outside the building in a double facade, reinforcing the visual and physical relationship between the building and the courtyard.
The former chapel has been converted into a sports hall, offering children the opportunity to engage in physical activities. Although the renovation has its limitations in terms of energy-saving, the architects have made every effort to minimize consumption and maximize comfort.
The EVR-ARCHITECTEN and CALLEBAUT ARCHITECTEN's design has breathed new life into the former convent, creating a space that is both functional and aesthetically pleasing. The school's renovation and restoration have provided a much-needed resource for children with auditory and/or speech or autism spectrum disorders, offering them an environment that is conducive to learning and personal growth.


























Architects: Callebaut Architecten, evr-Architecten
Area: 6000 m²
Year: 2016
Photographs: Stijn Bollaert
Manufacturers: EQUITONE, HERAKLITH, Rockfon, Sapa Building System International NV, Vitra
General Contractor: THV Jan De Nul - Van Laere
Engineer MEP: Istema
Engineer Stability: Studieburo Mouton