Dwelling the Absent Shiraz Apartment – Negotiating Constraints, Light, and Landscape by Alborz Mohammadi by Keramati Architect
Compact Shiraz apartment negotiates site constraints, light, and landscape; subtractive design shapes duplex living for Maryam and Faraj in Iran.
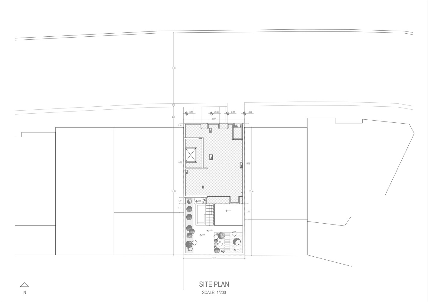
Dwelling the Absent Shiraz Apartment is a 1,140 m² residential project in Shiraz, Iran, designed by Alborz Mohammadi and Payam Keramati of Keramati Architect in 2019 for clients Maryam and Faraj. Set directly opposite a university’s verdant campus, the project transforms a narrow urban plot into a layered home that captures both northern landscape views and the southern light essential to Shiraz’s climate. Rather than treat limitations as obstacles, the architects used them as generative forces, carving space through strategic subtraction.


Site Context and Urban Constraints
The site’s most privileged asset—a rare, uninterrupted northern view across the university green—coincided with one of its tightest constraints: a narrow width of just twelve meters within a dense urban fabric. Municipal zoning envelopes, boundary lines, and daylight rules pressed in on all sides. The design became an act of calibrated release, sculpting voids within a predefined mass so that light, air, and view could infiltrate an otherwise restrictive volume.

Architecture of Absence as Form Generator
Invisible pressures shaped the building like a block under compression. Regulatory setbacks, solar orientation, and the clients’ daily rituals registered as figurative pressure points that pressed inward, removing matter. What remained were purposeful absences—terraces, cuts, double-height edges, and glazed apertures—that structure experience. In this project, absence is neither leftover nor void; it is the primary tool for making inhabitable form.



Dual Orientation: Light to the South, Landscape to the North
To reconcile the pull of northern vistas with the thermal and luminous benefits of southern exposure, the architects located the couple’s main residence as a duplex across the first floor and its mezzanine. Program flows between orientations: a sun-warmed master suite to the south, guest rooms that open toward the green campus to the north, and a secluded studio for Maryam set within the sectional interplay between levels. Movement through the duplex becomes a daily oscillation between light and outlook.


Spatial Layering of Public and Private Life
Two living areas anchor the home across its split levels, allowing social gatherings to unfold separately from quieter, more intimate zones. Vertical connections maintain visual continuity while sectional offsets create moments of withdrawal. The resulting choreography supports varied social rhythms—hosting, retreating, working, and resting—within the disciplined footprint of the site.

Courtyard Threshold and Reflecting Pool
Below, the parking level—ordinarily an isolated service zone—was reimagined as an extension of domestic space. Openings connect it directly to the main courtyard, and a generous reflecting pool draws daylight downward, animating the subterranean threshold with water, sky, and shifting reflections from the landscape beyond. This move blurs distinctions between ground, below-grade program, and exterior garden, turning arrival into an experiential sequence.

Calibrated Apertures and Environmental Response
Tall glazing to the north frames the campus landscape and admits even, indirect light, reducing glare and heat gain. Narrower southern openings admit controlled solar warmth, tuned to seasonal shifts in Shiraz’s sun path. The contrast between broad northern views and precise southern apertures intensifies awareness of orientation, climate, and daily time.


Mass Formed by Subtraction
Seen in elevation and section, the residence reads as a mass hollowed by need and desire. Cuts open courtyards, recess balconies, and define layered planes that step back from regulatory envelopes while expanding perceptual depth. Material expression underscores the concept: surfaces register where the building was carved away, where structure yields to air, and where occupation presses outward toward landscape.


Living with Limits
For Maryam and Faraj, the apartment is less a static object than an ongoing negotiation with circumstance. Tightly drawn property lines, municipal codes, and environmental realities met with personal rituals—watching the campus from the kitchen, inhabiting sunlight, withdrawing to a studio, descending through water and shade. The architecture records these negotiations in its absences.


Dwelling the Absent Shiraz Apartment by Alborz Mohammadi and Keramati Architect demonstrates how constraint can author space. A narrow urban site becomes a layered duplex home shaped by subtraction, oriented simultaneously to light and landscape, and grounded by a courtyard threshold animated with water. In honoring what is removed as much as what is built, the project offers a compelling model for high-density residential architecture in rapidly urbanizing contexts.

All the photographs are works of Navid Atrvash
Popular Articles
Popular articles from the community
Flamboyant House by Juliana Camargo + Prumo Projetos
Modern Brazilian house integrating existing tree, pool, and volumes with glass, wood, and transitional spaces blending interior, exterior, and landscape seamlessly.
The Ken Roberts Memorial Delineation Competition (Krob)
As the most senior architectural drawing competition currently in operation anywhere in the world, it draws hundreds of entries each year, awarding the very best submissions in a series of medium-based categories.
Treehouse Apartment: A Warm Timber Interior Blending Craft, Play, and Contemporary Living
Warm timber apartment with integrated treehouse, combining natural materials, craftsmanship, and playful design to create a flexible, family-oriented living environment.
On the Brooks House by Monsoon Collective – A Contemporary Kerala Home Rooted in Tradition
Kerala home blending tradition and modernity with water-inspired design, brick architecture, courtyard planning, and sustainable rainwater harvesting strategies.
Similar Reads
You might also enjoy these articles
Bamboo Housing Challenge 2026: Design Affordable, Sustainable Homes Using Bamboo
An international design competition by Bamboo U and IBUKU inviting architects and designers to reimagine affordable housing using bamboo — with the winning design built full-scale in Bali.
Computational Design & Education: Beegraphy Design Awards Introduces 7th Category (Featuring Jiyun's Innovative Approach)
Dive into Beegraphy’s 7th Design Awards category, where computational design meets education to create immersive, interactive learning tools, inspired by Jiyun’s work.
From Parametric Lighting to Urban Furniture: Join the 2nd Workshop in Beegraphy’s Computational Design Series
Dive into Cutting-Edge Design Techniques and Practical Applications with Industry Experts
Introducing Sphere by UNI: Pioneering a New Era in AEC Industry
Unlocking Global Potential with BIM and Agile Management
Explore Architecture Competitions
Discover active competitions in this discipline
The International Standard for Design Portfolios
The Global Benchmark for Architecture Dissertation Awards
The Global Benchmark for Graduation Excellence
Challenge to reimagine the Iron Throne
Comments (0)
Please login or sign up to add comments
No comments yet. Be the first to comment!