Hana Bank Seoul-Forest: Redefining Modern Bank Architecture in Seoul
Hana Bank Seoul-Forest redefines modern bank architecture in Seoul, blending openness, light, and spatial fluidity for a contemporary financial experience.
A New Vision for Financial Spaces
Hana Bank's Seoul-Forest branch, designed by Indiesalon, represents a bold redefinition of modern bank architecture in Seoul. Situated in Seongdong-gu, an area known for its dynamic urban fabric, the design transforms the traditional banking experience by integrating spatial fluidity, natural light, and a refined material palette. This branch is not just a place for transactions—it is a contemporary urban retreat that invites visitors to experience financial services in an environment of relaxation and contemplation.



Reimagining the Customer Experience
Traditional banks often evoke images of rigid spaces, long waiting times, and purely functional designs. The Seoul-Forest branch challenges this perception by creating an inviting and elegant atmosphere where customers can feel at ease. The interior is crafted to engage visitors beyond the transactional purpose, turning waiting time into an opportunity for reflection and connection with the surrounding urban landscape.


Expansive floor-to-ceiling windows frame the lively views of Seongsu-dong, blending the interiors with the external cityscape. The waiting areas are arranged to maximize openness, featuring curved bank windows and a parabolic roof that enhances the sense of upward movement. By integrating architectural elements that prioritize comfort and visual harmony, the space establishes a new benchmark for modern financial institutions.


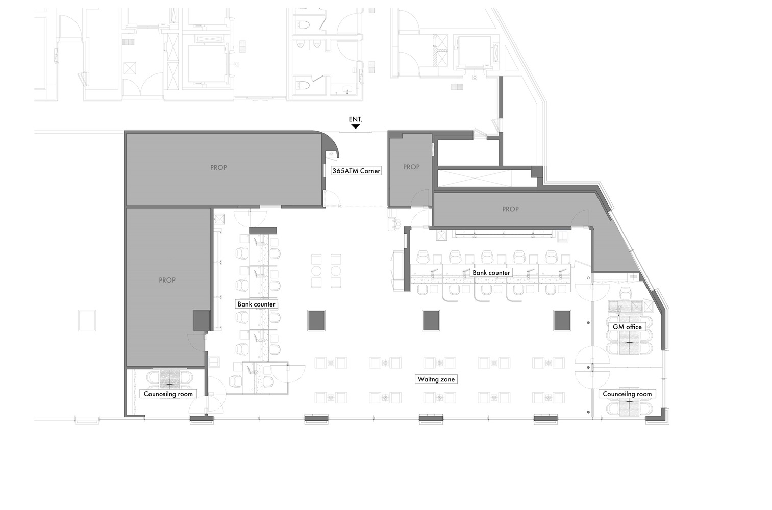
Architectural Composition and Spatial Dynamics
Upon entering, visitors are greeted by a dramatic transition in ceiling height. The entrance features a low-rise ceiling that creates an intimate and welcoming entry experience. Red patterned wood and curved white walls establish a contemporary yet soft aesthetic, while large circular ceiling lights introduce depth and warmth.


Moving further inside, the ceiling gradually rises, leading customers into the heart of the bank. This spatial transition enhances the sense of discovery, guiding visitors from a compressed, focused entry into an expansive, light-filled banking hall. The composition of the space is further defined by four structural pillars at the center, supporting the high-rise roof while maintaining a sense of openness. These pillars also function as digital display stations, allowing customers to check their queue status while enjoying the outside views.


The "Roof of Hana": A Floating Architectural Statement
The defining feature of the Seoul-Forest branch is its innovative roof structure, aptly named the "Roof of Hana." Unlike conventional bank ceilings, this parabolic roof is deliberately detached from the main interior ceiling, creating an illusion of lightness and elevation. A gap between the roof’s edge and the walls allows for diffused lighting, reinforcing the visual effect of the roof floating above the space.


The warm hardwood patterns of the ceiling wrap around customers, offering a comforting embrace. The curvature of the roof leads the eye toward the expansive windows, establishing a seamless visual connection between the bank’s interior and the urban environment. This design decision transforms the space into more than just a financial institution—it becomes an architectural experience that balances function with emotion.


Layered Spaces for Functionality and Flexibility
Beyond the main hall, the bank accommodates a series of purpose-driven spaces, each designed with a unique ambiance. Rear areas house essential banking functions, including workspaces, counseling rooms, and employee lounges. The ceiling heights are carefully adjusted to match the functionality of each space, maintaining an overall sense of unity while optimizing the environment for specific tasks.

The bank windows are positioned under a lower ceiling height to regulate lighting intensity, ensuring a balanced and comfortable customer experience. The furniture in this section is custom-designed, featuring Hana Bank’s signature green color, reinforcing brand identity while enhancing comfort.

A Balance of Privacy and Openness
The design strategy for the Seoul-Forest branch masterfully integrates areas of openness with spaces of privacy. The VIP rooms, in contrast to the light-filled main hall, are finished in deep antique red, offering an exclusive and intimate setting. This differentiation in color and materiality creates a distinct contrast, providing a sense of luxury and discretion for high-profile clients.

The branch manager’s office introduces another layer of architectural distinction. Defined by its dome-shaped ceiling and generous windows, the space maintains openness while ensuring a level of separation. A folding door allows for flexibility, enabling the office to adapt to different functions as needed.

A New Standard for Bank Architecture
Hana Bank Seoul-Forest exemplifies how modern bank architecture in Seoul is evolving beyond mere functionality. By merging elements of hospitality, transparency, and thoughtful spatial organization, Indiesalon has crafted a financial space that aligns with contemporary urban life. The branch integrates seamlessly with the rhythm of Seongsu-dong, presenting a model for future financial institutions that prioritize both aesthetics and user experience.

This project is a testament to the power of architectural design in redefining everyday spaces. By challenging traditional perceptions of banking environments, Hana Bank Seoul-Forest establishes a new paradigm where financial institutions become places of comfort, engagement, and architectural innovation.

All Photographs are works of Donggyu Kim
Popular Articles
Popular articles from the community
Louis Malle Cinema: A Limestone Cultural Landmark Revitalizing Community Life in Prayssac
Limestone cinema extension with public forecourt, blending heritage and modern design to create flexible cultural spaces and strengthen community interaction.
The Ken Roberts Memorial Delineation Competition (Krob)
As the most senior architectural drawing competition currently in operation anywhere in the world, it draws hundreds of entries each year, awarding the very best submissions in a series of medium-based categories.
Fifth NRE Jazz Club – De Bever Architecten: Eindhoven’s Revitalized Cultural Hub
Historic gas factory transformed into Fifth NRE Jazz Club blending modern sustainability, jazz culture, dining, and heritage architecture seamlessly.
A Contemporary Take on Iranian Residential Architecture
A modern interior design in Mashhad that reinterprets brick, light, and spatial flow to create a warm, contemporary residential architecture.
Similar Reads
You might also enjoy these articles
Bamboo Housing Challenge 2026: Design Affordable, Sustainable Homes Using Bamboo
An international design competition by Bamboo U and IBUKU inviting architects and designers to reimagine affordable housing using bamboo — with the winning design built full-scale in Bali.
Computational Design & Education: Beegraphy Design Awards Introduces 7th Category (Featuring Jiyun's Innovative Approach)
Dive into Beegraphy’s 7th Design Awards category, where computational design meets education to create immersive, interactive learning tools, inspired by Jiyun’s work.
From Parametric Lighting to Urban Furniture: Join the 2nd Workshop in Beegraphy’s Computational Design Series
Dive into Cutting-Edge Design Techniques and Practical Applications with Industry Experts
Introducing Sphere by UNI: Pioneering a New Era in AEC Industry
Unlocking Global Potential with BIM and Agile Management
Explore Architecture Competitions
Discover active competitions in this discipline
The International Standard for Design Portfolios
The Global Benchmark for Architecture Dissertation Awards
The Global Benchmark for Graduation Excellence
Challenge to reimagine the Iron Throne
Comments (0)
Please login or sign up to add comments
No comments yet. Be the first to comment!