Modern Courtyard House: House of the Rising Meadow by I/O Architects
House of the Rising Meadow by I/O Architects redefines the modern courtyard house through innovative design, seamless indoor-outdoor living, and technology.
A Contemporary Courtyard Home in Sofia
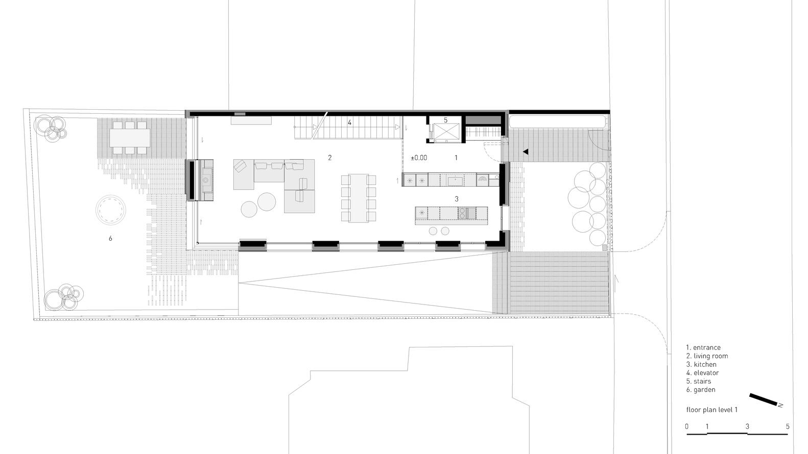
The House of the Rising Meadow by I/O Architects is a modern courtyard house seamlessly blending architectural innovation with historical context. Located in a 1920s neighborhood in Sofia, Bulgaria, this 685-square-meter single-family residence reinterprets traditional courtyard living through contemporary materials, spatial fluidity, and cutting-edge technology. The design embraces privacy while maintaining a strong connection to its natural surroundings, resulting in a harmonious fusion of indoor and outdoor spaces.




A Thoughtful Approach to Spatial Organization
Surrounded on three sides by intimate courtyards, the house is structured to create a dynamic dialogue between open and enclosed spaces. A narrow grassy side passage links the front entrance courtyard to the secluded backyard, ensuring a continuous visual and functional connection throughout the property. This carefully planned circulation fosters a sense of openness while preserving the homeowner's privacy.





Innovative Integration of Technology and Landscape
One of the most distinctive features of the design is its hydraulic meadow, a technologically advanced system that lifts an entire section of the landscape to reveal an underground parking area. This seamless integration of technology with natural elements enhances both the functionality and aesthetic appeal of the residence. The courtyard layout is further enriched by a circular skylight, flooding the below-ground spaces with natural light and reinforcing the home’s connection to nature.



A Façade That Evolves with Perspective
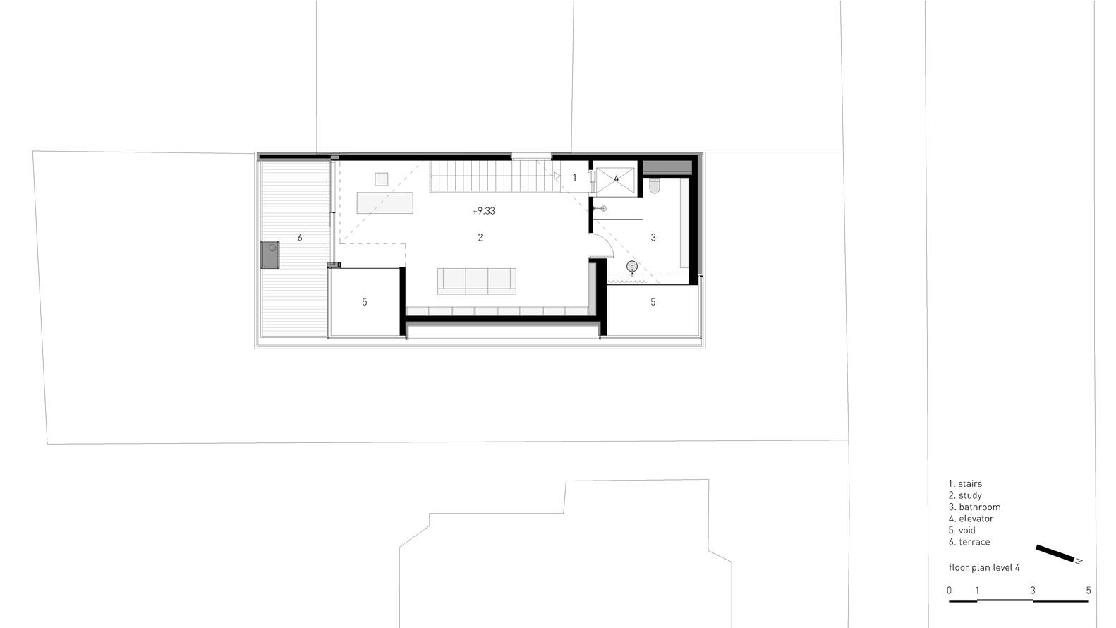
The exterior composition of the house reflects a meticulous balance between tradition and modernity. The façade openings gradually increase in size from the street-facing side to the inner courtyard, reinforcing a spatial hierarchy that transitions from public to private. Mirrored glass volumes on the fourth floor introduce a striking architectural element, subtly reducing the building’s perceived scale while reflecting the surrounding environment.






Materiality and Interior Harmony
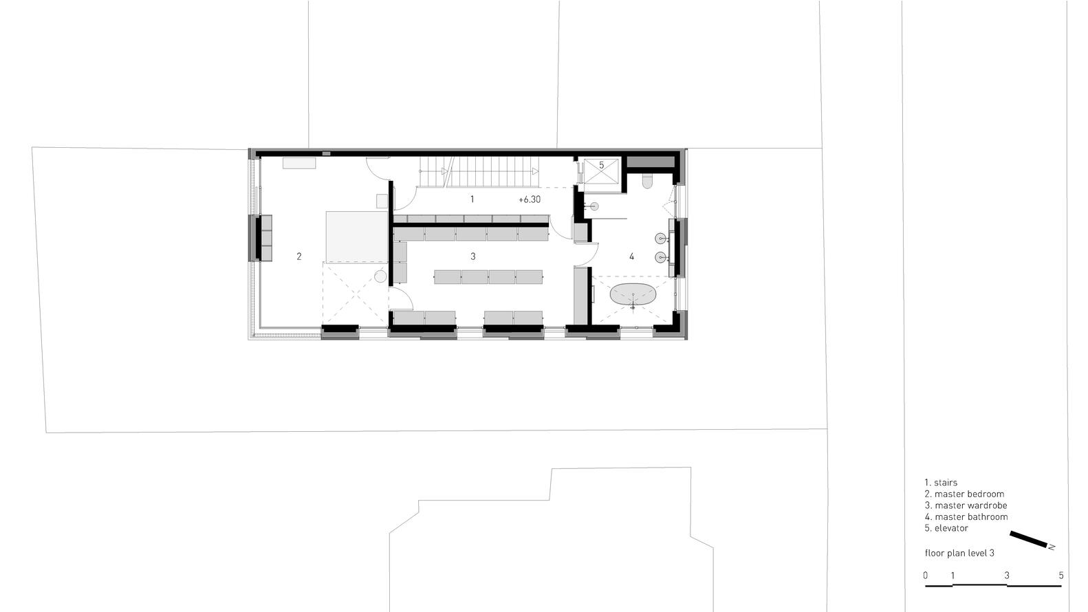
A refined selection of materials enhances the home’s architectural presence. Concrete floors and ceilings establish a robust, contemporary foundation, softened by the warmth of walnut wood and delicate metal detailing. The living room occupies the entire first-floor footprint, opening in all directions to embrace the surrounding courtyards. On the third and fourth levels, the master bedroom and study are connected through double-height glass voids, creating a sense of spatial continuity and openness.






Redefining the Modern Courtyard House
House of the Rising Meadow reimagines the essence of a modern courtyard house through a masterful balance of privacy, openness, and innovation. By integrating advanced structural solutions with contextual sensitivity, I/O Architects has crafted a residence that feels both grounded in history and forward-thinking in its execution. With its seamless blend of technology, materiality, and spatial fluidity, this house sets a new benchmark for contemporary residential architecture.









All Photographs are works of Assen Emilov
Popular Articles
Popular articles from the community
A Contemporary Take on Iranian Residential Architecture
A modern interior design in Mashhad that reinterprets brick, light, and spatial flow to create a warm, contemporary residential architecture.
Gads Hill Early Learning Center by JGMA: Adaptive Reuse Shaping Community-Focused Educational Architecture
Adaptive reuse transforms fragmented structure into vibrant early learning center with playful façade, natural light, and community-focused sustainable design.
Treehouse Apartment: A Warm Timber Interior Blending Craft, Play, and Contemporary Living
Warm timber apartment with integrated treehouse, combining natural materials, craftsmanship, and playful design to create a flexible, family-oriented living environment.
The Ken Roberts Memorial Delineation Competition (Krob)
As the most senior architectural drawing competition currently in operation anywhere in the world, it draws hundreds of entries each year, awarding the very best submissions in a series of medium-based categories.
Similar Reads
You might also enjoy these articles
The Ken Roberts Memorial Delineation Competition (Krob)
As the most senior architectural drawing competition currently in operation anywhere in the world, it draws hundreds of entries each year, awarding the very best submissions in a series of medium-based categories.
Waterfront Redevelopment and Urban Revitalization in Mumbai: Forging a New Dawn for Darukhana
A transformative waterfront redevelopment project reimagining Darukhana’s shipbreaking heritage into an inclusive urban future.
OUT-OF-MAP: A Call for Postcards on Feminist Narratives of Public Space
Rhizoma Design and Research Lab invites artists, designers, architects, researchers, and students to reflect on how feminist perspectives can reshape public space. Selected works will be exhibited in Barcelona, October 2026. Submissions open until 15 April 2026.
Documentation Work on Buddhist Wooden Temple
Architectural syncretism and cultural hybridity: A comparative study of the Buddhist temples in Chattogram Hill tracks
Explore Architecture Competitions
Discover active competitions in this discipline
The International Standard for Design Portfolios
The Global Benchmark for Architecture Dissertation Awards
The Global Benchmark for Graduation Excellence
Challenge to reimagine the Iron Throne
Comments (0)
Please login or sign up to add comments
No comments yet. Be the first to comment!