Modern House Extension Design: The PAYZ House Transformation by Alors StudioModern House Extension Design: The PAYZ House Transformation by Alors Studio

Modern House Extension Design: The PAYZ House Transformation by Alors Studio

UNI Editorial
UNI Editorial published News under Architecture on

The trend of extending and modernizing homes has become increasingly popular among homeowners looking to adapt their living spaces to new needs without moving. The PAYZ House project in Payzac, France, exemplifies a successful modern house extension design that enhances the functionality of the home while respecting its original architecture and natural surroundings.

Article image
Article image
Article image
Article image

The Vision Behind PAYZ House

Situated in a serene village in the south of Ardèche, the PAYZ House, originally built in 2007, stands as a modern insertion in a landscape dominated by traditional construction. This extension project by Alors Studio aimed to transform the holiday home into a more functional, everyday living space by connecting independent units and adding new living areas, all while maintaining a harmonious relationship with the breathtaking natural landscape.

Article image
Article image
Article image
Article image

Design Strategies for a Seamless Extension

Creating Connections

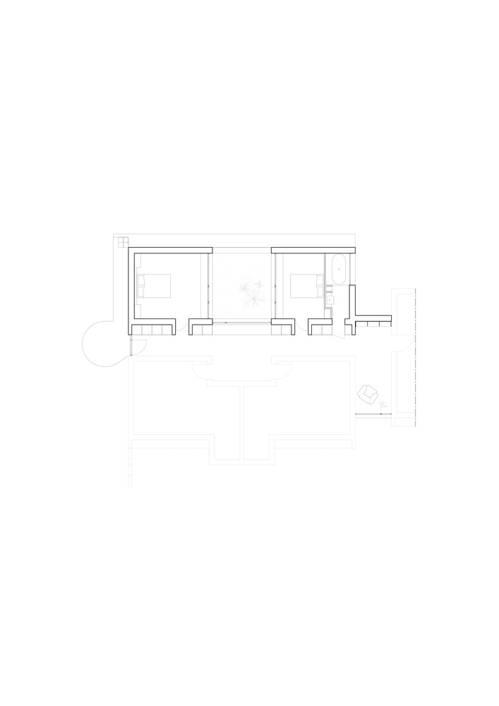
The key challenge was to connect the three separate units of the house into a cohesive whole. The solution came in the form of a long corridor, establishing a new entrance and linking the main existing blocks. This innovative distribution strategy not only enhanced the home's functionality but also introduced additional interior spaces, enriching the living experience.

Article image
Article image
Article image
Article image

Integrating with Nature

PAYZ House is distinguished by its oversized glass windows and concrete facades that reflect the rocky surroundings and the tradition of dry stone walls. The extension continues this dialogue with nature by introducing new perspectives and creating intimate atmospheres. Wide openings frame the landscape, turning formerly overlooked views into focal points of the interior design.

Article image
Article image
Article image
Article image

Fostering Intimacy and Interiority

Unlike the original structure's outward-facing orientation, the extension looks backward, offering a new form of interiority. It opens up to different panoramas, establishing a more intimate connection with the property's natural features. The design articulates bedrooms around a mineral patio, creating contemplative spaces that encourage residents to engage with their environment in a more profound way.

Article image
Article image
Article image
Article image

Materiality and Aesthetics

The use of rough concrete surfaces in the extension is balanced with wooden elements, introducing warmth to the spaces. This material choice ensures continuity with the existing structure while allowing the new additions to stand out subtly. The incorporation of built-in wooden benches and colorful sheers adds layers of texture and color, enriching the overall aesthetic.

Article image
Article image
Article image
Article image

Redefining Home with Modern Extensions

The PAYZ House by Alors Studio showcases the transformative potential of modern house extension design. By thoughtfully addressing the needs for connectivity and functionality, and by engaging in a respectful dialogue with the surrounding landscape, this project serves as a model for homeowners seeking to adapt and expand their living spaces. Modern extensions like PAYZ House not only enhance the usability and aesthetics of a home but also contribute to a sustainable approach to living, where existing structures are valued and revitalized for future generations.

Article image
Article image
Article image
Article image
Article image

All the photographs are work of Anne-Sophie Soudoplatoff

UNI Editorial

UNI Editorial

Where architecture meets innovation, through curated news, insights, and reviews from around the globe.

Share your ideas with the world

Share your ideas with the world

Write about your design process, research, or opinions. Your voice matters in the architecture community.

Comments (0)

No comments yet. Be the first to comment!

Similar Reads

You might also enjoy these articles

publishedNews3 weeks ago
Bamboo Housing Challenge 2026: Design Affordable, Sustainable Homes Using Bamboo
publishedNews1 year ago
Computational Design & Education: Beegraphy Design Awards Introduces 7th Category (Featuring Jiyun's Innovative Approach)
publishedNews1 year ago
From Parametric Lighting to Urban Furniture: Join the 2nd Workshop in Beegraphy’s Computational Design Series
publishedNews2 years ago
Introducing Sphere by UNI: Pioneering a New Era in AEC Industry

Explore Architecture Competitions

Discover active competitions in this discipline

UNI Editorial
Search in