Montessori School Architecture in Prague: Duhovka Elementary School by ra15
Duhovka Elementary School showcases Montessori school architecture with flexible spaces, natural materials, and a child-focused educational environment.
A Thoughtful Expansion Rooted in Montessori Educational Values
The Duhovka Elementary School in Prague, designed by ra15, represents a compelling example of modern Montessori school architecture. Completed in 2024, this 7,210-square-meter expansion enhances both the educational philosophy and architectural character of the Czech-English Montessori school. The project prioritizes autonomy, adaptability, and well-being—core tenets of Montessori education—while addressing spatial and urban constraints with sensitivity and precision.




Enhancing the Learning Environment through Design
The design acknowledges that educational settings significantly influence how children learn, interact, and grow. In alignment with the Montessori principle of "Help me do it myself," the architecture fosters independence and encourages exploration. The new facilities include additional classrooms, a gymnasium, and specialized spaces for art and science, all conceived to meet the mental developmental needs of students during their most sensitive learning phases.



Integration with the Urban Fabric
The architectural expansion responds to the context of the existing building and surrounding neighborhood. The third-floor addition is recessed to reduce visual impact and respect the original two-story structure’s proportions. A gymnasium and avant-corps extension have been shaped to blend with the site’s spatial limitations, offering new terraces that connect directly with indoor learning spaces such as the corridors, art studio, and science lab.



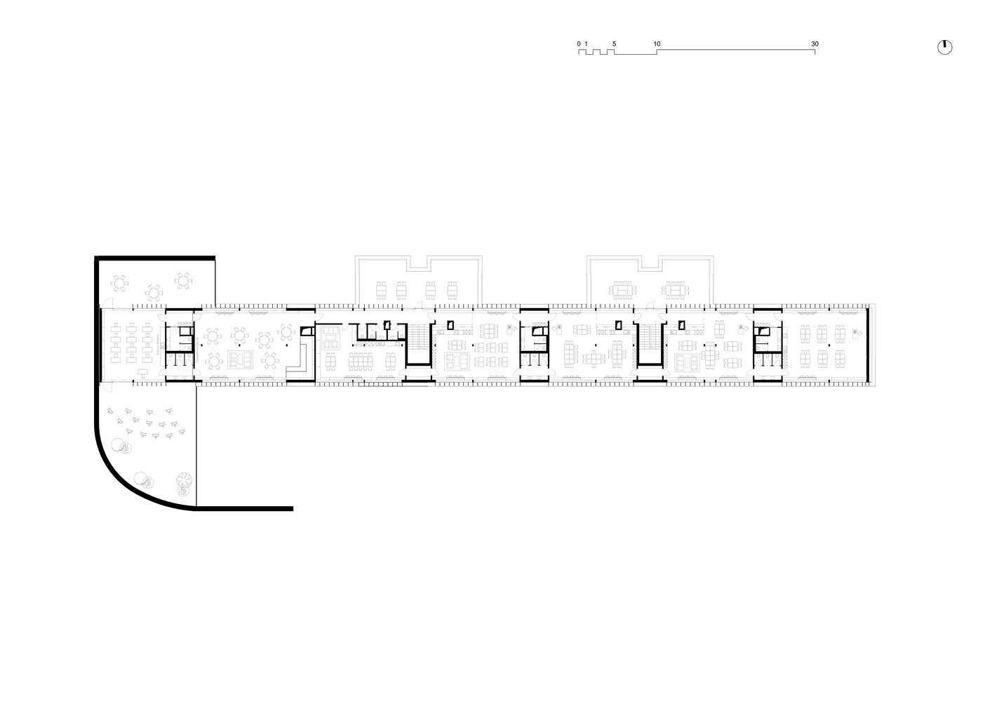
Flexible Classrooms and Child-Centered Layout
Unlike traditional schools, the Montessori method requires a flexible and open spatial arrangement. At Duhovka, each pair of core classrooms is interconnected, allowing students to move freely between them and facilitating fluid, individualized instruction. The classrooms integrate personal lockers, kitchenettes, and relaxation zones while maintaining open layouts that accommodate diverse teaching approaches. The sanitary facilities are strategically located between classrooms to ensure efficient use of space.



Natural Materials for an Inviting Atmosphere
In keeping with the structural capacity of the existing building, the vertical extension is constructed with a wooden frame that remains exposed inside, adding warmth and tactile engagement. Wood continues throughout the interiors, including built-in furniture and gymnasium wall cladding. Combined with glass, these materials enhance natural light, acoustics, and visual clarity. On the exterior, both the gym and classroom additions are clad in durable metal panels—designed to mimic wooden shingles and vertical louvers—creating texture and dynamic contrast against the solid massing of the original structure.



Spaces that Foster Creativity and Movement
The architecture supports a holistic approach to education by integrating creative and active spaces. The new art studio and science lab connect to the outdoors through large terraces that extend classroom activities beyond traditional walls. The gymnasium, positioned adjacent to an outdoor playground, allows seamless transitions between indoor sports and outdoor recreation. Its open, embrace-like form invites movement and interaction, reinforcing the Montessori belief in experiential and self-guided learning.




A Modern Educational Environment for Future Generations
The Duhovka Elementary School extension by ra15 is a benchmark in Montessori school architecture. With its emphasis on autonomy, adaptability, and environmental harmony, it delivers a forward-thinking learning environment that responds not only to architectural challenges but also to pedagogical needs. By creating inviting, light-filled, and functionally diverse spaces, the design turns learning into an engaging, joyful journey—one that empowers students and supports educators in equal measure.



All photographs are works of Radek Úlehla
Popular Articles
Popular articles from the community
A Contemporary Take on Iranian Residential Architecture
A modern interior design in Mashhad that reinterprets brick, light, and spatial flow to create a warm, contemporary residential architecture.
The Ken Roberts Memorial Delineation Competition (Krob)
As the most senior architectural drawing competition currently in operation anywhere in the world, it draws hundreds of entries each year, awarding the very best submissions in a series of medium-based categories.
Flamboyant House by Juliana Camargo + Prumo Projetos
Modern Brazilian house integrating existing tree, pool, and volumes with glass, wood, and transitional spaces blending interior, exterior, and landscape seamlessly.
On the Brooks House by Monsoon Collective – A Contemporary Kerala Home Rooted in Tradition
Kerala home blending tradition and modernity with water-inspired design, brick architecture, courtyard planning, and sustainable rainwater harvesting strategies.
Similar Reads
You might also enjoy these articles
Bamboo Housing Challenge 2026: Design Affordable, Sustainable Homes Using Bamboo
An international design competition by Bamboo U and IBUKU inviting architects and designers to reimagine affordable housing using bamboo — with the winning design built full-scale in Bali.
Computational Design & Education: Beegraphy Design Awards Introduces 7th Category (Featuring Jiyun's Innovative Approach)
Dive into Beegraphy’s 7th Design Awards category, where computational design meets education to create immersive, interactive learning tools, inspired by Jiyun’s work.
From Parametric Lighting to Urban Furniture: Join the 2nd Workshop in Beegraphy’s Computational Design Series
Dive into Cutting-Edge Design Techniques and Practical Applications with Industry Experts
Introducing Sphere by UNI: Pioneering a New Era in AEC Industry
Unlocking Global Potential with BIM and Agile Management
Explore Architecture Competitions
Discover active competitions in this discipline
The International Standard for Design Portfolios
The Global Benchmark for Architecture Dissertation Awards
The Global Benchmark for Graduation Excellence
Challenge to reimagine the Iron Throne
Comments (0)
Please login or sign up to add comments
No comments yet. Be the first to comment!