Musical Center "Hòa Âm": A Symphony of Sustainable Design and Vietnamese Culture
An in-depth exploration of the Musical Center "Hòa Âm," focusing on sustainable architecture and cultural integration.
The Musical Center "Hòa Âm," designed by Daniela Pachacama and shortlisted entry in the Save Song Competition, is a remarkable example of how contemporary architecture can harmonize with its natural surroundings while promoting local culture. This article delves into the project's innovative design, emphasizing its sustainable architecture, functional adaptability, and cultural significance.

Architectural Concept
The design of the Musical Center "Hòa Âm" is rooted in the desire to seamlessly integrate with the surrounding landscape. The project's primary goal is to adapt to the needs of its users while maximizing the use of natural resources. Water plays a pivotal role in the design, not only as a visual element but also as a means to create a sense of lightness and fluidity within the concrete structures. The incorporation of urban voids and courtyards establishes a visual connection between Lake Tây Hồ and Lake Đầm Trị, enhancing the site's natural beauty.

Sustainable Design Elements
The project's sustainable design is evident in its use of water and vegetation. Various water features are strategically placed to give the impression that the buildings float, reducing the visual weight of the concrete. Additionally, water bodies at different levels diversify the use of this resource, contributing to the building's environmental harmony. A detailed vegetation study ensured that the plant species chosen would enhance the site's aesthetic and provide shade, reflecting the project's commitment to environmental sustainability.

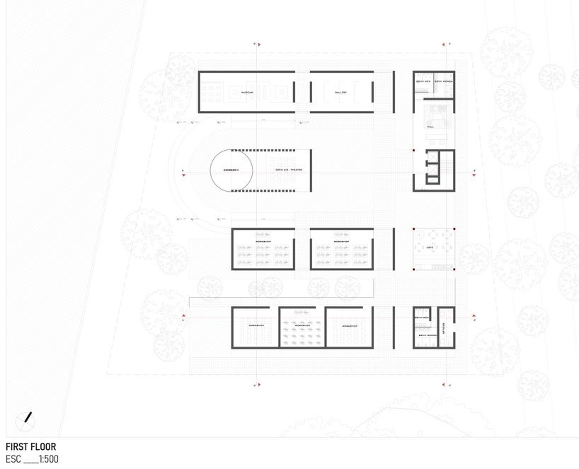
Functional Composition
The functional composition of the Musical Center is meticulously planned to support the revival and promotion of the Ca trù musical tradition. The center includes dedicated spaces for teaching and performing this unique Vietnamese art form. Key facilities include workshops with interior decorations inspired by Hanoi's culture, a museum, and a gallery for both permanent and temporary exhibitions. An open-air theater surrounded by an aquarium, an underground auditorium, and a recording studio are also integral parts of the design, all tailored to enhance the cultural experience of visitors.

Materiality and Aesthetic
The choice of materials plays a fundamental role in the project’s aesthetic and environmental integration. Exposed concrete facades are complemented by metal framing and glass, creating a modern yet harmonious look that blends with the natural surroundings. The interiors feature contemporary wooden furniture and artworks that add warmth and character to the space, creating inviting environments for both cultural activities and relaxation.

Architectural Organization
Modularity and simplicity in circulation are key aspects of the architectural organization. Single-story longitudinal elements define interior courtyards, which serve as both circulation and external viewing spaces. The east wing, featuring two-story buildings with glass facades, marks the main entrances and integrates the interior spaces with the surrounding environment. Underground areas, such as the auditorium and recording studios, are designed to function efficiently without natural light, utilizing a longitudinal corridor that benefits from natural light redirected from the main water feature above.

Solar Utilization and Light Management
The design includes strategically placed façade and roof perforations to maximize natural light penetration. These elements are designed to ensure that both direct and indirect light enhances the interior spaces, creating a peaceful and harmonious atmosphere. The main courtyard's water feature further facilitates natural light entry into the underground areas, showcasing a thoughtful approach to light management.

Cultural and Tourism Impact
The Musical Center "Hòa Âm" aims to be a multifunctional space that adapts to the evolving needs of its users. As one of the few cultural centers designed in Hanoi, it is expected to attract both local residents and tourists, thereby boosting cultural engagement and tourism in the city. The project's design ensures that it remains relevant and functional, contributing to the ongoing evolution of architecture and culture.

The Musical Center "Hòa Âm" stands as a testament to the harmonious integration of sustainable architecture and cultural promotion. By blending innovative design with environmental consciousness, Daniela Pachacama has created a space that not only serves its functional purpose but also enhances the cultural and natural landscape of Hanoi. This project exemplifies how sustainable architecture can pave the way for future developments that respect and enhance their surroundings while fostering cultural heritage.

Popular Articles
Popular articles from the community
An Miên Lumière Cafe by xưởng xép, Ho Chi Minh City, Vietnam
An industrial-inspired café where layered steel and warm light create a dynamic, immersive environment shaped by reflection, depth, and perception.
Treehouse Apartment: A Warm Timber Interior Blending Craft, Play, and Contemporary Living
Warm timber apartment with integrated treehouse, combining natural materials, craftsmanship, and playful design to create a flexible, family-oriented living environment.
The Ken Roberts Memorial Delineation Competition (Krob)
As the most senior architectural drawing competition currently in operation anywhere in the world, it draws hundreds of entries each year, awarding the very best submissions in a series of medium-based categories.
Atelier Macri Concept Store Interior Design by CASE-REAL
Atelier Macri store features a "ko" counter, walnut wood details, cork displays, blending retail, gallery, and seamless customer experiences.
Similar Reads
You might also enjoy these articles
The Ken Roberts Memorial Delineation Competition (Krob)
As the most senior architectural drawing competition currently in operation anywhere in the world, it draws hundreds of entries each year, awarding the very best submissions in a series of medium-based categories.
A Contemporary Take on Iranian Residential Architecture
A modern interior design in Mashhad that reinterprets brick, light, and spatial flow to create a warm, contemporary residential architecture.
Franche-Comté Advanced School of Engineering by Dominique Coulon & associés, Besançon
A flexible engineering school immersed in woodland, combining concrete minimalism, adaptable spaces, and natural light to support evolving educational environments.
Documentation Work on Buddhist Wooden Temple
Architectural syncretism and cultural hybridity: A comparative study of the Buddhist temples in Chattogram Hill tracks
Explore Architecture Competitions
Discover active competitions in this discipline
The International Standard for Design Portfolios
The Global Benchmark for Architecture Dissertation Awards
The Global Benchmark for Graduation Excellence
Challenge to reimagine the Iron Throne
Comments (0)
Please login or sign up to add comments
No comments yet. Be the first to comment!