Nabi House: A Masterpiece of Triangular Residential Architecture by Todot Architects and Partners
This article explores Nabi House, a striking triangular residential architecture blending city life and nature on a challenging urban site.
Introduction to Nabi House
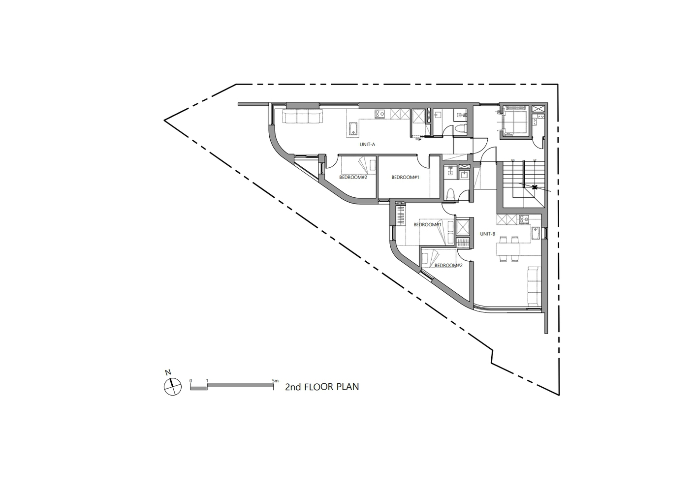
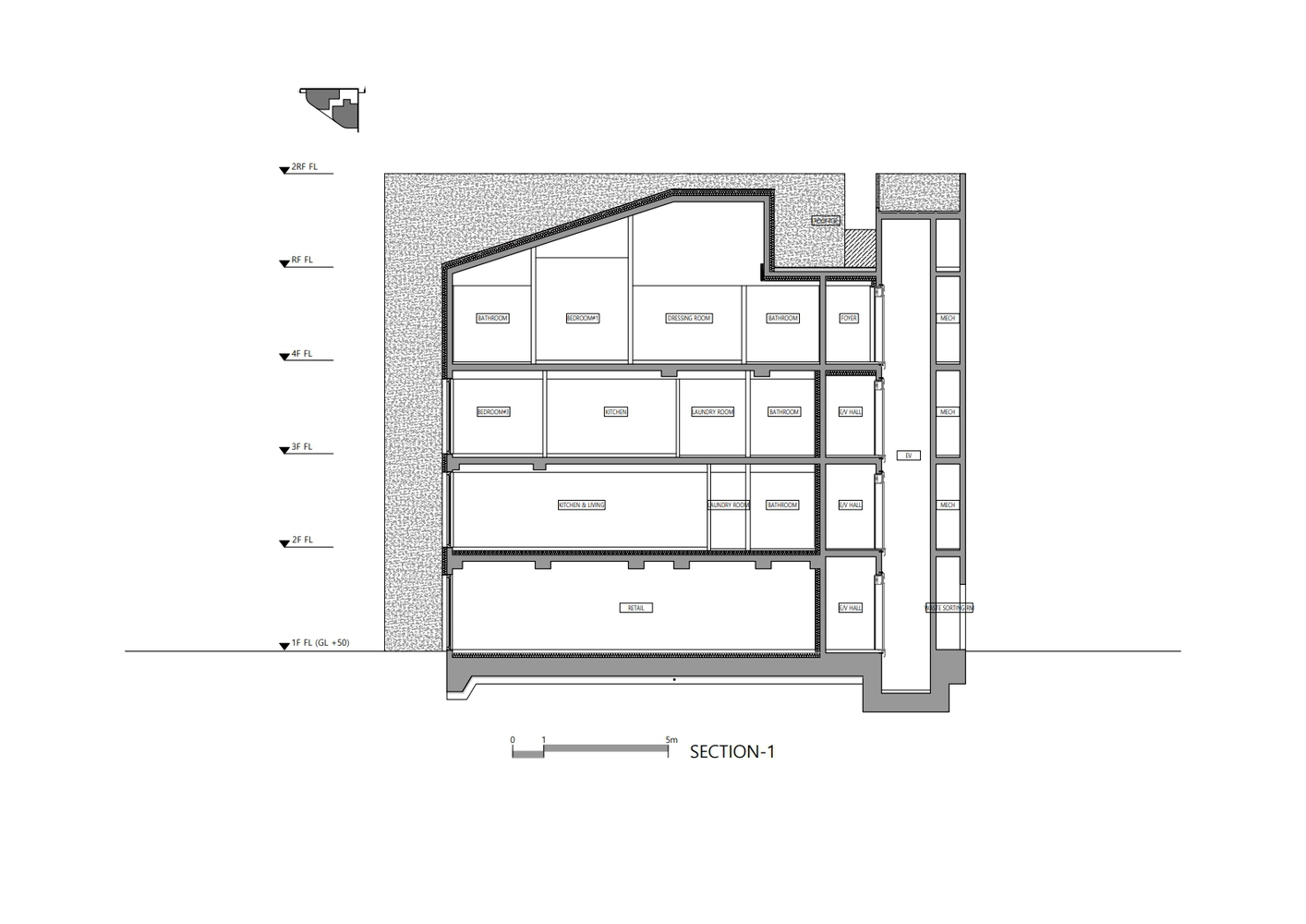
Nabi House, designed by Todot Architects and Partners, is a striking example of triangular residential architecture located on the fringe between urban bustle and serene nature in South Korea. Completed in 2025, this four-story mixed-use building spans 483 m² and elegantly responds to the challenges of its unique triangular site. The project harmoniously blends neighborhood commercial spaces with private and rental housing, creating a vibrant architectural expression that balances city life and natural surroundings.




Context and Site: The Power of a Triangle
The triangular plot posed both a challenge and an opportunity. While many might see such land as insufficient or inconvenient, the architects saw potential in its long sides and its positioning between a busy 25-meter-wide road and a gentle wooded hill. The neighborhood's duality, marked by sparse industrial buildings to the north and calming forested landscapes to the south, shaped the house’s dual character.


The north and east facades face the city's harshness with solid L-shaped concrete walls, creating a unified, robust exterior. These walls mute the distinction between floors and focus visual attention on the commercial space at street level. In contrast, the southern and western facades soften toward nature, featuring curved, stacked forms that suggest movement and organic flow. This deliberate contrast reinforces the building’s connection to both city and nature.



Architectural Form: Layers of Function and Design
Nabi House’s layered massing elegantly accommodates multiple uses. The recessed middle floors expand the owner's fourth-floor living unit, while creating eaves and terraces that shelter and enrich the spaces below. Each residential unit benefits from its strategic configuration, offering protective overhangs, open verandas, and visual access to green surroundings.



The building’s overall composition transforms the sharp triangular corner into a striking architectural feature, where contrasting facades meet in a bold statement of form. Rather than being an awkward leftover space, the corner becomes a symbol of the project's innovative spirit, blending solidity and softness, city and nature.



Design Narrative: Inspired by Nature
The architects drew inspiration from silkworm cocoons clinging to branches, envisioning the building as a protective, nurturing form that would shape and transform the lives within it. They likened the living experience here to a pop-up card that reveals hidden dimensions, offering a dynamic, three-dimensional daily life rather than a flat, repetitive routine.



The poetic vision extends to a dream where all inhabitants eventually transform, like larvae in cocoons, into white butterflies—a metaphor for growth, change, and memory. This dream infuses the project with a sense of hope and emotional depth, grounding its modern design in a deeply human narrative.



Materiality and Experience
Concrete, wood, glass, and carefully considered lighting create an interior and exterior experience that balances raw strength with warmth and intimacy. The robust concrete facades shield against urban noise, while the southern-facing terraces and curves invite natural light and landscape into the living spaces. Interior details—such as wooden finishes, elegant lighting, and carefully curated spatial transitions—make the daily life of residents rich and varied.



The building’s thoughtful combination of mixed uses supports both private family life and broader community engagement. The ground-level commercial space anchors the building in its urban context, while the upper residential units create a cocoon-like retreat above the city’s activity.



A Triumph of Triangular Residential Architecture
Nabi House is more than just a clever solution to a difficult plot; it is a triumph of triangular residential architecture that celebrates contrast, transformation, and the delicate balance between urban and natural environments. Todot Architects and Partners have crafted a home and commercial space that not only meets practical needs but also tells a meaningful story about place, memory, and metamorphosis.



All Photographs are works of Choi Jinbo
Popular Articles
Popular articles from the community
The Ken Roberts Memorial Delineation Competition (Krob)
As the most senior architectural drawing competition currently in operation anywhere in the world, it draws hundreds of entries each year, awarding the very best submissions in a series of medium-based categories.
Solar Steam: A Climate-Responsive Architecture That Redefines the Monument
A climate-responsive memorial architecture that transforms heat, decay, and time into a living system reflecting humanity’s ecological impact.
Inverted Architecture Installation by Studio Link-Arc: Exploring the Intersection of Architecture and Living Organisms
Inverted Architecture Installation by Studio Link-Arc blends mycelium, sustainability, inverted design, ecological cycles, and urban adaptive architecture in Shenzhen.
Flamboyant House by Juliana Camargo + Prumo Projetos
Modern Brazilian house integrating existing tree, pool, and volumes with glass, wood, and transitional spaces blending interior, exterior, and landscape seamlessly.
Similar Reads
You might also enjoy these articles
Bamboo Housing Challenge 2026: Design Affordable, Sustainable Homes Using Bamboo
An international design competition by Bamboo U and IBUKU inviting architects and designers to reimagine affordable housing using bamboo — with the winning design built full-scale in Bali.
Computational Design & Education: Beegraphy Design Awards Introduces 7th Category (Featuring Jiyun's Innovative Approach)
Dive into Beegraphy’s 7th Design Awards category, where computational design meets education to create immersive, interactive learning tools, inspired by Jiyun’s work.
From Parametric Lighting to Urban Furniture: Join the 2nd Workshop in Beegraphy’s Computational Design Series
Dive into Cutting-Edge Design Techniques and Practical Applications with Industry Experts
Introducing Sphere by UNI: Pioneering a New Era in AEC Industry
Unlocking Global Potential with BIM and Agile Management
Explore Architecture Competitions
Discover active competitions in this discipline
The International Standard for Design Portfolios
The Global Benchmark for Architecture Dissertation Awards
The Global Benchmark for Graduation Excellence
Challenge to reimagine the Iron Throne
Comments (0)
Please login or sign up to add comments
No comments yet. Be the first to comment!