Participatory Social Housing Architecture in Crolles by INDY ARCHITECTES
A collaborative housing project in Crolles showcasing participatory social housing architecture through co-design, sustainability, and community-centric spaces.
A Collaborative Housing Model Rooted in Community Engagement
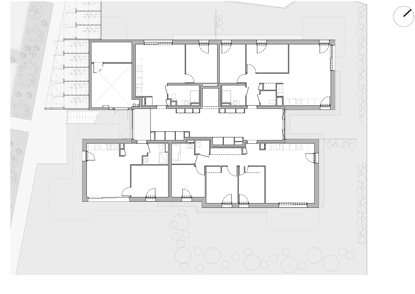
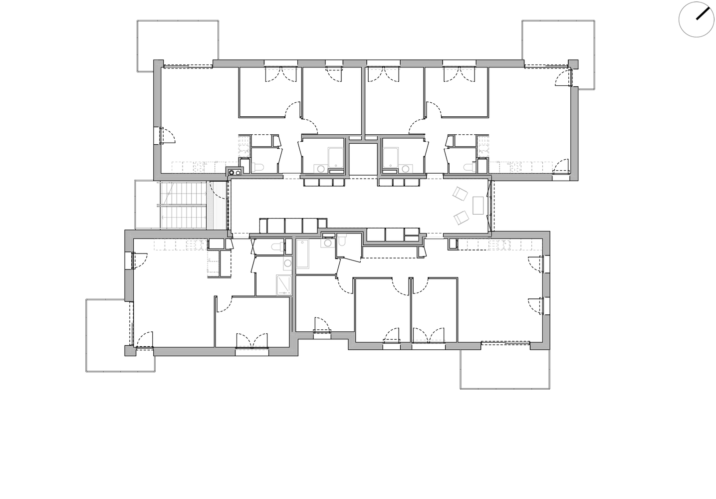
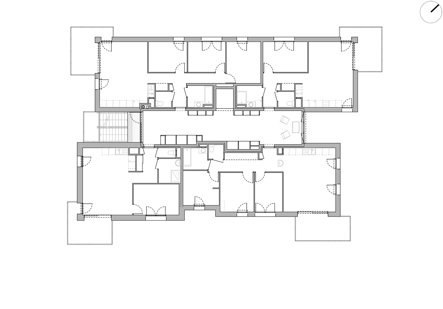
Located in the scenic Isère Valley of Crolles, France, the participatory social housing project designed by INDY ARCHITECTES embodies a transformative approach to residential design through co-creation and sustainable living. This 15-unit development offers a unique blend of architectural typologies, with homes ranging from one-bedroom units to four-bedroom duplexes. Set against the breathtaking backdrop of the Chartreuse and Belledonne mountain ranges, the project is a direct result of a collaborative effort between the municipality, a social housing provider, and future residents themselves.





Architecture Through Co-Design: A Community-Driven Process
At the core of the project lies a participatory process, where future residents actively contributed to the design through thematic workshops. This method of co-design shaped everything from the spatial configuration to the orientation of the balconies and the size and arrangement of facade openings. The result is a compact yet highly individualized architectural form that merges elements of individual, intermediate, and collective housing, giving the project both coherence and diversity.





Material Strategy and Structural Composition
The building’s structure is composed of a sustainable mix of materials, including concrete, thermal brick, and wood. These materials were selected not only for their ecological performance but also to balance structural integrity and visual warmth. Wood accents highlight interior common spaces and balconies, enhancing the tactile and sensory experience of residents while contributing to a warm, human-scaled aesthetic.



Balconies and Orientation: Embracing the Landscape
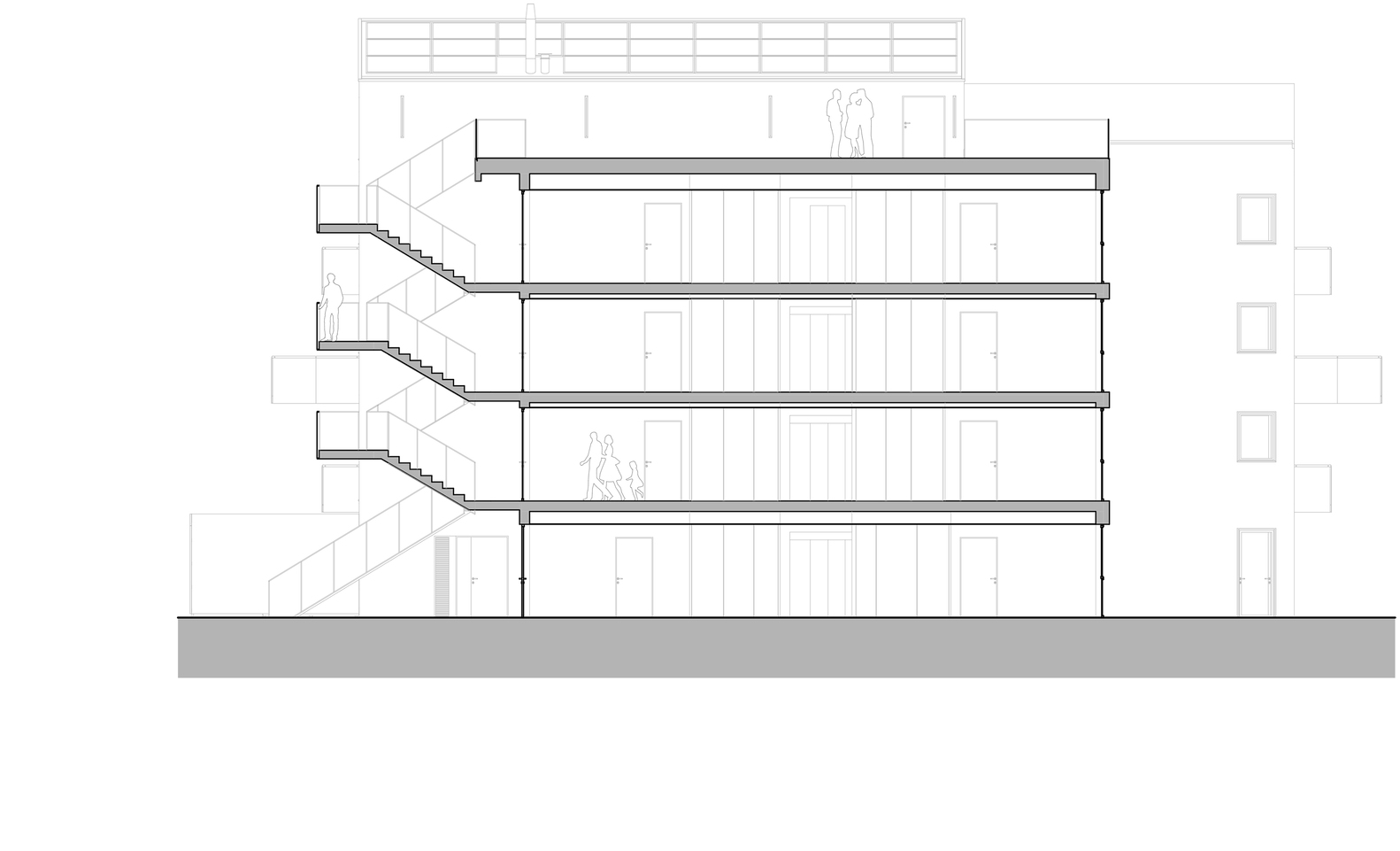
A defining architectural feature of this project is its large, corner-positioned balconies. These generous outdoor extensions enable bi- and tri-oriented housing units that open up to panoramic views of the surrounding natural landscape. This thoughtful orientation fosters a strong connection between the interior and exterior, enhancing daylight, cross-ventilation, and overall living comfort.



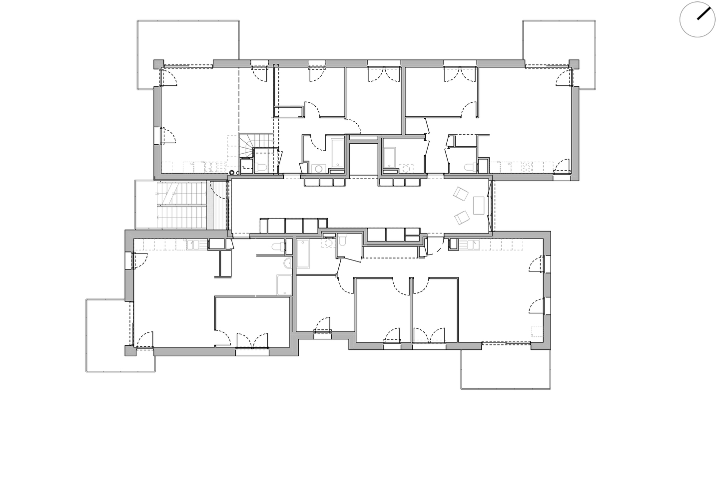
Shared Central Spaces and Community Life
Each floor is accessible via an external staircase leading to a central common area shared by the four adjacent apartments. These communal zones serve as extensions of the private homes and are equipped with built-in storage and shared utilities such as washing machines and freezers. Residents have adapted these areas into personalized zones for reading, coworking, or children’s play—demonstrating the building's flexibility and communal ethos.



Flexible Layouts and Adaptive Use
Adaptability is a key principle in the project’s spatial planning. Some partitions between apartments can be removed in the future to accommodate evolving needs, from growing families to shared living arrangements. On the ground floor, a versatile communal space functions like a small apartment and can be used for hosting guests, holding meetings, or conducting community events.


Rooftop and Environmental Integration
The rooftop terrace, designed as a panoramic communal space, features a photovoltaic pergola that generates electricity while providing passive cooling during warmer months. At the building's base, landscaped green spaces include a communal garden with fruit trees, a vegetable plot, and composting facilities. These elements reinforce a strong ethos of sustainability and environmental stewardship.


Sustainable Amenities and Eco-Conscious Infrastructure
Every apartment is paired with individual bike storage and an outdoor wood-frame cellar, along with designated parking. Rainwater harvesting systems capture runoff from the roof and repurpose it for garden irrigation, further reducing the ecological footprint of the development. The architecture thus becomes a facilitator for green lifestyles, embedding sustainability in everyday routines.



Redefining Participatory Social Housing Architecture
The participatory social housing architecture in Crolles redefines what it means to live collectively. By empowering residents to shape their living environments and integrating shared, flexible spaces with environmentally responsible design strategies, INDY ARCHITECTES has crafted a model that champions inclusivity, adaptability, and a deeper connection to community and place.


All Photographs are works of Laura Lyson
Popular Articles
Popular articles from the community
On the Brooks House by Monsoon Collective – A Contemporary Kerala Home Rooted in Tradition
Kerala home blending tradition and modernity with water-inspired design, brick architecture, courtyard planning, and sustainable rainwater harvesting strategies.
Treehouse Apartment: A Warm Timber Interior Blending Craft, Play, and Contemporary Living
Warm timber apartment with integrated treehouse, combining natural materials, craftsmanship, and playful design to create a flexible, family-oriented living environment.
A Contemporary Take on Iranian Residential Architecture
A modern interior design in Mashhad that reinterprets brick, light, and spatial flow to create a warm, contemporary residential architecture.
An Miên Lumière Cafe by xưởng xép, Ho Chi Minh City, Vietnam
An industrial-inspired café where layered steel and warm light create a dynamic, immersive environment shaped by reflection, depth, and perception.
Similar Reads
You might also enjoy these articles
The Ken Roberts Memorial Delineation Competition (Krob)
As the most senior architectural drawing competition currently in operation anywhere in the world, it draws hundreds of entries each year, awarding the very best submissions in a series of medium-based categories.
Waterfront Redevelopment and Urban Revitalization in Mumbai: Forging a New Dawn for Darukhana
A transformative waterfront redevelopment project reimagining Darukhana’s shipbreaking heritage into an inclusive urban future.
OUT-OF-MAP: A Call for Postcards on Feminist Narratives of Public Space
Rhizoma Design and Research Lab invites artists, designers, architects, researchers, and students to reflect on how feminist perspectives can reshape public space. Selected works will be exhibited in Barcelona, October 2026. Submissions open until 15 April 2026.
Documentation Work on Buddhist Wooden Temple
Architectural syncretism and cultural hybridity: A comparative study of the Buddhist temples in Chattogram Hill tracks
Explore Architecture Competitions
Discover active competitions in this discipline
The International Standard for Design Portfolios
The Global Benchmark for Architecture Dissertation Awards
The Global Benchmark for Graduation Excellence
Challenge to reimagine the Iron Throne
Comments (0)
Please login or sign up to add comments
No comments yet. Be the first to comment!