Path Art Studio and Personalized Residence: A Model of Sustainable Artist Studio Design
This article explores the Path Art Studio’s sustainable design, emphasizing its integration of nature, passive cooling, and artistic inspiration.
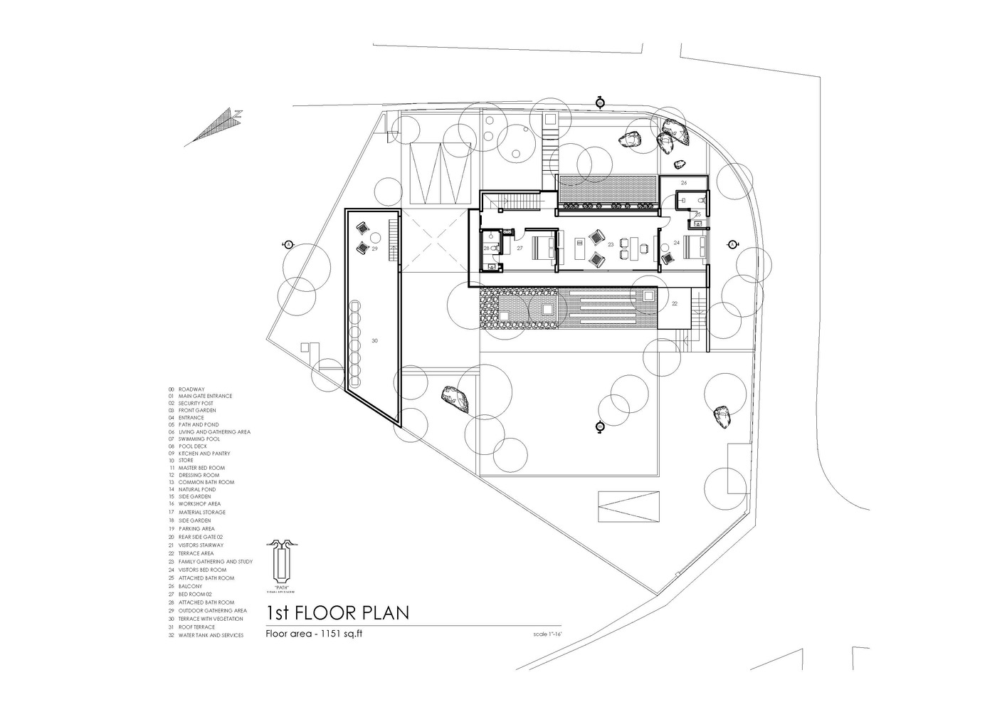
Merging Nature, Art, and Architecture
The Path Art Studio and Personalized Residence, designed by Dishna Thilanka Architects, is a masterful example of sustainable artist studio design. Situated on the urban fringe of Maharagama, Sri Lanka, this 3,149-square-foot project seamlessly integrates an art studio and residence, catering to the creative and functional needs of a renowned metal sculptor. The design fosters an uninterrupted dialogue between nature, space, and artistic expression, creating an inspiring environment that nurtures creativity while maintaining environmental responsibility.



A Design Rooted in Environmental Sensitivity
From its conceptualization, the project was envisioned as a passive-cooled structure that minimizes environmental disruption. The architects prioritized preserving the site’s mature trees and green cover, ensuring a symbiotic relationship between the built form and its natural surroundings. The structure weaves through the landscape, maintaining an ideal microclimate and significantly reducing the ecological footprint.


The building’s orientation is carefully aligned with the solar axis to maximize natural lighting while preventing excessive heat gain. This strategic solar positioning enhances thermal comfort, reducing reliance on artificial cooling systems and reinforcing the principles of sustainable artist studio design.


A Material Palette That Echoes Artistic Expression
Material selection plays a crucial role in reflecting the artistic essence of the project. The residence and studio employ an earthy palette comprising granite, textured cement, natural wood, and metal. These elements echo the sculptor’s artistic philosophy, blending the ruggedness of raw materials with the elegance of refined craftsmanship.



The stone-clad ground floor seamlessly merges with the landscape, while integrated water features enhance cooling and add a meditative quality to the space. These elements work together to create a tranquil atmosphere, where air and light flow effortlessly through strategically placed openings. This integration of natural cooling techniques aligns with the project’s commitment to sustainability.



Architectural Language and Spatial Organization
The design is defined by intersecting linear planes and cubes, forming a geometric composition that prioritizes clarity and function. The pavilion-style open layout dissolves barriers between the interior and exterior, allowing the artist to remain immersed in nature. This architectural approach enhances creative inspiration, reinforcing the connection between art and the environment.


Natural light and shadow play a significant role in shaping the spatial experience. Carefully positioned fenestration ensures an ever-changing interplay of illumination, while concealed service areas maintain a clean and minimal aesthetic. The roof is designed to accommodate solar panels, reinforcing the project’s sustainability ethos without compromising architectural integrity.


Addressing Sustainability and Urban Resilience
Beyond aesthetics, the design serves a larger environmental and societal purpose. By reducing the building’s footprint, it counteracts the loss of vegetation and mitigates the urban heat island effect—a growing concern in rapidly urbanizing areas. The preserved landscape positively influences the local microclimate, benefiting not only the residence but also its neighboring properties.

Water conservation and passive ventilation strategies further enhance sustainability. Cross-ventilation is facilitated through strategically placed openings, reducing the reliance on mechanical systems. The project exemplifies how sustainable artist studio design can contribute to a greener urban future while providing an optimal workspace for creative professionals.

An Atmosphere Conducive to Creativity and Reflection
The Path Art Studio and Personalized Residence is more than just a built environment; it is a sanctuary where art, nature, and sustainability converge. The material palette and spatial openness create an ambiance of serenity, allowing the sculptor to engage deeply with his artistic practice. The surrounding greenery acts as a continuous source of inspiration, reinforcing the connection between artistic expression and the natural world.


The integration of sustainability and design excellence transforms this project into an architectural statement—one that speaks to the evolving relationship between creativity, environmental consciousness, and modern living. The residence and studio serve as a reminder that sustainable architecture is not merely about reducing impact but about enhancing the quality of life and fostering meaningful artistic journeys.

A Blueprint for Sustainable Artistic Spaces
The Path Art Studio and Personalized Residence is a benchmark in sustainable artist studio design. Through a harmonious blend of environmental awareness, artistic sensitivity, and functional clarity, Dishna Thilanka Architects have created a space that elevates both art and architecture. This project stands as a compelling example of how built spaces can nurture creativity while advocating for sustainability in contemporary design.


All Photographs are works of Ganidu Balasuriya
Popular Articles
Popular articles from the community
Flamboyant House by Juliana Camargo + Prumo Projetos
Modern Brazilian house integrating existing tree, pool, and volumes with glass, wood, and transitional spaces blending interior, exterior, and landscape seamlessly.
On the Brooks House by Monsoon Collective – A Contemporary Kerala Home Rooted in Tradition
Kerala home blending tradition and modernity with water-inspired design, brick architecture, courtyard planning, and sustainable rainwater harvesting strategies.
An Miên Lumière Cafe by xưởng xép, Ho Chi Minh City, Vietnam
An industrial-inspired café where layered steel and warm light create a dynamic, immersive environment shaped by reflection, depth, and perception.
Inverted Architecture Installation by Studio Link-Arc: Exploring the Intersection of Architecture and Living Organisms
Inverted Architecture Installation by Studio Link-Arc blends mycelium, sustainability, inverted design, ecological cycles, and urban adaptive architecture in Shenzhen.
Similar Reads
You might also enjoy these articles
The Ken Roberts Memorial Delineation Competition (Krob)
As the most senior architectural drawing competition currently in operation anywhere in the world, it draws hundreds of entries each year, awarding the very best submissions in a series of medium-based categories.
Waterfront Redevelopment and Urban Revitalization in Mumbai: Forging a New Dawn for Darukhana
A transformative waterfront redevelopment project reimagining Darukhana’s shipbreaking heritage into an inclusive urban future.
OUT-OF-MAP: A Call for Postcards on Feminist Narratives of Public Space
Rhizoma Design and Research Lab invites artists, designers, architects, researchers, and students to reflect on how feminist perspectives can reshape public space. Selected works will be exhibited in Barcelona, October 2026. Submissions open until 15 April 2026.
Documentation Work on Buddhist Wooden Temple
Architectural syncretism and cultural hybridity: A comparative study of the Buddhist temples in Chattogram Hill tracks
Explore Architecture Competitions
Discover active competitions in this discipline
The International Standard for Design Portfolios
The Global Benchmark for Architecture Dissertation Awards
The Global Benchmark for Graduation Excellence
Challenge to reimagine the Iron Throne
Comments (0)
Please login or sign up to add comments
No comments yet. Be the first to comment!