Restaurant Architecture Design in Bandung: Exploring Circolo Restaurant and Bar by Simpul Studio
Explore Circolo Restaurant and Bar in Bandung, a stunning example of restaurant architecture design that merges indoor and outdoor spaces.
Bandung, known for its vibrant culinary scene and creative community, is home to some of the most aesthetically pleasing and functionally innovative restaurant designs in Indonesia. Circolo Restaurant and Bar is a prime example of restaurant architecture design in Bandung that combines modern aesthetics with functional design to create an inviting and dynamic dining experience.




Overview of Circolo Restaurant and Bar
Project Context and Vision
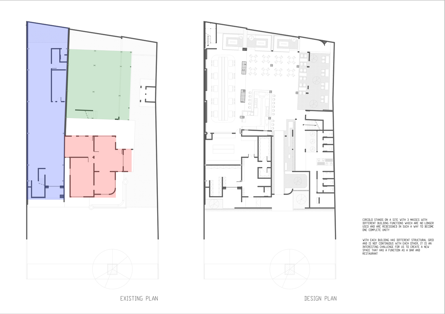
Located in the northern part of Bandung City, Circolo Restaurant and Bar stands on a 1080 m² site that was transformed from a defunct office and commercial building into a unified and lively space. The renovation by Simpul Studio aimed to repurpose the existing structures into a cohesive entity that encourages social interaction and a seamless flow between indoor and outdoor environments.


Design and Construction
The architectural approach involved creating a large central opening connected by a bridge, which now serves as the main circulation path for guests. This design choice not only enhances the spatial experience but also integrates the three main building masses into a singular functional space.


Key Architectural Features
Spatial Layout and Ambiance
The entrance of the restaurant features wide, long corridors that introduce guests to a spacious environment, enriched with natural sunlight filtered through side curtains. This setup creates captivating light and shadow plays, leading visitors towards the heart of the restaurant. The centerpiece is a two-story bar area with a glass block wall that radiates as a visual focal point visible from various angles within the space.


Materiality and Aesthetic Choices
Circolo’s interior combines natural elements like wood with modern materials such as glass and textured beige walls. Wooden accents on structural pillars and beams, along with strategic mirror placements, amplify the space's natural ambiance and visual depth. These elements collectively foster a warm and welcoming atmosphere for diners.


Integration of Indoor and Outdoor Elements
Open Space Concept
The primary concept behind Circolo is to provide a gathering space where barriers between the indoor and outdoor settings are minimized. This is achieved through architectural openness and the strategic use of materials and structural elements that promote an airy and inclusive environment.




Zoning and Privacy
Despite the open plan, the restaurant cleverly incorporates different zones ranging from public to private. The design includes VIP areas with varied elevations to enhance privacy, and sofa seating on the second floor, delineating a clear transition from more public spaces below.

A Model for Future Restaurant Designs
Circolo Restaurant and Bar by Simpul Studio sets a high standard for restaurant architecture design in Bandung. It exemplifies how thoughtful architectural interventions can transform ordinary buildings into extraordinary spaces that enhance the social and culinary experiences. For architects, designers, and restaurateurs, Circolo serves as an inspiration, demonstrating the potential of adaptive reuse in architecture and the importance of cohesive design in creating successful dining environments.







All photographs are work of Billy Prayoga
Popular Articles
Popular articles from the community
A Contemporary Take on Iranian Residential Architecture
A modern interior design in Mashhad that reinterprets brick, light, and spatial flow to create a warm, contemporary residential architecture.
The Ken Roberts Memorial Delineation Competition (Krob)
As the most senior architectural drawing competition currently in operation anywhere in the world, it draws hundreds of entries each year, awarding the very best submissions in a series of medium-based categories.
Treehouse Apartment: A Warm Timber Interior Blending Craft, Play, and Contemporary Living
Warm timber apartment with integrated treehouse, combining natural materials, craftsmanship, and playful design to create a flexible, family-oriented living environment.
Flamboyant House by Juliana Camargo + Prumo Projetos
Modern Brazilian house integrating existing tree, pool, and volumes with glass, wood, and transitional spaces blending interior, exterior, and landscape seamlessly.
Similar Reads
You might also enjoy these articles
Bamboo Housing Challenge 2026: Design Affordable, Sustainable Homes Using Bamboo
An international design competition by Bamboo U and IBUKU inviting architects and designers to reimagine affordable housing using bamboo — with the winning design built full-scale in Bali.
Computational Design & Education: Beegraphy Design Awards Introduces 7th Category (Featuring Jiyun's Innovative Approach)
Dive into Beegraphy’s 7th Design Awards category, where computational design meets education to create immersive, interactive learning tools, inspired by Jiyun’s work.
From Parametric Lighting to Urban Furniture: Join the 2nd Workshop in Beegraphy’s Computational Design Series
Dive into Cutting-Edge Design Techniques and Practical Applications with Industry Experts
Introducing Sphere by UNI: Pioneering a New Era in AEC Industry
Unlocking Global Potential with BIM and Agile Management
Explore Architecture Competitions
Discover active competitions in this discipline
The International Standard for Design Portfolios
The Global Benchmark for Architecture Dissertation Awards
The Global Benchmark for Graduation Excellence
Challenge to reimagine the Iron Throne
Comments (0)
Please login or sign up to add comments
No comments yet. Be the first to comment!