Revitalizing History: The Integration of Cultural Heritage Architecture in Xi'an at the Anrenfang Heritage Museum and Station
Explore the Anrenfang Heritage Museum and Station in Xi'an: a modern embodiment of cultural heritage architecture by DDB Architects.
Nestled in the heart of Xi'an, a city famed for its profound historical significance, the Anrenfang Heritage Museum and Anren Station emerge as quintessential models of cultural heritage architecture in Xi'an. Designed by the innovative minds at DDB Architects, this project spans 14,973 m², showcasing a respectful blend of ancient traditions and contemporary design principles.




Preserving History: The Architectural Philosophy
Respecting the Past
In a city like Xi'an, where every corner tells a story of its thirteen dynastic reigns, the Anrenfang Heritage Museum and Anren Station stand as testaments to the city's enduring legacy. The design strategy, conceived by lead architect Qingyi Ma, aims to maintain the integrity of Xi'an's historical narrative while integrating new structures into the fabric of urban life. This delicate balance between preservation and innovation highlights the importance of humility in the face of profound historical context.






Architectural Dialogue with the Small Wild Goose Pagoda
The project is strategically positioned to complement the historical and cultural context of the Small Wild Goose Pagoda and the Xi'an Museum. This approach ensures that the new museum and tourist service center assume a supplementary role, allowing the heritage site to maintain its prominence and significance.




Design Strategies: Merging History with Modernity
Urban Integration and Spatial Organization
DDB Architects embarked on a thoughtful planning process, transforming the complex urban background of Chang'an city into a modern narrative that respects historical patterns. The result is a harmonious sequence of city, square, and courtyard that echoes the Tang Dynasty's architectural ethos while serving contemporary urban functions.






The Vitality of Open Spaces
The project extends beyond the museum's walls to redefine public spaces in Xi'an. By translating ancient square walls and courtyards into modern landscapes, the architects have fostered a new form of public engagement, inviting the community to explore and interact with the city's rich history.

Innovations in Museum Design
Bridging Time Through Architecture
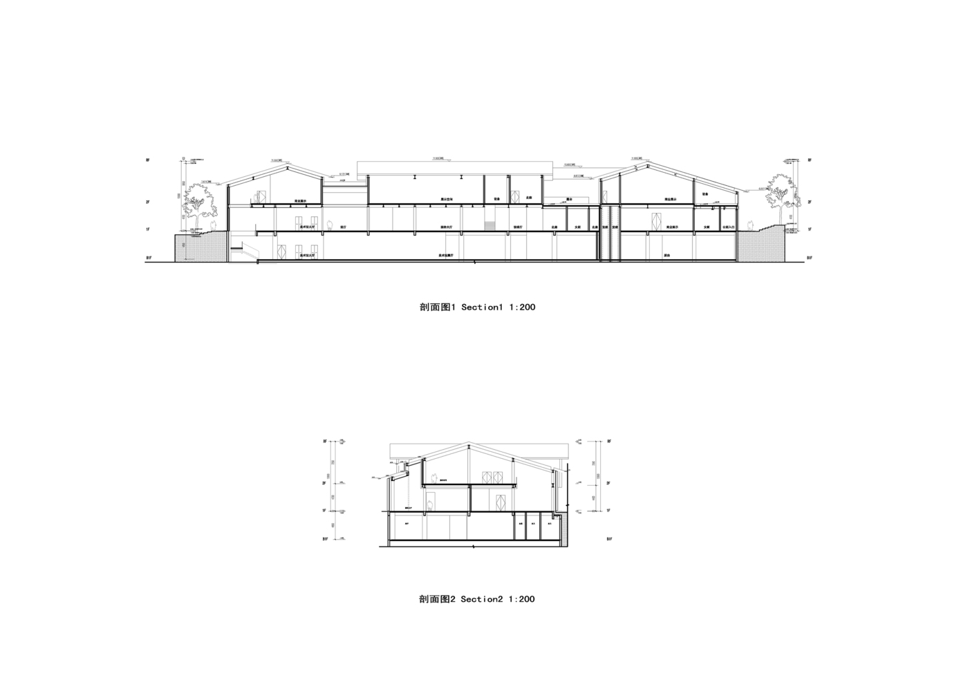
The Anrenfang Heritage Museum employs innovative design techniques to create a space where the past and present coexist. Visitors can traverse through time, thanks to the use of glass floors and strategic spatial planning, which provide immersive views of the ancient ruins beneath their feet.


Materiality and Cultural Expression
The material palette—comprising titanium-zinc metal plates, solid wood grilles, and glass curtain walls—was carefully selected to distinguish the contemporary museum structure from the historical ruins. This choice of materials not only respects the site's history but also contributes to a dialogue between old and new.




A New Chapter in Xi'an's Architectural Legacy
The Anrenfang Heritage Museum and Anren Station project by DDB Architects represents a landmark in cultural heritage architecture in Xi'an. By skillfully intertwining the threads of history with modern design, this project sets a precedent for future developments within the city and beyond. As Xi'an continues to evolve, projects like these ensure that its rich cultural heritage remains a living, breathing part of the urban landscape.






All photographs are work of Yan Zheng , Schran Image
Popular Articles
Popular articles from the community
Inverted Architecture Installation by Studio Link-Arc: Exploring the Intersection of Architecture and Living Organisms
Inverted Architecture Installation by Studio Link-Arc blends mycelium, sustainability, inverted design, ecological cycles, and urban adaptive architecture in Shenzhen.
Treehouse Apartment: A Warm Timber Interior Blending Craft, Play, and Contemporary Living
Warm timber apartment with integrated treehouse, combining natural materials, craftsmanship, and playful design to create a flexible, family-oriented living environment.
Flamboyant House by Juliana Camargo + Prumo Projetos
Modern Brazilian house integrating existing tree, pool, and volumes with glass, wood, and transitional spaces blending interior, exterior, and landscape seamlessly.
An Miên Lumière Cafe by xưởng xép, Ho Chi Minh City, Vietnam
An industrial-inspired café where layered steel and warm light create a dynamic, immersive environment shaped by reflection, depth, and perception.
Similar Reads
You might also enjoy these articles
The Ken Roberts Memorial Delineation Competition (Krob)
As the most senior architectural drawing competition currently in operation anywhere in the world, it draws hundreds of entries each year, awarding the very best submissions in a series of medium-based categories.
Waterfront Redevelopment and Urban Revitalization in Mumbai: Forging a New Dawn for Darukhana
A transformative waterfront redevelopment project reimagining Darukhana’s shipbreaking heritage into an inclusive urban future.
OUT-OF-MAP: A Call for Postcards on Feminist Narratives of Public Space
Rhizoma Design and Research Lab invites artists, designers, architects, researchers, and students to reflect on how feminist perspectives can reshape public space. Selected works will be exhibited in Barcelona, October 2026. Submissions open until 15 April 2026.
Documentation Work on Buddhist Wooden Temple
Architectural syncretism and cultural hybridity: A comparative study of the Buddhist temples in Chattogram Hill tracks
Explore Architecture Competitions
Discover active competitions in this discipline
The International Standard for Design Portfolios
The Global Benchmark for Architecture Dissertation Awards
The Global Benchmark for Graduation Excellence
Challenge to reimagine the Iron Throne
Comments (0)
Please login or sign up to add comments
No comments yet. Be the first to comment!