Rosemary Brown Recreation Centre: A Landmark Mass Timber Recreation Center
This article explores the Rosemary Brown Recreation Centre, a mass timber recreation center designed for both high-performance sports and community engagement.
A New Vision for Ice Arenas and Community Spaces
The Rosemary Brown Recreation Centre in Burnaby, British Columbia, redefines the conventional ice arena with its innovative use of mass timber, natural light, and an open, community-oriented layout. Designed by hcma architecture + design, this 8,547-square-meter facility merges high-performance ice sports with a warm, inviting atmosphere, setting a new standard for recreational architecture.


Rejecting the traditional model of windowless, steel-trussed ice rinks, the recreation center introduces a design that prioritizes comfort and inclusivity. A distinctive hybrid steel-timber roof system allows for expansive clerestories, flooding the rinks with soft north-facing light while maintaining optimal ice quality. This approach ensures a visually connected, welcoming environment that extends beyond the ice, fostering a dynamic public gathering space.


The Structural Innovation of Mass Timber
Central to the design is the use of mass timber, which shapes both the aesthetics and the technical performance of the center. The hybrid steel-timber system was chosen for its geometric flexibility, ease of construction, and sustainable qualities. Glulam beams serve as both structural supports and architectural elements, reinforcing the warmth and durability of the space. Nail-laminated timber (NLT) is utilized for the lobby’s decking system, contributing to acoustic comfort while enhancing the natural material palette.


The architectural composition balances robust engineering with visual softness. The open, transparent structure allows visitors to engage with the space, whether they are on the ice, in the viewing galleries, or using the multipurpose rooms. The interplay between timber elements and abundant daylight creates a seamless transition between indoor and outdoor environments, emphasizing a connection to nature.


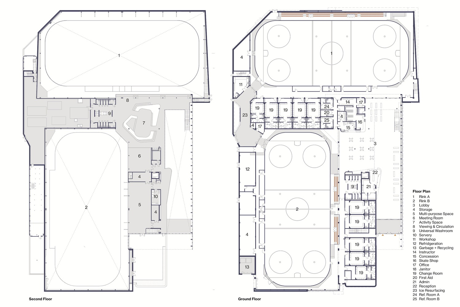
A Thoughtful Spatial Arrangement
The compact site necessitated an innovative arrangement of the facility’s two NHL-sized ice sheets. Positioned in an L-shape, these rinks converge at a central lobby, ensuring fluid circulation and an intuitive user experience. This design strategy enhances the interaction between the ice surfaces and communal spaces, transforming the building into an inviting civic hub.

Beyond the rink, the recreation center incorporates diverse programming. Multipurpose rooms accommodate activities ranging from pickleball and Pilates to community events and social gatherings. Elevated warm-side viewing galleries offer comfortable spaces for spectators, while informal play areas provide opportunities for children to engage in self-directed recreation. The thoughtful layering of functions makes the center an inclusive space for athletes, families, and community members alike.

Inclusive and Sustainable Design
Accessibility and inclusivity are integral to the design philosophy of the Rosemary Brown Recreation Centre. Braille and tactile signage, developed by hcma’s Communication Design team, ensure that all visitors can navigate the space with ease. The commitment to inclusivity extends to the facility’s programming, welcoming individuals of all abilities to participate in recreational and competitive activities.


Sustainability is another defining feature of the project. The use of mass timber not only enhances the center’s aesthetic appeal but also contributes to a lower carbon footprint. The careful selection of materials, combined with energy-efficient lighting and ventilation strategies, aligns with contemporary environmental design standards.


A Legacy for Future Generations
Named in honor of Rosemary Brown, a pioneering advocate for social justice, the recreation center embodies her legacy by fostering a sense of belonging and community. More than just an ice arena, the facility serves as a gathering place where individuals can connect, compete, and create lasting memories.


As Burnaby’s Southgate community continues to grow, the Rosemary Brown Recreation Centre stands as a testament to the evolving role of mass timber in contemporary architecture. By merging high-performance sports facilities with a warm and inclusive environment, it sets a new precedent for recreational design, demonstrating how architecture can enhance both community engagement and environmental responsibility.


All Photographs are works of Ema Peter
Popular Articles
Popular articles from the community
Solar Steam: A Climate-Responsive Architecture That Redefines the Monument
A climate-responsive memorial architecture that transforms heat, decay, and time into a living system reflecting humanity’s ecological impact.
The Ken Roberts Memorial Delineation Competition (Krob)
As the most senior architectural drawing competition currently in operation anywhere in the world, it draws hundreds of entries each year, awarding the very best submissions in a series of medium-based categories.
On the Brooks House by Monsoon Collective – A Contemporary Kerala Home Rooted in Tradition
Kerala home blending tradition and modernity with water-inspired design, brick architecture, courtyard planning, and sustainable rainwater harvesting strategies.
Treehouse Apartment: A Warm Timber Interior Blending Craft, Play, and Contemporary Living
Warm timber apartment with integrated treehouse, combining natural materials, craftsmanship, and playful design to create a flexible, family-oriented living environment.
Similar Reads
You might also enjoy these articles
Bamboo Housing Challenge 2026: Design Affordable, Sustainable Homes Using Bamboo
An international design competition by Bamboo U and IBUKU inviting architects and designers to reimagine affordable housing using bamboo — with the winning design built full-scale in Bali.
Computational Design & Education: Beegraphy Design Awards Introduces 7th Category (Featuring Jiyun's Innovative Approach)
Dive into Beegraphy’s 7th Design Awards category, where computational design meets education to create immersive, interactive learning tools, inspired by Jiyun’s work.
From Parametric Lighting to Urban Furniture: Join the 2nd Workshop in Beegraphy’s Computational Design Series
Dive into Cutting-Edge Design Techniques and Practical Applications with Industry Experts
Introducing Sphere by UNI: Pioneering a New Era in AEC Industry
Unlocking Global Potential with BIM and Agile Management
Explore Architecture Competitions
Discover active competitions in this discipline
The International Standard for Design Portfolios
The Global Benchmark for Architecture Dissertation Awards
The Global Benchmark for Graduation Excellence
Challenge to reimagine the Iron Throne
Comments (0)
Please login or sign up to add comments
No comments yet. Be the first to comment!