Speargrass House: A Rural Modern House Design by Sumich Chaplin Architects in QueenstownSpeargrass House: A Rural Modern House Design by Sumich Chaplin Architects in Queenstown

Speargrass House: A Rural Modern House Design by Sumich Chaplin Architects in Queenstown

UNI Editorial
UNI Editorial published Story under Architecture on

Perched above the majestic Wakatipu Basin in Queenstown, New Zealand, the Speargrass House is a stunning example of rural modern house design. Designed by Sumich Chaplin Architects and completed in 2024, this 625-square-meter family home harmonizes with its rugged alpine surroundings while embracing contemporary architectural principles.

Article image

The house was created for a family relocating from Sydney, Australia, seeking to immerse themselves in a rural lifestyle. The architectural response integrates traditional forms with modern materials, resulting in a residence that resonates with both history and the future.

Article image

Context and Landscape Integration

The site occupies 35 hectares along Speargrass Flat Road, offering panoramic views of Coronet Peak to the north and The Remarkables mountain range to the south. Elevated on a natural plateau accessed via a steep incline, the home is carefully positioned to maximize these breathtaking vistas.

Article image

The house embraces the landscape, with the architecture intentionally designed to blend into its environment rather than dominate it. This sensitivity to the rural setting is a defining characteristic of the rural modern house design approach employed by Sumich Chaplin Architects.

Article image

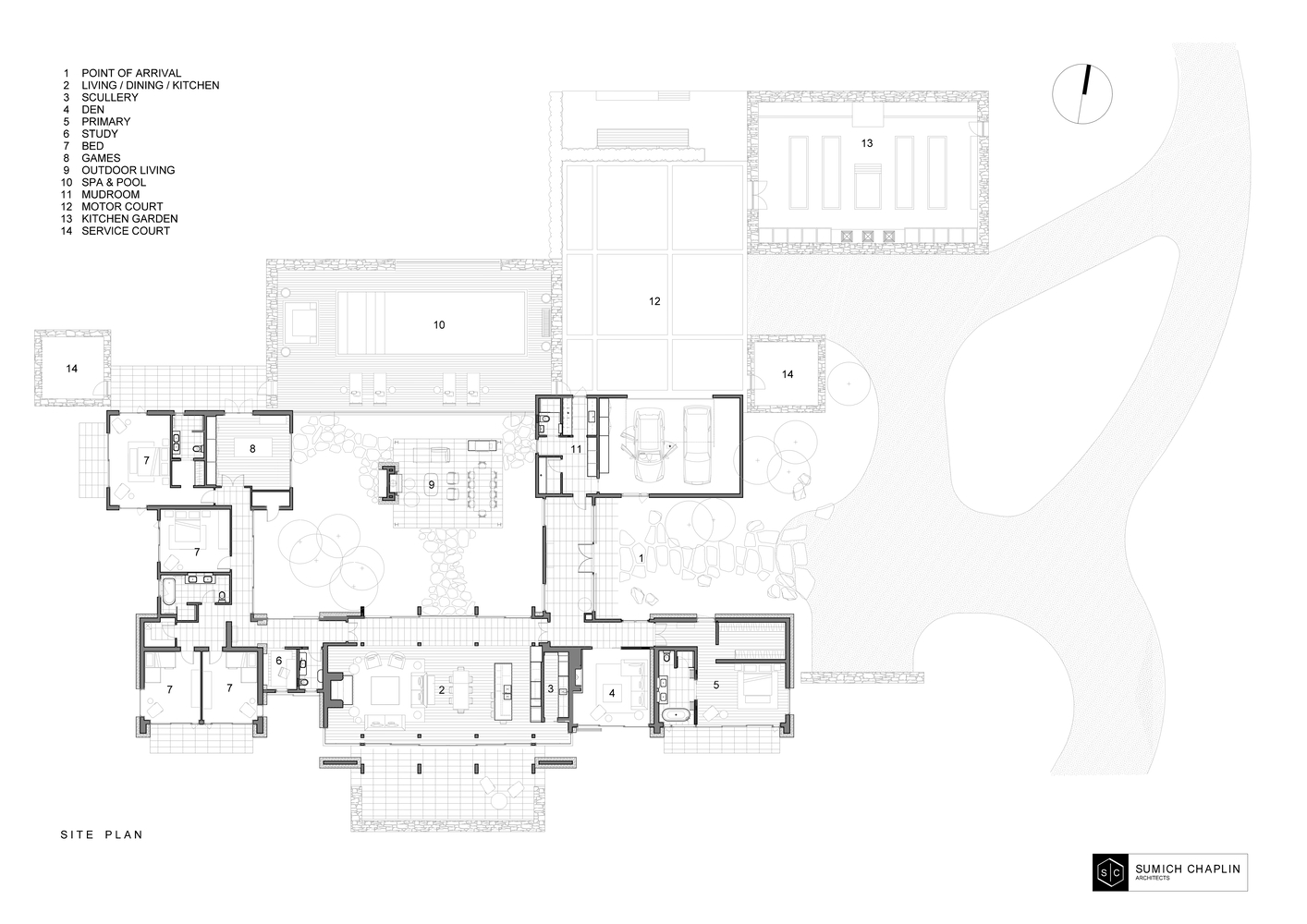
Architectural Concept and Spatial Arrangement

The architectural concept revolves around a series of single-level, interconnected pavilions organized around a central courtyard. The main living space opens towards both the northern and southern aspects, connecting the interior to the expansive alpine surroundings.

Each structure is designed with a distinct function while maintaining a domestic scale within the dramatic landscape. The design takes cues from traditional farm buildings, creating a modern interpretation of rural living that respects both heritage and contemporary comforts.

Article image

Form, Hierarchy, and Roof Design

The forms of the Speargrass House are traditional in shape but exhibit a clear hierarchy based on height and materiality. The main living and bedroom pavilions are the tallest and clad in a combination of schist stone and stained cedar. These materials reflect the vernacular architecture of the region, particularly referencing the limewashed stone cottages found on neighboring properties.

The roof design is a standout feature, particularly the inverted gable on the main living pavilion. This unique architectural gesture was inspired by an old deer-run structure discovered on-site during the initial survey. The roof's orientation captures views in both directions, emphasizing the seamless connection between interior spaces and the rugged landscape.

Article image

Material Palette and Textural Contrast

The material selection is integral to the success of this rural modern house design. Two primary materials define the exterior: band-sawn cedar weatherboards stained in a washed cedar hue and schist stonework treated with a mineral whitewash finish. These materials reference the historic architecture of the nearby Thurlby Domain while grounding the house in its natural context.

The roof and chimneys are clad in dark metal trays with a low light reflectance value (LRV) of less than 36%, ensuring they visually recede into the landscape. Aluminum triple-glazed windows provide energy efficiency and resilience against the region’s harsh alpine climate.

Article image

Interior Design and Flow

Inside, the house emphasizes warmth and natural textures, reflecting the principles of rural modern house design. Timber beams, stone features, and expansive glazing create a comfortable and inviting atmosphere. The open-plan living area seamlessly flows into the courtyard and outdoor spaces, encouraging indoor-outdoor living—a hallmark of New Zealand architecture.

Flat-roofed galleries with full-height glazing link the different pavilions, enhancing transparency and maintaining visual connectivity with the landscape. These transitional spaces blur the boundaries between the built environment and nature, fostering a constant relationship with the outdoors.

Article image

Courtyard as the Heart of the Home

The central courtyard serves as the heart of the home, providing a sheltered outdoor gathering space protected from prevailing winds. It enhances natural light penetration into the surrounding rooms while creating a private oasis within the vast openness of the plateau.

This internalized outdoor space underscores the rural modern house design ethos—combining functionality, comfort, and an intimate relationship with the landscape.

Article image

Sustainable Design Considerations

Sustainability is an inherent part of the design philosophy. The strategic orientation of the pavilions maximizes passive solar gain, reducing energy consumption during colder months. Triple-glazed windows enhance thermal performance, while the use of natural materials like stone and timber ensures durability and low maintenance.

The house also incorporates rainwater harvesting and energy-efficient heating systems, aligning with the growing demand for environmentally conscious rural modern house designs in New Zealand.

Article image

Historical Inspiration and Contemporary Expression

Speargrass House strikes a delicate balance between honoring regional architectural traditions and embracing modern design principles. The whitewashed schist cladding echoes the historic stone cottages scattered throughout the Wakatipu Basin, while the cedar weatherboards introduce a contemporary softness.

This synthesis of past and present exemplifies the rural modern house design approach—respecting the site’s history while catering to modern family living.

Article image

A Home Rooted in Landscape and Family

The Speargrass House is more than a residence; it is a sanctuary that nurtures a family's connection to the land. It reflects the client's desire to raise their young children amidst nature, offering an environment where farm life, outdoor activities, and modern comfort coexist.

Sumich Chaplin Architects have crafted a home that not only responds to the breathtaking Queenstown landscape but also celebrates the evolving narrative of rural modern house design in New Zealand.

Article image

A Benchmark in Rural Modern House Design

The Speargrass House is a benchmark in rural modern house design, illustrating how architecture can harmonize with its natural setting while fulfilling the functional and aesthetic needs of contemporary living. Sumich Chaplin Architects have masterfully fused tradition and modernity, creating a residence that will undoubtedly inspire future rural homes in New Zealand and beyond.

This project is a testament to the power of thoughtful architecture—one that respects its landscape, draws from history, and ultimately enriches the lives of those who call it home.

Article image
Article image

All Photographs are works of Simon Devitt 

UNI Editorial

UNI Editorial

Where architecture meets innovation, through curated news, insights, and reviews from around the globe.

Share your ideas with the world

Share your ideas with the world

Write about your design process, research, or opinions. Your voice matters in the architecture community.

Comments (0)

No comments yet. Be the first to comment!

Similar Reads

You might also enjoy these articles

publishedStory1 day ago
The Ken Roberts Memorial Delineation Competition (Krob)
publishedStory3 weeks ago
Waterfront Redevelopment and Urban Revitalization in Mumbai: Forging a New Dawn for Darukhana
publishedStory3 weeks ago
OUT-OF-MAP: A Call for Postcards on Feminist Narratives of Public Space
publishedStory1 month ago
Documentation Work on Buddhist Wooden  Temple

Explore Architecture Competitions

Discover active competitions in this discipline

UNI Editorial
Search in