Sustainable Architecture in Tunisia: The Oil Mill of Segermès Project
This article explores the Oil Mill of Segermès in Tunisia, highlighting its role in sustainable architecture, economic revitalization, and environmental stewardship.
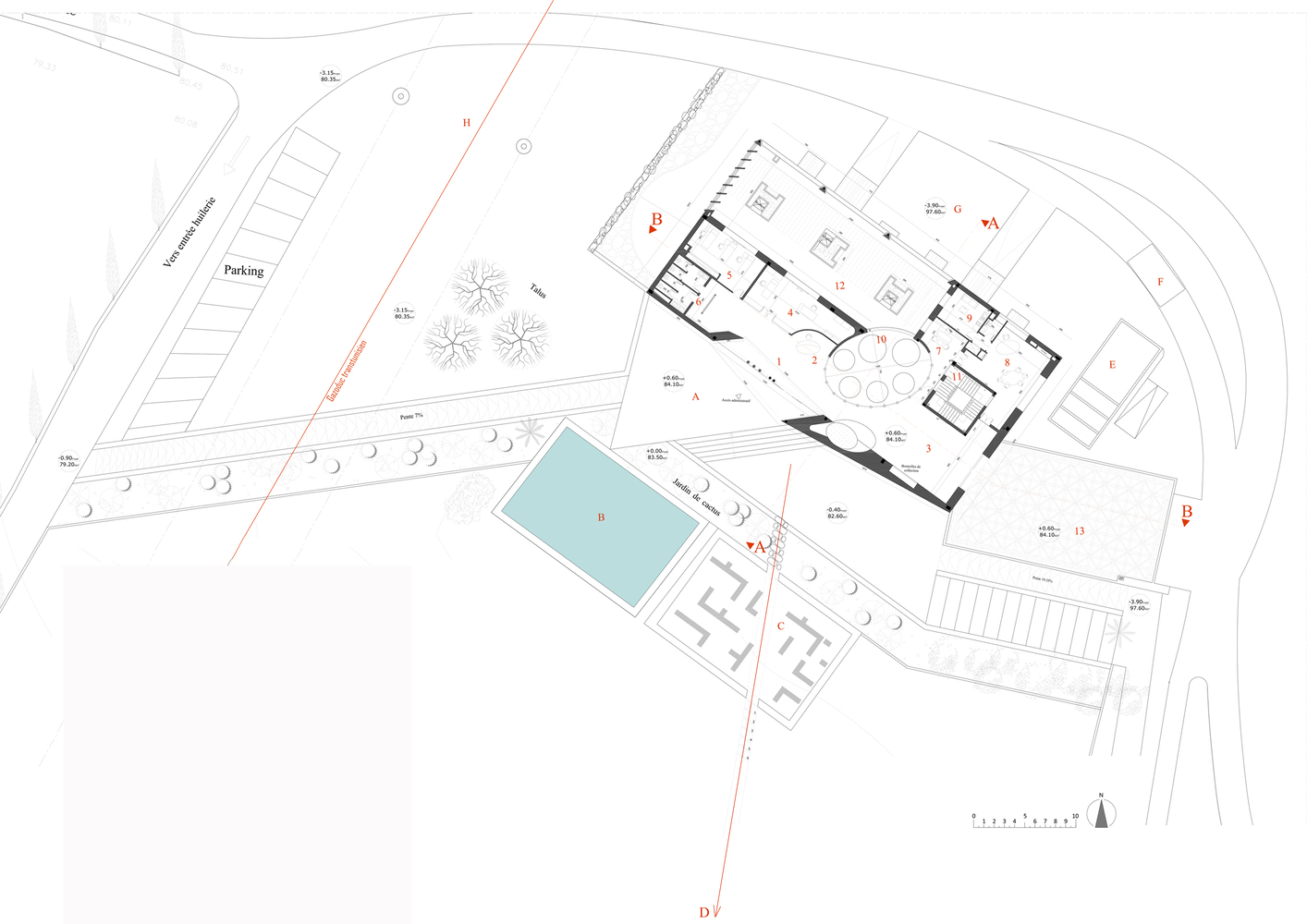
In the picturesque landscapes of Zaghouan, Tunisia, the Oil Mill of Segermès project, designed by Atelier Facila, emerges as a paragon of sustainable architecture in Tunisia. This pioneering initiative is more than an industrial facility; it represents a harmonious blend of traditional practices, sustainability, and economic revitalization.



A Holistic Approach to Rural Revitalization
Bridging Tradition and Modernity
At the heart of this project lies a commitment to preserving the rich cultural heritage of Tunisia while embracing modern sustainable practices. The Oil Mill of Segermès is strategically designed to maintain a symbiotic relationship with its natural surroundings, including a nearby water reservoir and the ruins of a Byzantine basilica, reflecting a deep respect for history and the environment.


Economic and Social Impact
The project stands as a beacon of hope for rural communities, offering much-needed employment opportunities and promoting economic stability through fair trade practices. By addressing the rural exodus and combating illegal immigration, the Oil Mill of Segermès contributes to the socio-economic development of Tunisia's interior regions.



Sustainability at Its Core
Environmental Stewardship
Adel Hidar, the lead architect, and the team at Atelier Facila have meticulously integrated eco-sustainable parameters into the design, utilizing locally sourced materials and minimizing environmental impact. The project's focus on organic farming and biodiversity protection sets a new benchmark for sustainable architecture in Tunisia.


Year-Round Employment Through Innovation
The combination of an oil mill with a cannery not only enhances operational efficiency but also ensures continuous employment for the local community, particularly rural women who depend on olive cultivation. This innovative approach underscores the project's commitment to sustainable economic practices.



A Model for the Future
The Oil Mill of Segermès project is more than just an architectural achievement; it is a model of sustainable development that balances economic growth with environmental conservation and social equity. As Tunisia strives to position itself as a leader in the production of high-quality organic olive oil, this project illustrates the country's potential to compete on the global stage while fostering a more equitable and sustainable future. In the face of global challenges, the Oil Mill of Segermès stands as a testament to the transformative power of sustainable architecture in Tunisia.


All the photographs are work of Adel Hidar, Mehdi Ben Gharbia
Popular Articles
Popular articles from the community
Louis Malle Cinema: A Limestone Cultural Landmark Revitalizing Community Life in Prayssac
Limestone cinema extension with public forecourt, blending heritage and modern design to create flexible cultural spaces and strengthen community interaction.
On the Brooks House by Monsoon Collective – A Contemporary Kerala Home Rooted in Tradition
Kerala home blending tradition and modernity with water-inspired design, brick architecture, courtyard planning, and sustainable rainwater harvesting strategies.
Fifth NRE Jazz Club – De Bever Architecten: Eindhoven’s Revitalized Cultural Hub
Historic gas factory transformed into Fifth NRE Jazz Club blending modern sustainability, jazz culture, dining, and heritage architecture seamlessly.
Solar Steam: A Climate-Responsive Architecture That Redefines the Monument
A climate-responsive memorial architecture that transforms heat, decay, and time into a living system reflecting humanity’s ecological impact.
Similar Reads
You might also enjoy these articles
The Ken Roberts Memorial Delineation Competition (Krob)
As the most senior architectural drawing competition currently in operation anywhere in the world, it draws hundreds of entries each year, awarding the very best submissions in a series of medium-based categories.
Waterfront Redevelopment and Urban Revitalization in Mumbai: Forging a New Dawn for Darukhana
A transformative waterfront redevelopment project reimagining Darukhana’s shipbreaking heritage into an inclusive urban future.
OUT-OF-MAP: A Call for Postcards on Feminist Narratives of Public Space
Rhizoma Design and Research Lab invites artists, designers, architects, researchers, and students to reflect on how feminist perspectives can reshape public space. Selected works will be exhibited in Barcelona, October 2026. Submissions open until 15 April 2026.
Documentation Work on Buddhist Wooden Temple
Architectural syncretism and cultural hybridity: A comparative study of the Buddhist temples in Chattogram Hill tracks
Explore Architecture Competitions
Discover active competitions in this discipline
The International Standard for Design Portfolios
The Global Benchmark for Architecture Dissertation Awards
The Global Benchmark for Graduation Excellence
Challenge to reimagine the Iron Throne
Comments (0)
Please login or sign up to add comments
No comments yet. Be the first to comment!