Sustainable Campus Architecture: Corvinus Gellert Campus by PLANT – Atelier Peter Kis
The Corvinus Gellert Campus redefines sustainable campus architecture, blending heritage preservation with modern design and eco-friendly innovations.
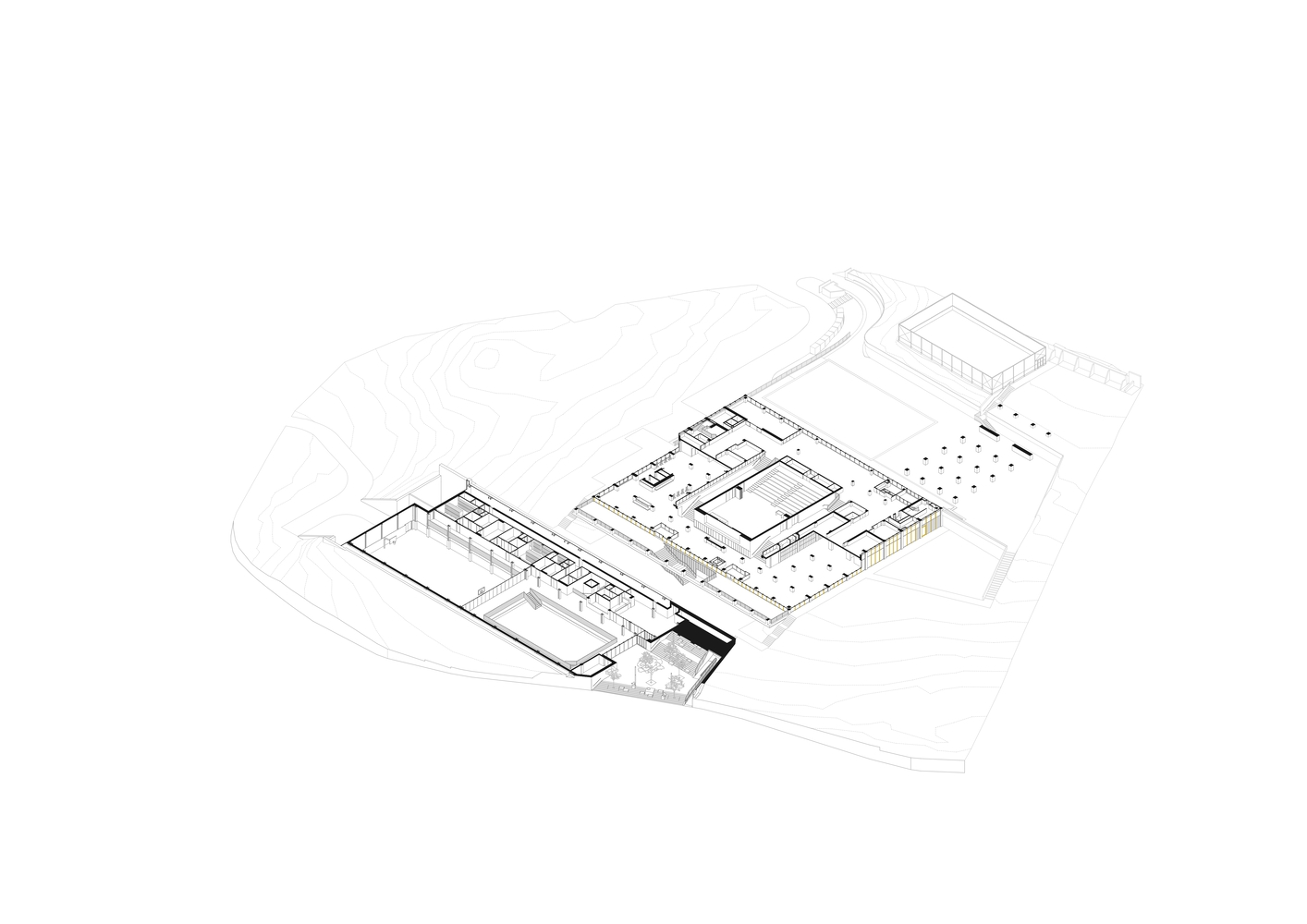
The Corvinus Gellert Campus in Budapest, Hungary, designed by PLANT – Atelier Peter Kis, marks a milestone in sustainable campus architecture. This 14,000-square-meter redevelopment project transformed the former State Administration College into a state-of-the-art educational facility for Budapest Corvinus University, preserving its architectural heritage while integrating modern design and sustainable practices. The project is Hungary’s first educational building to achieve LEED Gold certification, setting a benchmark for future campus developments worldwide.





From Historical Foundations to Contemporary Vision
Corvinus University, renowned for its focus on economics, previously operated from historic 19th-century buildings on the Pest side of Budapest. Due to urban constraints, expansion required a new approach. The redevelopment of the former college on the Buda side, near the Danube River, provided an opportunity to recycle an existing structure, aligning with the university’s sustainable vision. This adaptive reuse minimized environmental impact, exemplifying a forward-thinking approach to campus design.






The new campus blends historical elements with innovative architectural solutions. The building’s phased construction since 1973 informed its character, with the design team retaining its distinctive 1970s aesthetic. Rising toward Gellért Hill, the campus harmonizes with the surrounding villa district while creating a modern, welcoming space for students and faculty.





A New Agora: Redefining Accessibility and Community
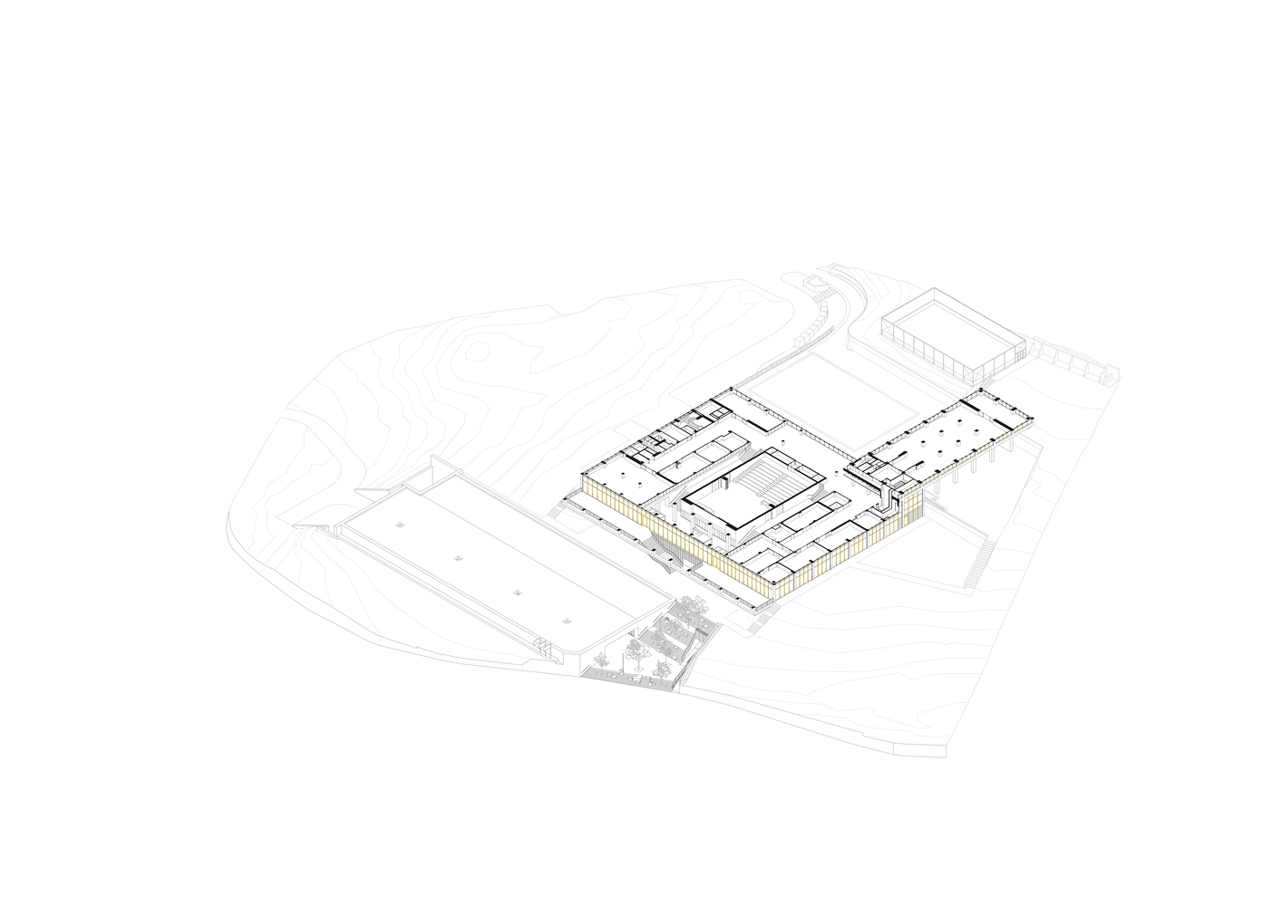
At the heart of the project is the reimagined entrance agora, which transforms the campus into an open, inclusive space. The redesign improved pedestrian connectivity between the university’s facilities while elevating the building’s presence. The cantilevered staircase leading to the double-height reception hall is a standout feature, symbolizing the university’s prestige and modern identity.






Within the reception area, Attila Csörgő’s sculpture, "Five Cubes," serves as a mathematical metaphor for the university’s open-minded approach. The use of innovative materials like pixel concrete, embedded with glass fibers, and custom lighting installations inspired by economic diagrams, underscores the fusion of functionality and aesthetics.






Modern Spaces for Learning and Living
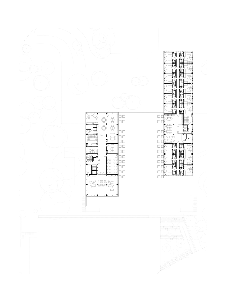
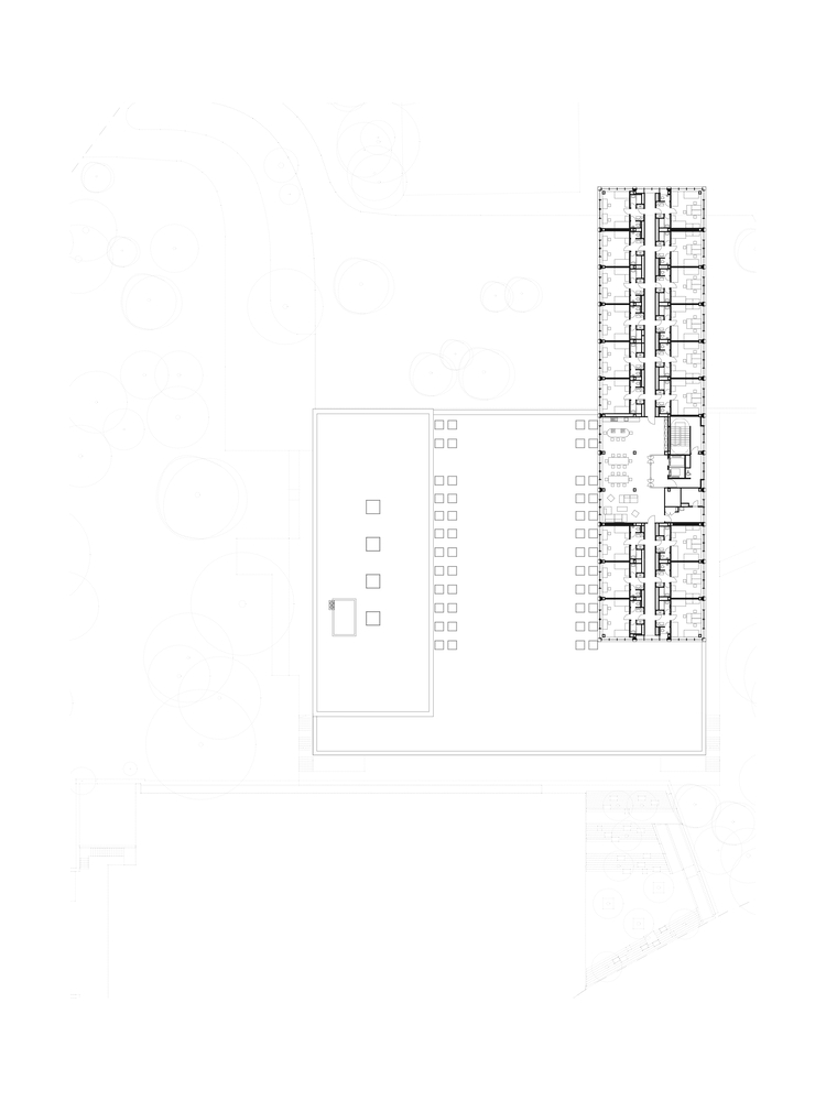
The campus design prioritizes collaboration, adaptability, and comfort. The "J" tower, named for "Jövő" (Future), is dedicated to educational spaces. It houses lecture rooms, collaborative areas, and executive training facilities, fostering a dynamic learning environment. The "K" tower, representing "Közösség" (Community), offers dormitory accommodations. Designed with extensive student input, the dormitory provides 2-3 person units with private bathrooms, large common areas, and amenities for shared cooking and social activities.




The crown level of the "K" tower, with its corrugated gold façade, features a rooftop café and professor apartments. This unique space doubles as an event venue and lecture hall, offering breathtaking views of Budapest’s skyline and fostering a sense of connection to the city.







Integrating Heritage and Innovation
Preservation of historical elements is a key aspect of the campus design. The architects retained the original spatial structure of the building, repurposing features like a mechanical control panel into a distinctive cabinet. The façade combines a matte concrete shell with shimmering gold accents, creating a balance between the old and the new.






The campus’s sports complex further demonstrates innovative reuse. Rather than refurbishing the original swimming pool, which posed sustainability challenges, the structure was repurposed into a bouldering wall and gym, maintaining its legacy while introducing new functionality.






Commitment to Sustainability
Sustainability is central to the Corvinus Gellert Campus. Achieving LEED Gold certification reflects the project’s commitment to energy efficiency, minimal environmental impact, and green design. Key features include green spaces, bike-friendly infrastructure, and water-efficient systems. The preservation of the surrounding park and the adaptive reuse of the existing structural framework further reduced the campus’s carbon footprint.






The designers collaborated closely with students and faculty to create a campus that meets academic and environmental goals while fostering community and innovation. From the reception hall’s skylights to the rooftop terrace, every element of the campus reflects an integrated approach to sustainability and functionality.








The Corvinus Gellert Campus exemplifies the future of sustainable campus architecture. By blending heritage preservation, modern design, and eco-friendly practices, PLANT – Atelier Peter Kis has created a vibrant educational hub that embodies the values of community, innovation, and environmental stewardship. This project sets a benchmark for universities worldwide, demonstrating how adaptive reuse and sustainable design can create spaces that inspire and connect.











All Photographs are work of Balazs Turos, Zalan Peter Salat + Csaba Villanyi
Popular Articles
Popular articles from the community
Flamboyant House by Juliana Camargo + Prumo Projetos
Modern Brazilian house integrating existing tree, pool, and volumes with glass, wood, and transitional spaces blending interior, exterior, and landscape seamlessly.
Treehouse Apartment: A Warm Timber Interior Blending Craft, Play, and Contemporary Living
Warm timber apartment with integrated treehouse, combining natural materials, craftsmanship, and playful design to create a flexible, family-oriented living environment.
The Ken Roberts Memorial Delineation Competition (Krob)
As the most senior architectural drawing competition currently in operation anywhere in the world, it draws hundreds of entries each year, awarding the very best submissions in a series of medium-based categories.
Louis Malle Cinema: A Limestone Cultural Landmark Revitalizing Community Life in Prayssac
Limestone cinema extension with public forecourt, blending heritage and modern design to create flexible cultural spaces and strengthen community interaction.
Similar Reads
You might also enjoy these articles
The Ken Roberts Memorial Delineation Competition (Krob)
As the most senior architectural drawing competition currently in operation anywhere in the world, it draws hundreds of entries each year, awarding the very best submissions in a series of medium-based categories.
Waterfront Redevelopment and Urban Revitalization in Mumbai: Forging a New Dawn for Darukhana
A transformative waterfront redevelopment project reimagining Darukhana’s shipbreaking heritage into an inclusive urban future.
OUT-OF-MAP: A Call for Postcards on Feminist Narratives of Public Space
Rhizoma Design and Research Lab invites artists, designers, architects, researchers, and students to reflect on how feminist perspectives can reshape public space. Selected works will be exhibited in Barcelona, October 2026. Submissions open until 15 April 2026.
Documentation Work on Buddhist Wooden Temple
Architectural syncretism and cultural hybridity: A comparative study of the Buddhist temples in Chattogram Hill tracks
Explore Architecture Competitions
Discover active competitions in this discipline
The International Standard for Design Portfolios
The Global Benchmark for Architecture Dissertation Awards
The Global Benchmark for Graduation Excellence
Challenge to design public laboratory
Comments (0)
Please login or sign up to add comments
No comments yet. Be the first to comment!