Sustainable Campus Architecture: Yuanbo Building at BNU Zhuhai
Yuanbo Building at BNU Zhuhai showcases sustainable campus architecture, blending innovation, interaction, and environmental responsibility.
The Yuanbo Building, designed by THAD, is a remarkable example of sustainable campus architecture. Located at Beijing Normal University’s Zhuhai Campus, this 13,762-square-meter building has been transformed into a hub for the School of Future Design, blending innovative design with environmental sustainability.



A Vision for Sustainable Transformation
The Yuanbo Building renovation is part of BNU Zhuhai’s commitment to low-carbon development and campus transformation. Originally constructed in 2004, the building had fallen into disrepair, with peeling paint, rusted structures, and neglected outdoor spaces. The renovation project aimed to revitalize the building while aligning with the university’s carbon neutrality goals.


Facade Renovation: A New Identity
The renovation employed a "skin-over-skin" approach, adding a dry-hanging brick wall system and GRC cladding to the existing structure. The new red-and-white façade not only enhances the building’s aesthetic appeal but also integrates it harmoniously with the surrounding campus architecture. The central white box, fitted with U-glass, serves as a focal point, transforming the once-chaotic building cluster into a cohesive and centered entity.



Creating Spaces for Interaction and Inspiration
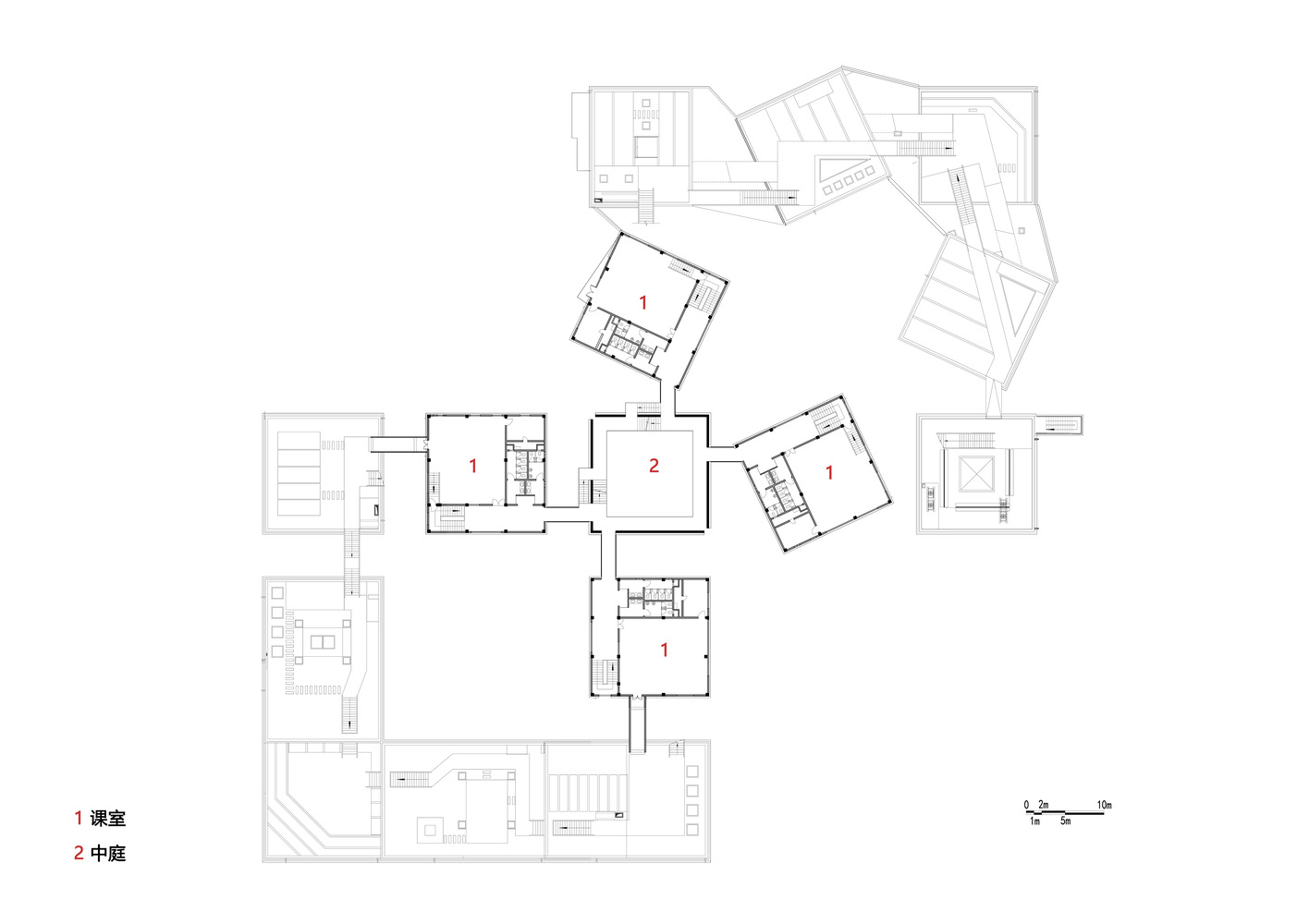
The design of the Yuanbo Building emphasizes human interaction and connection with nature, countering the isolating effects of the digital era. The renovation introduced a continuous rooftop pathway that connects 15 individual cubes, creating a seamless flow between indoor and outdoor spaces. This pathway, inspired by the fluidity of calligraphy, encourages students and faculty to engage with their surroundings and each other.


Central Cube: A Hub of Activity
The central cube, previously an overgrown open space, was transformed into a vibrant multi-level activity area. A glass roof and stair system were added, creating a versatile space for events such as concerts, fashion shows, and exhibitions. This area has become a dynamic hub for the campus community, fostering creativity and collaboration.


Courtyards: Interdisciplinary Spaces
Two courtyards were redesigned into a square and a circular space, each serving as a venue for cultural and creative activities. The square courtyard features red brick seating around a preserved phoenix tree, while the circular courtyard includes a sunken stage, making it a focal point for performances and gatherings.


Sustainable Design Strategies
The Yuanbo Building renovation incorporates practical sustainability strategies across four key areas: energy, construction, operation, and education.

Energy Efficiency
High-efficiency air conditioning systems and operable windows allow for natural ventilation, reducing energy consumption. The façade includes shading elements such as grilles and window frames, which minimize direct sunlight and lower cooling demands.

Construction and Operation
The renovation preserved existing trees, maintaining their carbon sequestration capacity. Water-efficient fixtures and irrigation systems were installed, further reducing the building’s environmental impact.

Educational Impact
The Yuanbo Building serves as a model for sustainable design, raising awareness among students and faculty. Graduates of the School of Future Design carry these principles into their careers, promoting sustainability in rural and urban communities alike.

A Catalyst for Rural Aesthetic Education
The School of Future Design, housed in the Yuanbo Building, focuses on interdisciplinary collaboration in art, technology, and education. Through initiatives like the "Art Education Program for Children in Difficulty," the school aims to bridge the gap in aesthetic education in rural areas, fostering creativity and empathy among children.

The Yuanbo Building stands as a testament to the potential of sustainable campus architecture. By combining innovative design with environmental responsibility, THAD has created a space that not only meets the needs of modern education but also inspires future generations to build a better, more sustainable world.

All Photographs are works of Wu Qingshan, Zhan Changheng
Popular Articles
Popular articles from the community
The Ken Roberts Memorial Delineation Competition (Krob)
As the most senior architectural drawing competition currently in operation anywhere in the world, it draws hundreds of entries each year, awarding the very best submissions in a series of medium-based categories.
On the Brooks House by Monsoon Collective – A Contemporary Kerala Home Rooted in Tradition
Kerala home blending tradition and modernity with water-inspired design, brick architecture, courtyard planning, and sustainable rainwater harvesting strategies.
Atelier Macri Concept Store Interior Design by CASE-REAL
Atelier Macri store features a "ko" counter, walnut wood details, cork displays, blending retail, gallery, and seamless customer experiences.
Flamboyant House by Juliana Camargo + Prumo Projetos
Modern Brazilian house integrating existing tree, pool, and volumes with glass, wood, and transitional spaces blending interior, exterior, and landscape seamlessly.
Similar Reads
You might also enjoy these articles
Bamboo Housing Challenge 2026: Design Affordable, Sustainable Homes Using Bamboo
An international design competition by Bamboo U and IBUKU inviting architects and designers to reimagine affordable housing using bamboo — with the winning design built full-scale in Bali.
Computational Design & Education: Beegraphy Design Awards Introduces 7th Category (Featuring Jiyun's Innovative Approach)
Dive into Beegraphy’s 7th Design Awards category, where computational design meets education to create immersive, interactive learning tools, inspired by Jiyun’s work.
From Parametric Lighting to Urban Furniture: Join the 2nd Workshop in Beegraphy’s Computational Design Series
Dive into Cutting-Edge Design Techniques and Practical Applications with Industry Experts
Introducing Sphere by UNI: Pioneering a New Era in AEC Industry
Unlocking Global Potential with BIM and Agile Management
Explore Architecture Competitions
Discover active competitions in this discipline
The International Standard for Design Portfolios
The Global Benchmark for Architecture Dissertation Awards
The Global Benchmark for Graduation Excellence
Challenge to reimagine the Iron Throne
Comments (0)
Please login or sign up to add comments
No comments yet. Be the first to comment!