Sustainable Homes in Thailand: Unveiling the Mae Rim House by WOS Architects
Explore Mae Rim House in Thailand, a model of sustainable architecture integrating urban comfort with the natural landscape.
In the quest for sustainability and eco-conscious living, Thailand has seen a notable shift towards building homes that not only respect the environment but are also beautifully integrated into their natural surroundings. The Mae Rim House, designed by WOS Architects, is a sterling example of this movement, offering insights into how modern homes can achieve environmental harmony and urban comfort.



The Essence of Sustainable Home Design
What Defines a Sustainable Home?
Sustainable homes are designed with the goal of reducing their environmental impact through efficient use of energy, water, and other resources. Often, these homes blend innovative construction techniques with traditional practices that are adapted to the local climate and cultural context.



Importance in Thailand
Thailand's diverse ecosystems and climatic conditions make it an ideal setting for sustainable architecture. Homes like the Mae Rim House contribute positively to their environments, promoting a balance between human habitation and the natural world.



A Closer Look at Mae Rim House
Architectural Design and Innovation
Layout and Structure
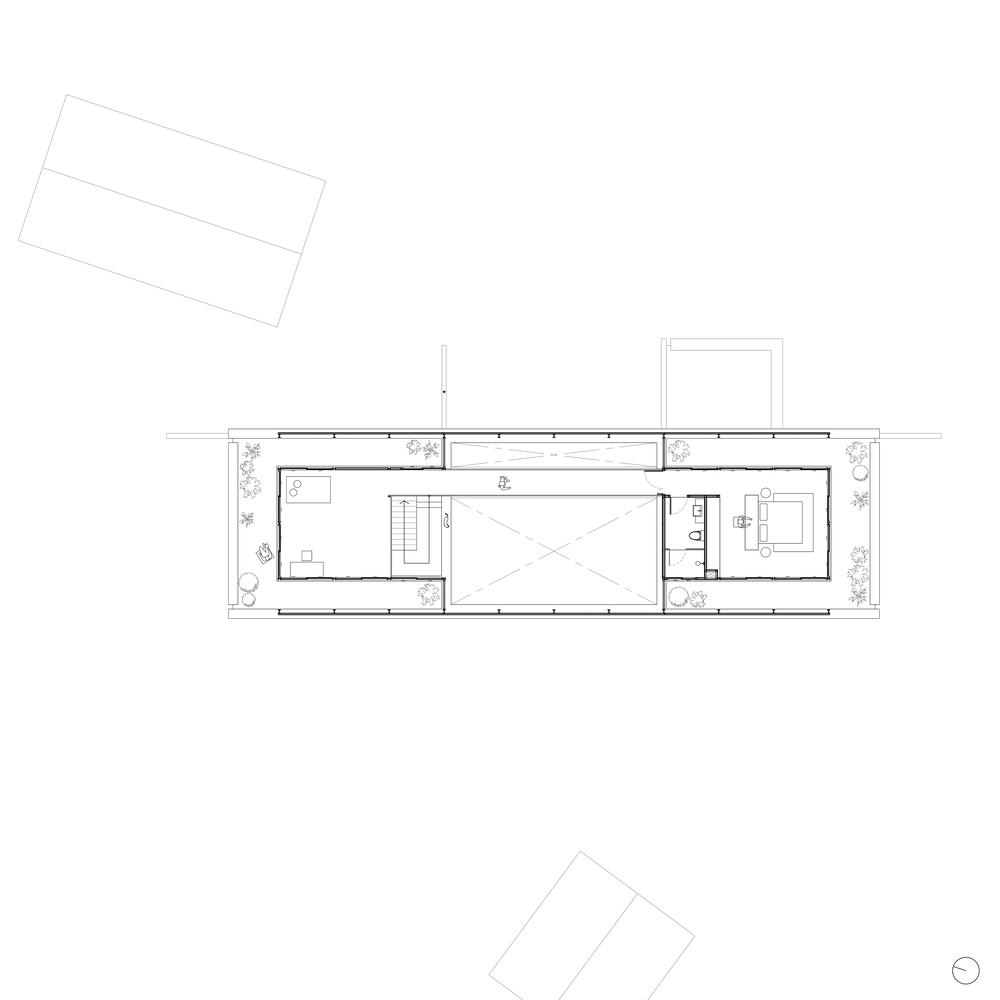
Mae Rim House is strategically designed to blend with the picturesque landscape of Mae Rim District in Chiang Mai. The house's elongated silhouette and high-pitched roof echo the mountainous backdrop, ensuring the structure does not overpower the scenic views.


Natural Integration and Comfort
The design of Mae Rim House focuses on creating a seamless bond with the outdoors. The central atrium, open on both ends, invites the cool mountain breeze, reducing the need for mechanical cooling. This central area, coupled with the house’s orientation, maximizes natural ventilation and lighting.


Sustainable Features
Energy Efficiency
The Mae Rim House uses natural cross-ventilation, significantly cutting down on energy consumption used for cooling. The architectural design, including the high ceilings and strategically placed windows, ensures that the house remains cool and well-lit throughout the day.



Material Selection
The choice of materials in construction also reflects a commitment to sustainability. The architects selected locally sourced materials that are durable and have a low environmental footprint, enhancing the home’s overall sustainability.


Living with Nature
Connection to the Environment
Every aspect of Mae Rim House—from its layout to the interior design choices—prioritizes a connection to nature. Large windows provide unobstructed views of the mountains and forest, while the interior color palette and materials reflect the natural beauty of the surrounding landscape.


The Role of Green Spaces
The incorporation of planters and green spaces within the home not only enhances its aesthetic appeal but also improves air quality and creates a microclimate that further aids in cooling the house naturally.


Impact and Future of Sustainable Housing in Thailand
Benefits of Sustainable Living
Living in a sustainable home like Mae Rim House offers numerous benefits, including reduced energy costs, increased comfort levels, and a deeper connection to the natural environment. These homes set a precedent for future developments in Thailand and beyond.


The Path Forward
The principles demonstrated by Mae Rim House can serve as a blueprint for future sustainable housing projects in Thailand. With growing awareness and advancements in technology, the potential for sustainable architecture in the region is boundless.


Mae Rim House by WOS Architects stands as a beacon of sustainable residential architecture in Thailand. It exemplifies how homes can be designed to offer both comfort and sustainability, paving the way for a greener, more sustainable future in home design.
All photographs are work of Peerapat Wimolrungkarat
Popular Articles
Popular articles from the community
A Contemporary Take on Iranian Residential Architecture
A modern interior design in Mashhad that reinterprets brick, light, and spatial flow to create a warm, contemporary residential architecture.
Treehouse Apartment: A Warm Timber Interior Blending Craft, Play, and Contemporary Living
Warm timber apartment with integrated treehouse, combining natural materials, craftsmanship, and playful design to create a flexible, family-oriented living environment.
Solar Steam: A Climate-Responsive Architecture That Redefines the Monument
A climate-responsive memorial architecture that transforms heat, decay, and time into a living system reflecting humanity’s ecological impact.
On the Brooks House by Monsoon Collective – A Contemporary Kerala Home Rooted in Tradition
Kerala home blending tradition and modernity with water-inspired design, brick architecture, courtyard planning, and sustainable rainwater harvesting strategies.
Similar Reads
You might also enjoy these articles
The Ken Roberts Memorial Delineation Competition (Krob)
As the most senior architectural drawing competition currently in operation anywhere in the world, it draws hundreds of entries each year, awarding the very best submissions in a series of medium-based categories.
Waterfront Redevelopment and Urban Revitalization in Mumbai: Forging a New Dawn for Darukhana
A transformative waterfront redevelopment project reimagining Darukhana’s shipbreaking heritage into an inclusive urban future.
OUT-OF-MAP: A Call for Postcards on Feminist Narratives of Public Space
Rhizoma Design and Research Lab invites artists, designers, architects, researchers, and students to reflect on how feminist perspectives can reshape public space. Selected works will be exhibited in Barcelona, October 2026. Submissions open until 15 April 2026.
Documentation Work on Buddhist Wooden Temple
Architectural syncretism and cultural hybridity: A comparative study of the Buddhist temples in Chattogram Hill tracks
Explore Architecture Competitions
Discover active competitions in this discipline
The International Standard for Design Portfolios
The Global Benchmark for Architecture Dissertation Awards
The Global Benchmark for Graduation Excellence
Challenge to reimagine the Iron Throne
Comments (0)
Please login or sign up to add comments
No comments yet. Be the first to comment!