Sustainable Multi-Generational Housing: A New Era at Generatorn Housing by Spridd Architects, Secretary Architecture, and Septembre Architecture
Generatorn Housing in Linköping exemplifies sustainable multi-generational living, integrating eco-friendly design with community-focused spaces for students and seniors.
In the heart of Linköping, Sweden, the Generatorn Housing project emerges as a pioneering example of sustainable multi-generational housing, blending modern design with eco-friendly technologies. This unique collaboration between three architectural firms aims to redefine urban living for students and seniors alike.



Understanding Sustainable Multi-Generational Housing
What is Multi-Generational Housing?
Multi-generational housing is designed to support the needs of multiple age groups within the same community. This approach facilitates social interaction and support between generations, enhancing the quality of life for all residents.



Benefits of Sustainability in Housing
Sustainable housing minimizes environmental impact through energy efficiency, use of sustainable materials, and innovative building techniques. It promotes a healthier living environment and reduces operational costs.



Design and Architecture of Generatorn Housing
Collaborative Design Process
The design of Generatorn Housing was born from a collaborative process involving Spridd Architects, Secretary Architecture, and Septembre Architecture. This partnership fostered a creative synergy that led to a design which respects individual authorship while promoting a unified architectural vision.



Architectural Features
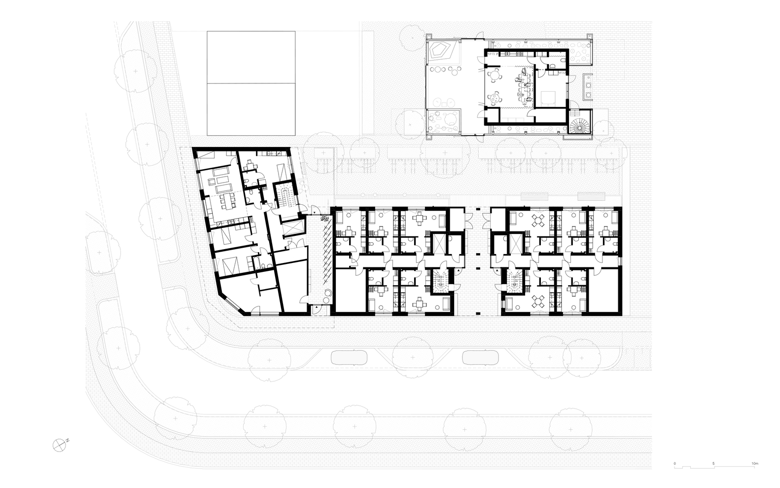
Innovative Layout
The housing complex features a mix of student and senior apartments, encouraging a vibrant, intergenerational community. Communal spaces such as the Felleshuset provide areas for interaction and social activities, strengthening community bonds.


Sustainability Features
Eco-Friendly Building Materials
The structure’s framework consists of Cross-Laminated Timber (CLT), chosen for its low carbon footprint compared to traditional building materials like concrete. This choice underscores the project's commitment to environmental sustainability.



Energy Efficiency
Generatorn Housing is designed as a plus-energy building, generating more energy than it consumes. This is achieved through high-performance solar panels and individual ventilation controls in each apartment, showcasing advanced energy solutions in residential design.



Community Impact and Social Sustainability
Fostering Intergenerational Interaction
The project’s layout and amenities are designed to encourage interaction between students and seniors, fostering a supportive community environment. This approach enhances social well-being and reduces feelings of isolation among residents.


Integration with the Local Environment
Generatorn Housing is seamlessly integrated into the local community of Vallastaden, with design elements that reflect the cultural and environmental ethos of the area. This integration helps the building complement its surroundings and serve as a model for future developments.


Generatorn Housing by Spridd Architects, Secretary Architecture, and Septembre Architecture represents a significant advancement in sustainable multi-generational housing. Through innovative design and sustainability practices, this project not only provides comfortable and efficient living spaces but also fosters a dynamic and supportive community environment. As cities continue to grow and diversify, Generatorn Housing stands as a beacon of how architectural ingenuity can harmonize with environmental stewardship to enhance urban living.

All photographs are work of Johan Dehlin