The Lantern House: A Modern Japanese House Design in Vietnam
The Lantern House by NAW Studio is a perfect fusion of modern Japanese house design and Vietnam’s tropical environment, offering tranquility in urban life.
The Lantern House, designed by NAW Studio, is an architectural masterpiece that seamlessly blends modern Japanese house design with the climatic and cultural context of Vietnam. Located in the bustling new urban area of Hoa Xuan, this home is a reflection of tranquility amid the city's fast-paced environment. The design embraces minimalist principles, natural ventilation, and a harmonious relationship between indoor and outdoor spaces, creating a peaceful living experience for its residents.



A Vision Inspired by Modern Japanese House Design
The homeowner's deep appreciation for Japanese architecture became the foundation of the design approach. The Lantern House embodies simplicity, balance, and functional elegance—core tenets of modern Japanese architecture. From the initial concept sketches, NAW Studio sought to create a home that not only met the practical needs of a family of four but also reflected a mindful and poetic way of living.


The structure stands on a 100m² square plot, facing both east and west—exposing it to the Central Vietnam climate’s intense sun and humidity. The design overcomes these challenges by incorporating carefully placed solid and hollow walls, strategically positioned setbacks, and an optimized material palette. These elements work together to regulate light, enhance natural ventilation, and create a dynamic visual experience as sunlight interacts with the house throughout the day.


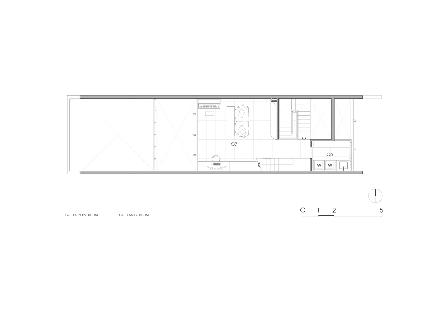
A Home Without a Traditional Living Room
One of the most distinctive features of The Lantern House is its unconventional approach to spatial organization. Instead of a formal living room, the kitchen and backyard serve as the core gathering spaces for the family. The ground floor opens into an expansive layout where the kitchen directly connects to the backyard—creating a seamless transition between indoor and outdoor spaces. This backyard becomes the heart of the home, ensuring natural airflow and keeping the interior cool and refreshing.



The upper floors embrace an open-plan layout, reinforcing a sense of connection between different levels of the house. This openness enhances spatial perception, making the home feel larger while maintaining intimacy within the family. Thoughtfully placed openings and a network of doors optimize cross-ventilation, ensuring a comfortable microclimate year-round.


A Perfect Balance Between Japanese Minimalism and Vietnamese Climate
The Lantern House is a prime example of how modern Japanese house design can adapt to local environmental conditions. The material choices reflect the philosophy of simplicity and natural aesthetics. The interplay between concrete, wood, and glass captures the essence of Japanese minimalism while being resilient to Vietnam’s weather.


The façade acts as a dynamic canvas, interacting with sunlight and shadows throughout the day. The east-facing façade, in particular, showcases an artistic arrangement of shapes that not only adds character to the exterior but also serves a functional role in light control and ventilation.


The backyard is more than just a green retreat—it plays an essential role in maintaining indoor climate comfort. By integrating nature into the design, the home cultivates a meditative atmosphere, aligning with the Japanese concept of “shizen” (naturalness). This thoughtful integration of natural elements makes The Lantern House not just a residence but a sanctuary for well-being.


A New Benchmark for Modern Japanese House Design
The Lantern House is a harmonious blend of Japanese architectural principles and Vietnam’s tropical environment. It is not merely a house but an embodiment of a philosophy that values simplicity, connection, and sustainability. The home serves as an inspiration for architects and homeowners seeking to integrate modern Japanese house design into diverse urban landscapes.



Through its innovative approach to spatial organization, natural ventilation, and materiality, The Lantern House sets a new standard for contemporary residential architecture. It proves that architecture can go beyond aesthetics—it can shape how people live, interact, and find peace within their surroundings.



All Photographs are works of DinhR
Popular Articles
Popular articles from the community
A Contemporary Take on Iranian Residential Architecture
A modern interior design in Mashhad that reinterprets brick, light, and spatial flow to create a warm, contemporary residential architecture.
The Ken Roberts Memorial Delineation Competition (Krob)
As the most senior architectural drawing competition currently in operation anywhere in the world, it draws hundreds of entries each year, awarding the very best submissions in a series of medium-based categories.
Flamboyant House by Juliana Camargo + Prumo Projetos
Modern Brazilian house integrating existing tree, pool, and volumes with glass, wood, and transitional spaces blending interior, exterior, and landscape seamlessly.
Treehouse Apartment: A Warm Timber Interior Blending Craft, Play, and Contemporary Living
Warm timber apartment with integrated treehouse, combining natural materials, craftsmanship, and playful design to create a flexible, family-oriented living environment.
Similar Reads
You might also enjoy these articles
Bamboo Housing Challenge 2026: Design Affordable, Sustainable Homes Using Bamboo
An international design competition by Bamboo U and IBUKU inviting architects and designers to reimagine affordable housing using bamboo — with the winning design built full-scale in Bali.
Computational Design & Education: Beegraphy Design Awards Introduces 7th Category (Featuring Jiyun's Innovative Approach)
Dive into Beegraphy’s 7th Design Awards category, where computational design meets education to create immersive, interactive learning tools, inspired by Jiyun’s work.
From Parametric Lighting to Urban Furniture: Join the 2nd Workshop in Beegraphy’s Computational Design Series
Dive into Cutting-Edge Design Techniques and Practical Applications with Industry Experts
Introducing Sphere by UNI: Pioneering a New Era in AEC Industry
Unlocking Global Potential with BIM and Agile Management
Explore Architecture Competitions
Discover active competitions in this discipline
The International Standard for Design Portfolios
The Global Benchmark for Architecture Dissertation Awards
The Global Benchmark for Graduation Excellence
Challenge to reimagine the Iron Throne
Comments (0)
Please login or sign up to add comments
No comments yet. Be the first to comment!