University Campus Renovation Architecture: Shanghai University Yanchang Campus by ECADI Sigma Architects
A transformative renovation project by ECADI Sigma Architects that integrates history and innovation across Shanghai University's urban art campus.
A Vision for Integrated Academic Spaces in Shanghai
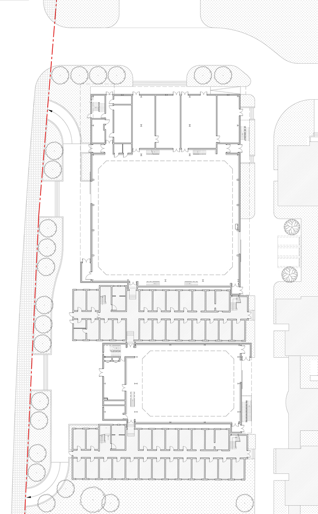
The transformation of Shanghai University Yanchang Campus by ECADI Sigma Architects stands as a landmark project in university campus renovation architecture. Spanning 19.2 hectares with a built-up area of 73,006 m², the project is a hybrid of restoration and innovation, infusing the existing campus with new life while preserving its historical integrity. Located in a densely urbanized context, the renewed campus redefines the spatial and cultural narrative of academic environments in China.





Strategic Renovation Meets Cultural Continuity
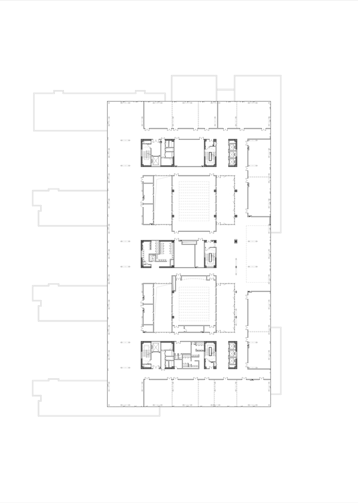
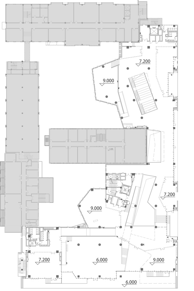
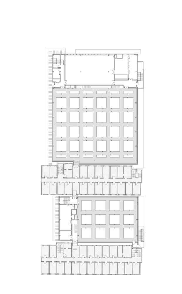
The design adopts a “strategic infill development and vertical expansion” approach. Rather than erasing the past, ECADI Sigma Architects carefully integrate new volumes with preserved structures, respecting the original site planning. This approach not only minimizes environmental disruption but also honors the campus’s legacy. The renovated clusters include the College of Art, College of Film, and an experimental training base, forming a multifunctional art education complex that supports teaching, research, cultural exchange, and public engagement.



Blending History with Modernity
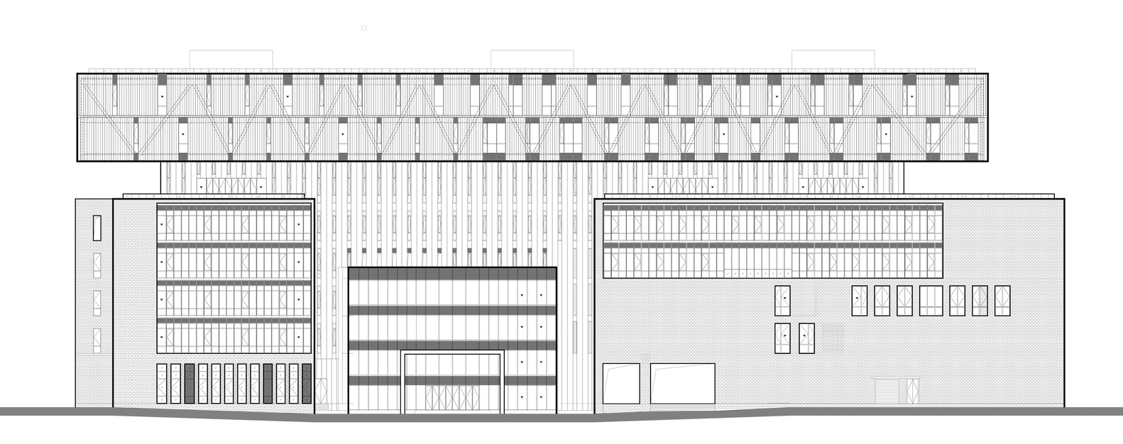
The Film College exemplifies how contemporary design can harmonize with historic context. Its base volume is clad in red brick, referencing the color and material palette of the existing campus. This warm texture grounds the new structure within its heritage setting, while large windows visually connect the interior with surrounding landscapes. These transparent moments cultivate a visual and spatial continuity that blurs boundaries between old and new.



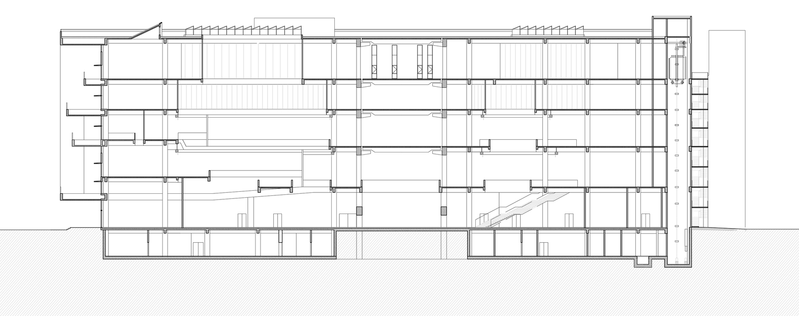
Above this grounded volume floats a striking architectural statement: a U-shaped, cantilevered glass form supported by six structural cores and steel trusses. This upper volume expresses modernity and openness, forming a light, hovering contrast that responds to the site's dense context. The cantilevered design allows for an open-floor layout below, offering flexibility for evolving academic functions.



Spatial Design for Creative Learning
At the Art College, the diverse needs of disciplines with varying ceiling height requirements are addressed through a split-level configuration. This spatial strategy introduces interwoven atria, ramps, and wide staircases that double as social spaces. The internal circulation mimics a gallery, enabling students and faculty to interact casually or showcase creative work in transit.


This multi-level design is more than a response to programmatic demands—it generates a dynamic interior landscape that promotes interdisciplinary collaboration and organic movement. The complexity of the space enhances the sensory experience of learning while celebrating the creative process.



A New Urban Anchor for Cultural Regeneration
Situated in the heart of the city, the renovated campus extends its role beyond academia. With porous public interfaces and communal outdoor spaces, it invites the surrounding community into its orbit. The interlaced spatial volumes and articulated facades mirror the pulse of the city, establishing the university as an open cultural hub. It becomes a shared platform for creative industries, education, and public life, catalyzing cultural and industrial regeneration in its vicinity.




The Future of Academic Architecture in China
The Shanghai University Yanchang Campus reimagines what university campus renovation architecture can achieve in the 21st century. It is a place where preservation meets progress, and where education, culture, and urban life converge. ECADI Sigma Architects demonstrate that thoughtful renovation can produce not only functional upgrades, but also architectural poetry—reshaping spaces that inspire future generations.





Popular Articles
Popular articles from the community
An Miên Lumière Cafe by xưởng xép, Ho Chi Minh City, Vietnam
An industrial-inspired café where layered steel and warm light create a dynamic, immersive environment shaped by reflection, depth, and perception.
A Contemporary Take on Iranian Residential Architecture
A modern interior design in Mashhad that reinterprets brick, light, and spatial flow to create a warm, contemporary residential architecture.
Atelier Macri Concept Store Interior Design by CASE-REAL
Atelier Macri store features a "ko" counter, walnut wood details, cork displays, blending retail, gallery, and seamless customer experiences.
Treehouse Apartment: A Warm Timber Interior Blending Craft, Play, and Contemporary Living
Warm timber apartment with integrated treehouse, combining natural materials, craftsmanship, and playful design to create a flexible, family-oriented living environment.
Similar Reads
You might also enjoy these articles
Bamboo Housing Challenge 2026: Design Affordable, Sustainable Homes Using Bamboo
An international design competition by Bamboo U and IBUKU inviting architects and designers to reimagine affordable housing using bamboo — with the winning design built full-scale in Bali.
Computational Design & Education: Beegraphy Design Awards Introduces 7th Category (Featuring Jiyun's Innovative Approach)
Dive into Beegraphy’s 7th Design Awards category, where computational design meets education to create immersive, interactive learning tools, inspired by Jiyun’s work.
From Parametric Lighting to Urban Furniture: Join the 2nd Workshop in Beegraphy’s Computational Design Series
Dive into Cutting-Edge Design Techniques and Practical Applications with Industry Experts
Introducing Sphere by UNI: Pioneering a New Era in AEC Industry
Unlocking Global Potential with BIM and Agile Management
Explore Architecture Competitions
Discover active competitions in this discipline
The International Standard for Design Portfolios
The Global Benchmark for Architecture Dissertation Awards
The Global Benchmark for Graduation Excellence
Challenge to reimagine the Iron Throne
Comments (0)
Please login or sign up to add comments
No comments yet. Be the first to comment!