Urban Facade Architecture in South Korea: A Case Study of West Glow Office and Retail Building
The article explores the West Glow Office and Retail Building, showcasing its integration into Seoul's urban fabric through innovative facade design.
Urban facade architecture plays a pivotal role in defining the character and aesthetic of city streets. It not only contributes to the visual identity of urban landscapes but also influences how these spaces are experienced by pedestrians. The West Glow Office and Retail Building, designed by Society of Architecture, is an exemplary case of urban facade architecture in South Korea, reflecting the nuances of modern urban design and cultural heritage.





Overview of West Glow Office and Retail Building
Context and Challenges
Located on the bustling Jahamun-ro in South Korea, the West Glow Building faces the challenge of integrating within a historic route while contributing positively to the urban fabric. The area's rich history as a key passage during the Goryeo and Joseon dynasties adds layers of cultural significance that the architecture seeks to respect and reflect.



Design Philosophy
The architects at Society of Architecture were tasked with creating a building that harmonizes with its historical surroundings yet stands out as a modern landmark. Their approach was to develop a continuous urban facade that engages with the street's history and its dynamic future.



Key Architectural Features of West Glow Office and Retail Building
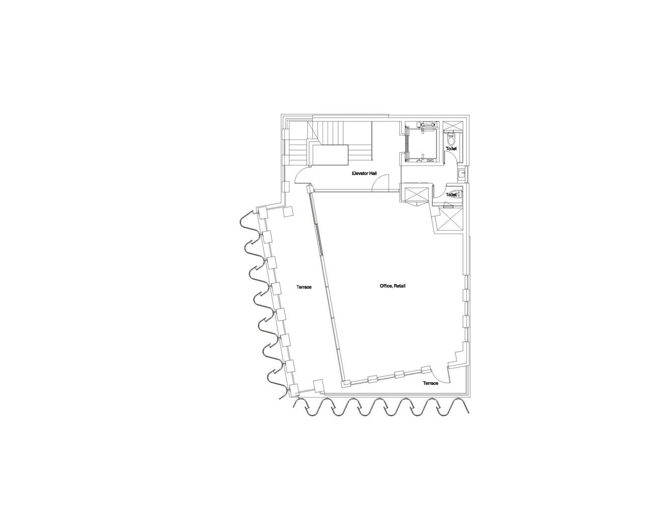
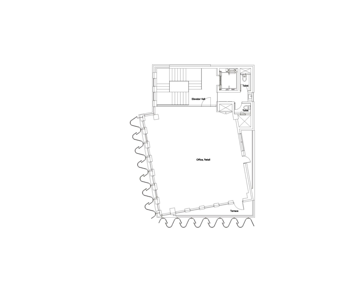
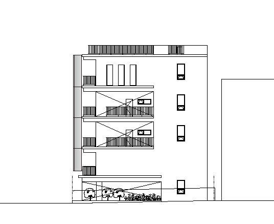
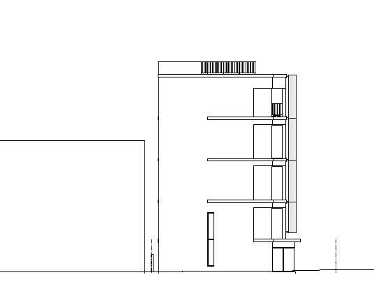
Facade Design
Continuous Urban Facade
The design philosophy was centered around creating a unified visual presence that stretches across the entire width of the site. This approach ensures that the building contributes to a cohesive streetscape, enhancing the pedestrian experience and maintaining visual continuity with adjacent structures.



Innovative Use of Glass
The building features a sophisticated glass facade that employs rhythmic folds and a wave-like pattern, echoing the flow and energy of the urban environment. This not only adds a layer of aesthetic intrigue but also modulates light and visibility, creating a dynamic interaction between the interior and the street.





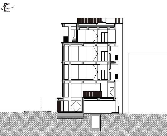
Materiality and Construction
Sustainable Materials
The choice of materials, including liquid ceramic coated glass and reinforced insulation frameworks, reflects a commitment to sustainability and durability. These materials were selected for their environmental performance and their ability to enhance the building's thermal and acoustic properties.


Craftsmanship in Architecture
Reflecting the concept of 'kkoma' or 'kid building', the project emphasizes meticulous craftsmanship and detailed construction practices. This approach underscores a deeper appreciation for quality and precision in building small-scale urban projects.


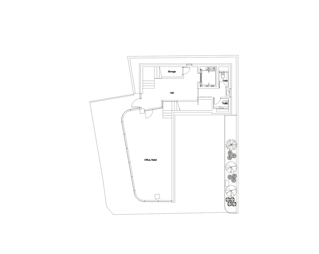
Integration with the Urban Environment
Pedestrian Interaction
The architecture of West Glow is designed to engage directly with pedestrians, offering glimpses into the interior through its transparent sections and inviting public interaction with its accessible ground-level spaces. This design strategy strengthens the connection between the building and its urban context.




Cultural Reflection
The building's design acknowledges its location on a historical route by incorporating elements that resonate with local architectural traditions while introducing modern interpretations. This blend of old and new enriches the cultural fabric of the area and pays homage to its historical significance.




The Role of Facade Architecture in Urban South Korea
The West Glow Office and Retail Building by Society of Architecture serves as a significant study in urban facade architecture in South Korea. It exemplifies how modern architectural practices can be sensitively integrated into historic urban settings to enhance both functionality and aesthetic appeal. As cities like Seoul continue to evolve, the role of thoughtful facade design will remain crucial in shaping their future urban landscapes.



All photographs are work of Texture on Texture
Popular Articles
Popular articles from the community
Flamboyant House by Juliana Camargo + Prumo Projetos
Modern Brazilian house integrating existing tree, pool, and volumes with glass, wood, and transitional spaces blending interior, exterior, and landscape seamlessly.
An Miên Lumière Cafe by xưởng xép, Ho Chi Minh City, Vietnam
An industrial-inspired café where layered steel and warm light create a dynamic, immersive environment shaped by reflection, depth, and perception.
Solar Steam: A Climate-Responsive Architecture That Redefines the Monument
A climate-responsive memorial architecture that transforms heat, decay, and time into a living system reflecting humanity’s ecological impact.
Treehouse Apartment: A Warm Timber Interior Blending Craft, Play, and Contemporary Living
Warm timber apartment with integrated treehouse, combining natural materials, craftsmanship, and playful design to create a flexible, family-oriented living environment.
Similar Reads
You might also enjoy these articles
The Ken Roberts Memorial Delineation Competition (Krob)
As the most senior architectural drawing competition currently in operation anywhere in the world, it draws hundreds of entries each year, awarding the very best submissions in a series of medium-based categories.
Waterfront Redevelopment and Urban Revitalization in Mumbai: Forging a New Dawn for Darukhana
A transformative waterfront redevelopment project reimagining Darukhana’s shipbreaking heritage into an inclusive urban future.
OUT-OF-MAP: A Call for Postcards on Feminist Narratives of Public Space
Rhizoma Design and Research Lab invites artists, designers, architects, researchers, and students to reflect on how feminist perspectives can reshape public space. Selected works will be exhibited in Barcelona, October 2026. Submissions open until 15 April 2026.
Documentation Work on Buddhist Wooden Temple
Architectural syncretism and cultural hybridity: A comparative study of the Buddhist temples in Chattogram Hill tracks
Explore Architecture Competitions
Discover active competitions in this discipline
The International Standard for Design Portfolios
The Global Benchmark for Architecture Dissertation Awards
The Global Benchmark for Graduation Excellence
Challenge to reimagine the Iron Throne
Comments (0)
Please login or sign up to add comments
No comments yet. Be the first to comment!