Wohnhaus Sonnenfalter: A Modern Residence in Harmony with Nature
Wohnhaus Sonnenfalter combines modern residential design with natural surroundings, offering functional spaces and breathtaking views in Baden, Switzerland.
Wohnhaus Sonnenfalter, designed by KNTXT Architektur, is a striking multi-family residence in Baden, Switzerland. Completed in 2022, the building embraces the natural surroundings while offering contemporary living spaces. Set in a quiet residential area, bordered by forests and gardens, the design integrates seamlessly into its environment. This architectural piece represents a refined balance of modern design, comfort, and respect for the neighborhood’s scale and landscape.



The Site and Concept
The property is located on a gentle southwest-facing slope, providing stunning views and optimal sun exposure. Surrounded by single-family homes, the neighborhood is known for its small-scale buildings and lush, planted gardens. The design of Wohnhaus Sonnenfalter was developed with these characteristics in mind, ensuring the building complements the residential area’s character.


The replacement building is designed to blend with the row of houses along the forest edge. To break down the scale of the volume, projections and recesses are used, while the tapered facades create visual harmony with neighboring homes. The building integrates into the quarter’s fabric, respecting both the neighborhood’s grain and the spacious landscape.


Design Language and Facade
The architectural language of the new building takes inspiration from the existing house. One defining feature of the design is the front layer of balconies. These balconies are a central motif, fanning out towards the southwest, structuring the apartments and providing a visual connection to the landscape. The facade’s design, with its clean lines and thoughtful materiality, reflects a modern interpretation of traditional architectural forms, establishing a strong relationship with the environment.




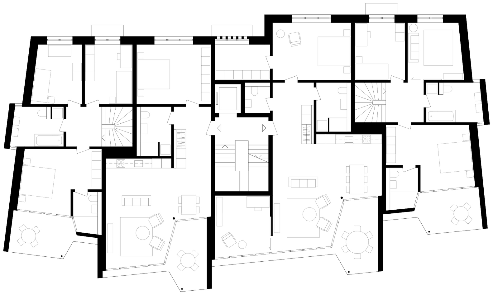
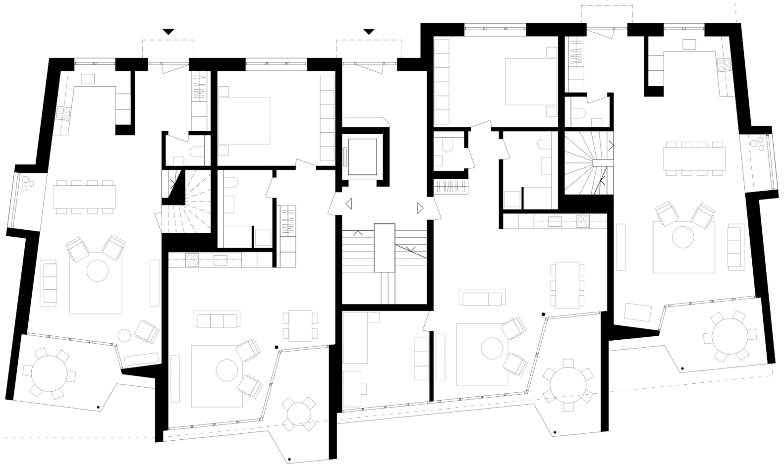
Apartment Layouts and Typology
The layout of Wohnhaus Sonnenfalter includes a variety of apartment types, catering to different living needs. At the ends of the building, 4.5-room apartments are arranged like row houses, referencing the neighboring single-family homes. The central part of the building contains 2.5- and 3.5-room apartments, organized efficiently to maximize space. A spacious hallway serves as the core, leading to the living areas and wet rooms, eliminating inefficient circulation space. On standard floors, living and dining areas open to the garden, with balconies recessed to create separation and privacy.





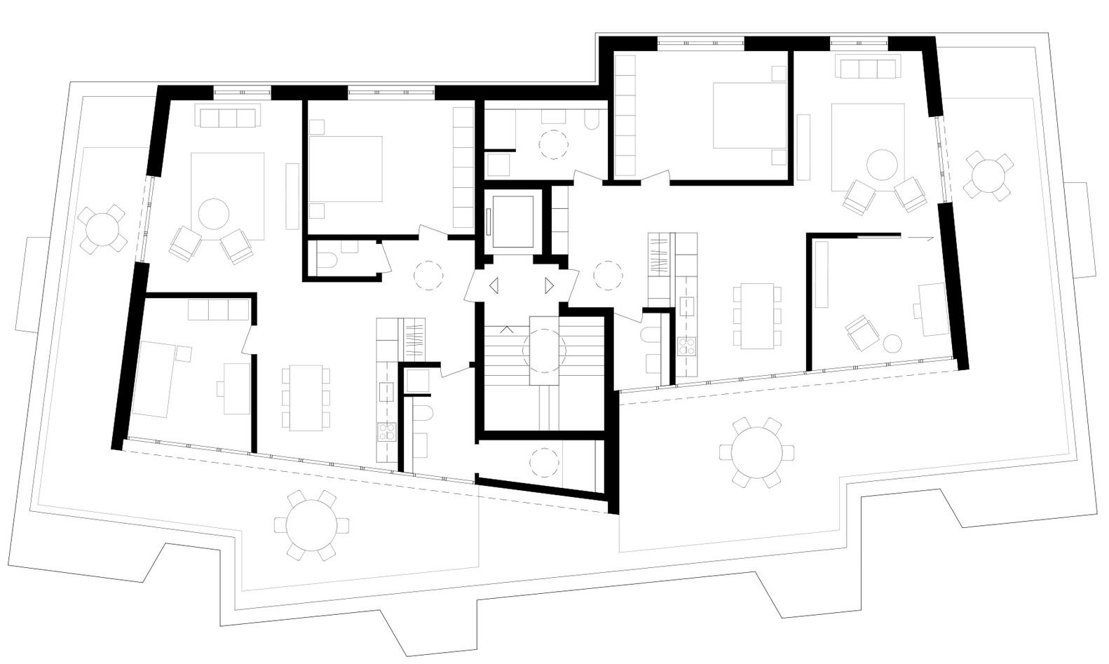
A View into the Forest
The top floor of the building features an attic level where the living space extends towards the side, offering breathtaking views into the adjacent forest. This connection to nature enhances the living experience, bringing the outdoors inside and offering a tranquil retreat for the residents. The design ensures that each apartment enjoys an optimal relationship with its surroundings, whether by garden access or forest views.


Wohnhaus Sonnenfalter exemplifies the harmonious integration of modern architecture with nature. The building’s thoughtful design, inspired by its surroundings and the typology of the neighboring houses, creates a comfortable and visually pleasing residence. KNTXT Architektur’s design ensures that the building not only meets the needs of modern living but also enhances the quality of life by connecting the residents to the natural beauty of the area.




All Photographs are work of Elisa Florian
Popular Articles
Popular articles from the community
Fifth NRE Jazz Club – De Bever Architecten: Eindhoven’s Revitalized Cultural Hub
Historic gas factory transformed into Fifth NRE Jazz Club blending modern sustainability, jazz culture, dining, and heritage architecture seamlessly.
The Ken Roberts Memorial Delineation Competition (Krob)
As the most senior architectural drawing competition currently in operation anywhere in the world, it draws hundreds of entries each year, awarding the very best submissions in a series of medium-based categories.
Louis Malle Cinema: A Limestone Cultural Landmark Revitalizing Community Life in Prayssac
Limestone cinema extension with public forecourt, blending heritage and modern design to create flexible cultural spaces and strengthen community interaction.
Inverted Architecture Installation by Studio Link-Arc: Exploring the Intersection of Architecture and Living Organisms
Inverted Architecture Installation by Studio Link-Arc blends mycelium, sustainability, inverted design, ecological cycles, and urban adaptive architecture in Shenzhen.
Similar Reads
You might also enjoy these articles
The Ken Roberts Memorial Delineation Competition (Krob)
As the most senior architectural drawing competition currently in operation anywhere in the world, it draws hundreds of entries each year, awarding the very best submissions in a series of medium-based categories.
Waterfront Redevelopment and Urban Revitalization in Mumbai: Forging a New Dawn for Darukhana
A transformative waterfront redevelopment project reimagining Darukhana’s shipbreaking heritage into an inclusive urban future.
OUT-OF-MAP: A Call for Postcards on Feminist Narratives of Public Space
Rhizoma Design and Research Lab invites artists, designers, architects, researchers, and students to reflect on how feminist perspectives can reshape public space. Selected works will be exhibited in Barcelona, October 2026. Submissions open until 15 April 2026.
Documentation Work on Buddhist Wooden Temple
Architectural syncretism and cultural hybridity: A comparative study of the Buddhist temples in Chattogram Hill tracks
Explore Architecture Competitions
Discover active competitions in this discipline
The International Standard for Design Portfolios
The Global Benchmark for Architecture Dissertation Awards
The Global Benchmark for Graduation Excellence
Challenge to reimagine the Iron Throne
Comments (0)
Please login or sign up to add comments
No comments yet. Be the first to comment!