Zendegi Building by Faraman Design and Construction Office: A Modern Tribute to Persian Architecture
Zendegi Building blends Persian architectural heritage with modern design, offering light-filled, serene spaces that celebrate cultural identity and community living.
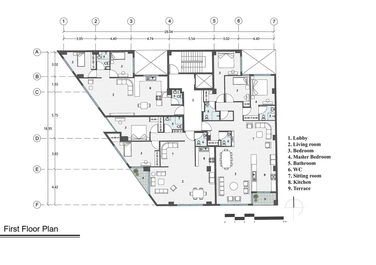
Located in the heart of Tehran, Iran, the Zendegi Building by Faraman Design and Construction Office is a striking example of how contemporary design can resonate deeply with cultural heritage. Designed by lead architect Marjan Farzian, the 3,170 m² residential complex redefines modern living by weaving together tradition, functionality, and architectural poetry.

Reviving Life Through Design
"Zendegi," meaning "Life" in Persian, is not just the building's name—it's the philosophy behind its creation. The architecture celebrates the essence of living by inviting light, nature, and simplicity into every corner. Drawing from Persian architectural traditions, the project emphasizes harmony with nature, spatial clarity, and soulful materiality.


Seamless Integration of Light and Space
The design's focal point is its thoughtful manipulation of natural light. Using carefully angled balconies, earth-toned materials, and a minimalist facade, the architects managed to reduce the impact of harsh western light while maximizing the soft, warm glow from the south. This controlled illumination brings a meditative quality to daily life, connecting inhabitants with nature’s rhythms.


Material Language Rooted in Culture
The facade showcases Heydari brick, Venus glass, and natural textures that recall Iran’s architectural past. Faraman’s use of earthen hues, exposed brick, and earthenware jugs in the entrance evokes nostalgia while reinforcing a tactile, sensory experience. The addition of a traditional Persian water feature and native plants enhances the building’s calming and communal spirit.


A Platform for Community Living
In a fast-paced city like Tehran, Zendegi is a sanctuary. Its spaces are not just functional—they’re designed to encourage human connection, collective activities, and moments of introspection. From the kitchen interiors to the outdoor terraces, every space fosters a sense of belonging and identity.


Contemporary Yet Timeless
Though distinctly modern, the building avoids flashy aesthetics in favor of cultural subtlety and architectural restraint. The minimalist form, combined with locally inspired craftsmanship, allows the structure to coexist respectfully with its neighbors while creating a unique presence on the urban skyline.


A Building That Breathes With Its People
The Zendegi Building isn’t just a residential project—it’s a lived experience. With its climate-responsive design, use of traditional motifs, and intentional social layout, it honors the deep-rooted values of Iranian living while embracing contemporary urban needs.

All the photographs are works of Deed Studio
Popular Articles
Popular articles from the community
Atelier Macri Concept Store Interior Design by CASE-REAL
Atelier Macri store features a "ko" counter, walnut wood details, cork displays, blending retail, gallery, and seamless customer experiences.
On the Brooks House by Monsoon Collective – A Contemporary Kerala Home Rooted in Tradition
Kerala home blending tradition and modernity with water-inspired design, brick architecture, courtyard planning, and sustainable rainwater harvesting strategies.
Treehouse Apartment: A Warm Timber Interior Blending Craft, Play, and Contemporary Living
Warm timber apartment with integrated treehouse, combining natural materials, craftsmanship, and playful design to create a flexible, family-oriented living environment.
Flamboyant House by Juliana Camargo + Prumo Projetos
Modern Brazilian house integrating existing tree, pool, and volumes with glass, wood, and transitional spaces blending interior, exterior, and landscape seamlessly.
Similar Reads
You might also enjoy these articles
The Ken Roberts Memorial Delineation Competition (Krob)
As the most senior architectural drawing competition currently in operation anywhere in the world, it draws hundreds of entries each year, awarding the very best submissions in a series of medium-based categories.
Waterfront Redevelopment and Urban Revitalization in Mumbai: Forging a New Dawn for Darukhana
A transformative waterfront redevelopment project reimagining Darukhana’s shipbreaking heritage into an inclusive urban future.
OUT-OF-MAP: A Call for Postcards on Feminist Narratives of Public Space
Rhizoma Design and Research Lab invites artists, designers, architects, researchers, and students to reflect on how feminist perspectives can reshape public space. Selected works will be exhibited in Barcelona, October 2026. Submissions open until 15 April 2026.
Documentation Work on Buddhist Wooden Temple
Architectural syncretism and cultural hybridity: A comparative study of the Buddhist temples in Chattogram Hill tracks
Explore Architecture Competitions
Discover active competitions in this discipline
The International Standard for Design Portfolios
The Global Benchmark for Architecture Dissertation Awards
The Global Benchmark for Graduation Excellence
Challenge to design mud housing for contemporary communities
Comments (0)
Please login or sign up to add comments
No comments yet. Be the first to comment!