3-in-1 Functionality: Redefining Multi-Generational Compact Residential Architecture
Maximizing every cubic inch: A multi-generational house that redefines compact residential architecture through light, layers, and living.
In the face of rapid urbanization and shrinking residential footprints, the question of how to house extended families with diverse needs in limited space has become increasingly urgent. "3 in 1 Functionality" responds to this challenge with an elegant solution: a compact yet comprehensive residential structure designed for three generations of a Romanian family. The design, by Stefania Bulanga, is a study in spatial efficiency, daylight strategy, and architectural empathy—and serves as a compelling case study in compact residential architecture.


A Home for Three Generations
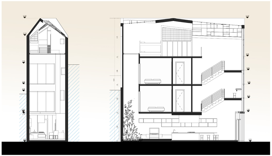
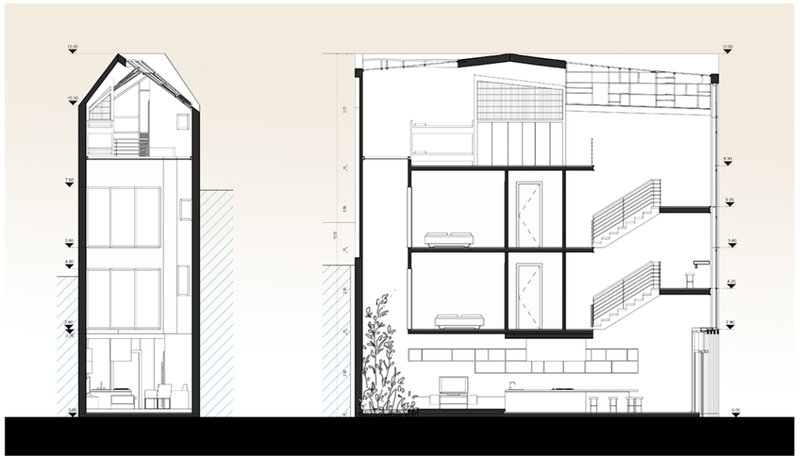
The house accommodates a family of six: grandparents, two parents, and two young daughters. Rather than separating the generations in disconnected units, the design weaves them together vertically. Each floor is designated for a specific generation, while common spaces are placed at transition zones to encourage interaction without sacrificing privacy. The ground floor holds the shared kitchen, dining, and greenery-tended living area for collective rituals. The middle levels house the grandparents and parents respectively, while the top floor—flooded with light—is reserved for the daughters, complete with a playground and home cinema.
Compact Form, Expansive Function
Built as a single-volume structure on a tight urban plot near the Black Sea, the house appears as a minimalist box but functions as a richly layered home. Every element is multifunctional. The staircase doubles as seating and storage, while spaces under skylights serve as both light wells and play zones. Even transitional spaces are activated—corridors become reading nooks or plant-filled buffers.
This strategic use of vertical space and the thoughtful distribution of private versus shared areas addresses one of today’s most pressing urban design issues: how to build meaningful homes within small footprints. The home is not only compact, but complete.


Designing with Light and Air
Surrounded by dense urban fabric, the house takes an unconventional approach to natural light. Two skylights and a diagonally oriented ridge capture sun from the northwest and southeast, flooding the interiors with daylight. The translucent FRP front facade ensures privacy while softening incoming light, and ventilation is maximized through layered fenestration and stacked openings.
The skylight strategy also serves symbolic value. It visually and emotionally connects all levels of the house through a common source of illumination—an architectural metaphor for shared lineage and familial connection.
Architecture of Togetherness
In its essence, "3 in 1 Functionality" is about more than spatial economy; it is about emotional intelligence in design. The project redefines what "home" means for a multi-generational family: not merely cohabitation, but coexistence. The children's need for play, the grandparents' need for quiet, and the parents' need for functionality are all fulfilled in a single, vertically integrated form.
The final floor, with its open-plan design, becomes the symbolic heart of the house—a luminous gathering space where play, rest, and film nights converge. This sense of togetherness, orchestrated through architecture, turns the house into a vessel of shared experience.
A Contemporary Solution to Space Crunch
With the rise of nuclear families and space constraints, this project offers a timely re-evaluation of family housing models. By consolidating multiple generational needs into a single compact form, it answers a contemporary problem with grace and innovation. It also questions the conventions of Western-style zoning and room compartmentalization, replacing them with a flowing, layered, and shared spatial approach.
3 in 1 Functionality demonstrates how compact residential architecture can transcend its limitations when guided by empathy, ingenuity, and clarity of purpose. It is not just a smart house. It is a smart home.

Popular Articles
Popular articles from the community
Alton Cliff House: A Harmonious Retreat by f2a Architecture in Lake Country, Canada
Alton Cliff House blends corten steel, prefabrication, and sustainable design, creating a luxurious, energy-efficient retreat perched on Canadian cliffs.
Split House: A Compact Urban Home Blending Privacy, Light, and Flexible Living in Japan
Compact Japanese home featuring DOMA space, flexible café potential, passive lighting, privacy zoning, and sustainable urban living design.
Gads Hill Early Learning Center by JGMA: Adaptive Reuse Shaping Community-Focused Educational Architecture
Adaptive reuse transforms fragmented structure into vibrant early learning center with playful façade, natural light, and community-focused sustainable design.
Solar Steam: A Climate-Responsive Architecture That Redefines the Monument
A climate-responsive memorial architecture that transforms heat, decay, and time into a living system reflecting humanity’s ecological impact.
Similar Reads
You might also enjoy these articles
The Ken Roberts Memorial Delineation Competition (Krob)
As the most senior architectural drawing competition currently in operation anywhere in the world, it draws hundreds of entries each year, awarding the very best submissions in a series of medium-based categories.
Waterfront Redevelopment and Urban Revitalization in Mumbai: Forging a New Dawn for Darukhana
A transformative waterfront redevelopment project reimagining Darukhana’s shipbreaking heritage into an inclusive urban future.
OUT-OF-MAP: A Call for Postcards on Feminist Narratives of Public Space
Rhizoma Design and Research Lab invites artists, designers, architects, researchers, and students to reflect on how feminist perspectives can reshape public space. Selected works will be exhibited in Barcelona, October 2026. Submissions open until 15 April 2026.
Documentation Work on Buddhist Wooden Temple
Architectural syncretism and cultural hybridity: A comparative study of the Buddhist temples in Chattogram Hill tracks
Explore Residential Building Competitions
Discover active competitions in this discipline
The Global Benchmark for Architecture Dissertation Awards
Challenge to design mud housing for contemporary communities
Comments (0)
Please login or sign up to add comments
No comments yet. Be the first to comment!