A Japanese-Inspired Bar Design Merging Tradition and Modernity
A Japanese-inspired bar in Pattaya blending traditional architecture, modern design, and lush garden integration for a unique experience.
In the heart of Pattaya, Thailand, Ronin Bar stands as a unique architectural transformation by studio...nutto. This project reimagines a 70-year-old house into an immersive Japanese-inspired bar seamlessly connected to the Ronin Restaurant's backyard garden. The renovation is a tribute to blending traditional Japanese aesthetics with modern architectural techniques, offering patrons a serene yet dynamic experience.


Design Philosophy: The Beauty of Imperfection
At the core of the project lies the concept of “imperfection of nature is an art.” This philosophy guided the design decisions, from the concrete facade adorned with vertical patterns to the natural granite stone finishes. The interplay of rugged and refined materials reflects the harmonious balance of nature and architecture.


Architectural Features
Exterior Design
The bar’s facade incorporates yakisugi (Japanese charred wood), granite stone, and textured concrete. These elements echo traditional Japanese architecture while maintaining a contemporary edge. The entrance, accessible through a lush backyard garden, sets the tone for the seamless transition between the restaurant and bar.


Interior Design
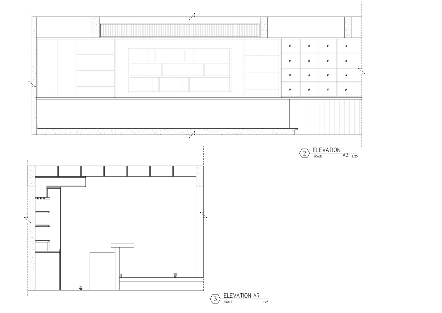
The interior of Ronin Bar embraces a black-on-black theme to emphasize the surrounding greenery and ambient lighting. Materials like lava stone, dark granite, and solid wood enhance the rustic yet sophisticated atmosphere.
- Ceiling Preservation: The original solid wood ceiling was retained, preserving the old house's character.
- Lighting and Accents: Reflective elements such as crystal lamps and antique mirrors elevate the space's elegance.


Garden Integration
A private garden, meticulously designed with multi-level steps, serves as an extension of the bar's aesthetic. Elevated trees and lighting panels create a cozy and secluded atmosphere. A large concrete-framed window connects the interior to the garden, transforming the natural view into a living art piece.


Visitor Experience: Dynamic and Immersive
Ronin Bar avoids the predictability of open layouts. Instead, it offers a series of hidden corners and varied experiences, from intimate group spaces to window seats overlooking the garden. Key features include:
- Entrance Tunnel: Antique glass shoji panels guide visitors into the space.
- Front Bar: A prime spot to observe bartenders crafting signature cocktails.
- Private Seating: Comfortable armchairs and secluded areas cater to both social and reflective moods.




Sustainable Practices
The renovation utilized sustainable materials like yakisugi wood and recycled dark grey granite. These choices not only reduce environmental impact but also align with the project's Japanese-inspired ethos of harmony with nature.



Ronin Bar is more than a bar; it’s a celebration of Japanese-inspired bar design, blending history, modernity, and nature. From the thoughtful integration of indoor and outdoor spaces to its commitment to sustainable materials, the project exemplifies architectural ingenuity. Studio...nutto’s transformation of a 70-year-old house into this immersive bar experience is a testament to their expertise in merging traditional aesthetics with contemporary sensibilities.


All the photographs are work of Panoramic Studio
Popular Articles
Popular articles from the community
Free Architecture Competitions You Can Enter Right Now
No entry fees, real prizes. Here are the best free architecture competitions open for submissions in 2026.
Solar Steam: A Climate-Responsive Architecture That Redefines the Monument
A climate-responsive memorial architecture that transforms heat, decay, and time into a living system reflecting humanity’s ecological impact.
Split House: A Compact Urban Home Blending Privacy, Light, and Flexible Living in Japan
Compact Japanese home featuring DOMA space, flexible café potential, passive lighting, privacy zoning, and sustainable urban living design.
Similar Reads
You might also enjoy these articles
The Ken Roberts Memorial Delineation Competition (Krob)
As the most senior architectural drawing competition currently in operation anywhere in the world, it draws hundreds of entries each year, awarding the very best submissions in a series of medium-based categories.
Waterfront Redevelopment and Urban Revitalization in Mumbai: Forging a New Dawn for Darukhana
A transformative waterfront redevelopment project reimagining Darukhana’s shipbreaking heritage into an inclusive urban future.
OUT-OF-MAP: A Call for Postcards on Feminist Narratives of Public Space
Rhizoma Design and Research Lab invites artists, designers, architects, researchers, and students to reflect on how feminist perspectives can reshape public space. Selected works will be exhibited in Barcelona, October 2026. Submissions open until 15 April 2026.
Documentation Work on Buddhist Wooden Temple
Architectural syncretism and cultural hybridity: A comparative study of the Buddhist temples in Chattogram Hill tracks
Explore Architecture Competitions
Discover active competitions in this discipline
The International Standard for Design Portfolios
The Global Benchmark for Architecture Dissertation Awards
The Global Benchmark for Graduation Excellence
Challenge to reimagine the Iron Throne
Comments (0)
Please login or sign up to add comments
No comments yet. Be the first to comment!